"Familienparadies in Ruhelage: Immobilie mit Pool und viel Platz für Groß und Klein"
645.000 €
Kaufpreis
320 m²
Wohnfläche
5
Zimmer
immobilien.de Nr.: 9230664
Objektnummer: FALC-AnKu-40690
Dateien
Kaufpreis
| Kaufpreis | 645.000 € |
| Kaufpreis pro m² | 1968,75 € |
| Stellplatz Freiplatz Kaufpreis | 0 € |
Wohnfläche, Grundstück & Bausubstanz
| Wohnfläche | 320 m² |
| Grundstücksfläche | 700 m² |
| Zimmer | 5 |
| Baujahr | 2013 |
| Verfügbar ab | sofort |
Energie
| Heizungsart | Zentralheizung |
| Wesentlicher Energieträger | Strom |
| Energieträger/Befeuerung | Elektro |
Beschreibung der Immobilie
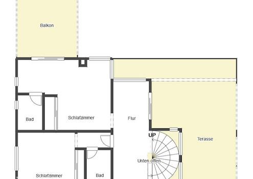
Zum Verkauf steht eine wunderschöne Villa in Ozankoy, Kyrenia. Das im Jahr 2013 erbaute Haus befindet sich in einem sehr guten Zustand, da es erst kürzlich renoviert wurde. Die finalen Arbeiten werden bis zur Übergabe fertiggestellt. Die Immobilie erstreckt sich über drei Etagen und bietet eine großzügige Wohnfläche von ca. 320 m².
Das Haus verfügt über insgesamt fünf Zimmer, darunter vier Schlafzimmer und vier Badezimmer. Die Ausstattung ist gehoben und es gibt eine hochwertige Einbauküche. Das Haus ist vollständig klimatisiert und verfügt über einen gemütlichen Kamin. Zudem bietet es eine Terrasse und einen Balkon, auf denen Sie die warmen Sommerabende genießen können.
Ein besonderes Highlight des Hauses ist der Swimmingpool, der zum erfrischenden Badespaß einlädt. Des Weiteren besteht die Möglichkeit, das Kellergeschoss als Kinoraum, Hobbyraum oder Partyraum zu nutzen.
Das Haus ist ab sofort verfügbar und bietet somit die Möglichkeit, Ihren Wohntraum zeitnah zu verwirklichen. Überzeugen Sie sich selbst von diesem einzigartigen Angebot und vereinbaren Sie noch heute einen Besichtigungstermin.
Das Haus verfügt über insgesamt fünf Zimmer, darunter vier Schlafzimmer und vier Badezimmer. Die Ausstattung ist gehoben und es gibt eine hochwertige Einbauküche. Das Haus ist vollständig klimatisiert und verfügt über einen gemütlichen Kamin. Zudem bietet es eine Terrasse und einen Balkon, auf denen Sie die warmen Sommerabende genießen können.
Ein besonderes Highlight des Hauses ist der Swimmingpool, der zum erfrischenden Badespaß einlädt. Des Weiteren besteht die Möglichkeit, das Kellergeschoss als Kinoraum, Hobbyraum oder Partyraum zu nutzen.
Das Haus ist ab sofort verfügbar und bietet somit die Möglichkeit, Ihren Wohntraum zeitnah zu verwirklichen. Überzeugen Sie sich selbst von diesem einzigartigen Angebot und vereinbaren Sie noch heute einen Besichtigungstermin.
Ausstattungsmerkmale
| Anzahl der Etagen im Haus | 3 |
| Küche | Einbauküche |
| Bad | 4 |
| Bad | Dusche, Fenster |
| Balkone | 1 |
| Garten | |
| Keller |
- Einbauküche
- Kamin
- Klimatisiert
- Terrasse
- Balkon
- Swimmingpool
- Zentralheizung
- Strom als Befeuerung
- Mediterraner Baustil
- 2 PKW Stellplätze
- Barbecue Zone im Garten
- Kellergeschoss mit Zugang über die Garage
- Weitere Informationen auf Anfrage
- Kamin
- Klimatisiert
- Terrasse
- Balkon
- Swimmingpool
- Zentralheizung
- Strom als Befeuerung
- Mediterraner Baustil
- 2 PKW Stellplätze
- Barbecue Zone im Garten
- Kellergeschoss mit Zugang über die Garage
- Weitere Informationen auf Anfrage
Sonstige Informationen
Bitte beachten Sie, dass kein Energieausweis vorhanden ist, da es keine Pflicht zur Erstellung gibt. Die genaue Lage und weitere Details zur Immobilie können Sie gerne bei uns erfragen. Wir stehen Ihnen jederzeit gerne zur Verfügung und freuen uns auf Ihre Anfrage. Die Objektbeschreibung beruht ganz oder zum Teil auf Angaben des Eigentümers. Für die Richtigkeit oder Vollständigkeit übernehmen wir keine Gewähr.
Karte wird geladen...
Objektstandort
99320 Ozankoy
- Kyrenia
Lage & Infrastruktur
Objektstandort
99320 Ozankoy
- Kyrenia
Das freistehende Haus befindet sich in der charmanten Stadt Ozankoy auf Zypern. Die Immobilie mit der Hausnummer 2 liegt in einer ruhigen Wohngegend und ist ideal für Familien geeignet.
Die Lage des Hauses zeichnet sich durch ihre Nähe zum Stadtzentrum aus, das nur 1 Kilometer entfernt ist. Hier finden Sie eine Vielzahl von Einkaufsmöglichkeiten, Restaurants und Unterhaltungsmöglichkeiten.
Auch die Autobahn ist nur 2,5 Kilometer entfernt, was eine gute Anbindung an die umliegenden Städte und Regionen bietet.
Für Familien mit kleinen Kindern ist die Nähe zum Kindergarten und zur Grundschule von Vorteil. Der Kindergarten ist nur 0,8 Kilometer entfernt und die Grundschule befindet sich in einer Entfernung von 1 Kilometer.
Die Lage des Hauses kombiniert die Vorzüge einer ruhigen Wohngegend mit der Nähe zu allen wichtigen Einrichtungen und Verkehrsanbindungen.
Die Lage des Hauses zeichnet sich durch ihre Nähe zum Stadtzentrum aus, das nur 1 Kilometer entfernt ist. Hier finden Sie eine Vielzahl von Einkaufsmöglichkeiten, Restaurants und Unterhaltungsmöglichkeiten.
Auch die Autobahn ist nur 2,5 Kilometer entfernt, was eine gute Anbindung an die umliegenden Städte und Regionen bietet.
Für Familien mit kleinen Kindern ist die Nähe zum Kindergarten und zur Grundschule von Vorteil. Der Kindergarten ist nur 0,8 Kilometer entfernt und die Grundschule befindet sich in einer Entfernung von 1 Kilometer.
Die Lage des Hauses kombiniert die Vorzüge einer ruhigen Wohngegend mit der Nähe zu allen wichtigen Einrichtungen und Verkehrsanbindungen.
Kontaktanfrage senden
Über den Anbieter
FALC Immobilien GmbH & Co. KG
Humperdickstr. 3
53773 Hennef (Sieg)
Kontakt
| Telefon | +49 2242 9010344 |
| Mobil | +49 176 73581579 |
| Fax | +49 2242 9010319 |
| Website | www.falcimmo.de |
Ansprechpartner/in
Frau Leonie Laarmann