Schöne Dreiraumwohnung mit großem Balkon und Aufzug

Platanenstraße 3 07549 Gera
Frei ab: 01.08.2026
410 € Kaltmiete
616 € Warmmiete inkl. NK
5,96 € Preis/m² ca.
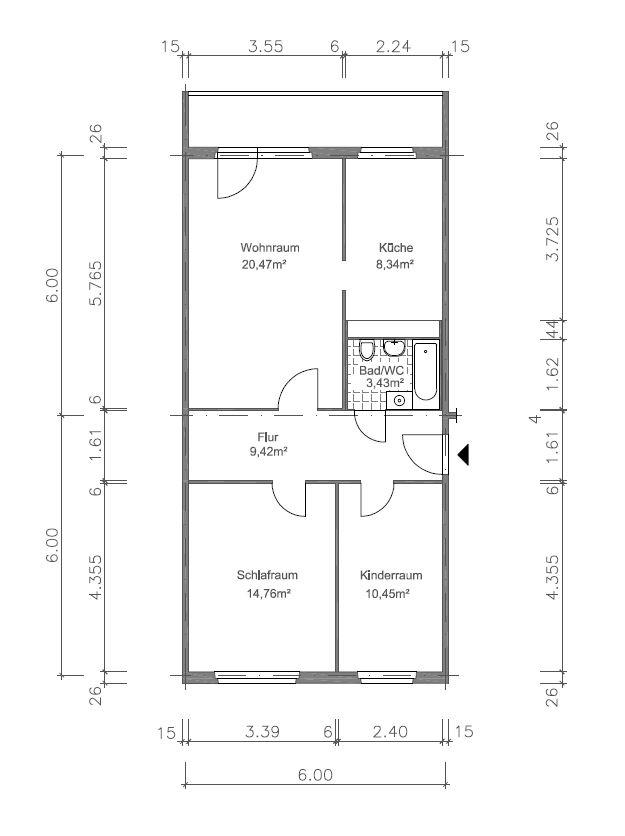
Wohnfläche
68,75 m²
Zimmer
3
Etage
3
Balkon
Fahrstuhl
Keller

Mietpreis & Nebenkosten

Kaltmiete (netto)410 €
Nebenkosten 89 €
Heizkosten117 €
Warmmiete616 €
Kaution 1.230,00 €

Wohnfläche, Grundstück & Bausubstanz

Wohnfläche68,75 m²
Nutzfläche68,75 m²
Zimmer3
Etagen11
Stockwerk3
Baujahr1980
Verfügbar ab 01.08.2026

Beschreibung der Immobilie

Bei dem Objekt handelt es sich um einen sanierten 11-Geschosser mit Conciergedienst und Aufzug am Rand von Gera-Lusan.

Ausstattungsmerkmale

Bad1
Bad (Ausstattung)Wanne
Balkone1
Fahrstuhl
KellerJa
- helle Räume
- Küche mit Fenster
- Bad gefliest
- großer Balkon
- Aufzug
- Keller
- Concierge
- Hausmeister
- Kfz-Stellplätze

Energie

C
Energieeffizienzklasse C · 87.60 kWh/(m²*a)
EnergieausweistypVerbrauch
EnergieeffizienzklasseC
Energieverbrauchkennwert87.60 kWh/(m²*a)
Heizungsart Zentralheizung
Energieträger/Befeuerung Fernwärme

Karte wird geladen...
Platanenstraße 3
07549 Gera

Lage & Infrastruktur

- 2 verschiedene Bäcker 0,5 Minuten zu Fuß
- Apotheke im Haus
- gute Verkehrsanbindung an Straßenbahn, Busse ( Haltestelle 1 Gehminute ) und Bundesstraße B 92
- Einkaufsmöglichkeiten für Lebensmittel und Dinge des täglichen Bedarfs
- Kindereinrichtungen & Spielplätze
- Schulen nahezu aller Schularten
- Sport- und Freizeitangebote
- verschiedene Fachärzte & Apotheken
- reichlich Spazierwege im grünen Brütetal

Sonstige Informationen

Finden Sie Ihr neues Zuhause unter www.tag-wohnen.de und vereinbaren Sie Ihren persönlichen Besichtigungstermin. Wir freuen uns auf Ihre Anfrage.
Profitieren Sie als TAG Wohnen-Mieter von unseren Partnerangeboten und sichern Sie sich viele Sonderrabatte und günstige Konditionen u.a. in den Bereichen Unterhaltung, Umzug, Ernährung und Mobilität.
Strom und Gas von lekker Energie – Sichern Sie sich Ihren exklusiven TAG Wohnen-Bonus unter www.lekker.de/kunden/tag-wohnen
Sichern Sie sich zudem einen entspannten Umzug mit unserem Partner Transporo und einem 10% Rabatt über folgenden Link: www.transporo.de/tag
Alle Angaben in diesem Exposé wurden sorgfältig getätigt. Fehlerhafte Angaben können nicht ausgeschlossen werden, daher sind die Angaben ohne Gewähr. Maßgeblich sind die im Mietvertrag geschlossenen Vereinbarungen.
Ansprechpartner/in: Herr Marco Schellenberg
TAG Wohnen & Service GmbH
Steckelhörn 5, 20457 Hamburg

Weitere Angebote in Gera