Wohnen im Grünen im Herzen von Odenthal

51519 Odenthal, Nordrhein-Westfalen
Frei ab: nach Absprache
420.000 € Kaufpreis
Wohnfläche
142 m²
Zimmer
5
Balkon
Terrasse
Garten
Keller
Stellplatz

Kaufpreis

Kaufpreis 420.000 €
Maklerprovisionkeine Provision, courtagefrei

Wohnfläche, Grundstück & Bausubstanz

Wohnfläche142 m²
Grundstücksfläche862 m²
Zimmer5
Etagen2
Baujahr1959
Verfügbar ab nach Absprache
ZustandGepflegt

Beschreibung der Immobilie

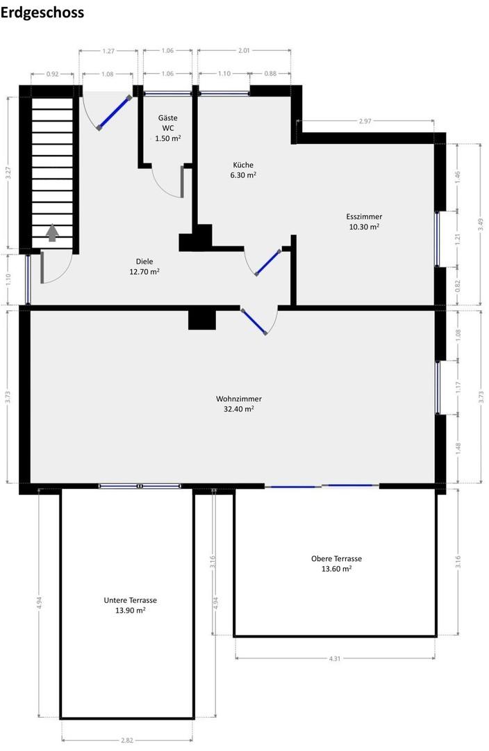
Dieses 5-Zimmer-Einfamilienhaus in ruhiger, zentraler Lage in Odenthal bietet alles für den familienfreundlichen Alltag: ein grosses Wohnzimmer, ein Esszimmer, 3 Schlafzimmer, 1 Badezimmer mit Dusche und Badewanne sowie ein separates WC. Der vollausgebaute Speicher kann als zusätzlicher Wohnraum genutzt werden. Der gefliesste Keller bietet 65m2 Platz.

Das Haus steht leer, ist gepflegt und lädt sofort zum Einzug ein – bei der Wärmedämmung besteht Modernisierungspotenzial.

Der große Garten (mit Grundwasserpumpe für die Bewässerung) und die Terrasse auf zwei Ebenen laden zum Grillen und Entspannen ein. Zusätzlich zur Gaszentralheizung sorgt ein beheizbarer Kaminofen im Wohnzimmer für gemütliche Abende. Das Holz hierfür lagern Sie bequem in und hinter der Garage.

Aktuelle Ausstattung und Renovierungen:
•Gaszentralheizung (2002)
•Kunststofffenster mit Doppelverglasung (1989/90)
•Neues Dach mit Dämmung (2006)
•Ausgebauter Speicher als potenzieller Wohnraum
•Aluminium-Haustür RC2 (2024)

Eine Doppelgarage bietet Stellplätze für 2 Autos plus einen Stellplatz davor – ideal für Familien mit mehreren Fahrzeugen.

Ausstattungsmerkmale

Bad1
Bad (Ausstattung)Wanne
BodenFliesen, Kunststoff
Balkone1
Terrassen1
GartenJa
KellerJa
Garage/Stellplätze1
Balkon, Terrasse, Garten, Keller, Vollbad, Gäste-WC, Fliesen

Bemerkungen:
Exposé mit Bedarfsausweis auf Anfrage – wir freuen uns auf Ihre Nachricht für eine Besichtigung.

Energie

H
Energieeffizienzklasse H · 281 kWh/(m²*a)
EnergieausweistypBedarfsausweis
EnergieeffizienzklasseH
Endenergiebedarf281
Heizungsart Zentralheizung
Energieträger/Befeuerung Gas

Karte wird geladen...
51519 Odenthal – Nordrhein-Westfalen

Lage & Infrastruktur

Direkt im Herzen von Odenthal, alles fußläufig in 1 km Radius erreichbar: Supermärkte, Apotheke, Ärzte, Kindergarten und Schulen. Perfekt für Familien.

Wichtiger Hinweis: Es handelt sich um ein Erbpachtgrundstück (Erzbistum Köln), mit einem Vertrag bis August 2060.
Infrastruktur (im Umkreis von 5 km):
Apotheke, Lebensmittel-Discount, Allgemeinmediziner, Kindergarten, Grundschule, Realschule, Gymnasium, Öffentliche Verkehrsmittel

Sonstige Informationen

Heizungsart: Zentralheizung
Energieträger: Gas


Makleranfragen nicht erwünscht. Nach § 7 UWG sind unaufgeforderte Kontaktaufnahmen durch Makler ohne ausdrückliche Einwilligung des Empfängers verboten!

ohne-makler (OM) ist weder Anbieter noch Vermittler der Immobilie. OM betreibt eine Plattform für Immobilieneigentümer, die unter anderem die gleichzeitige Veröffentlichung einzelner Inserate auf mehreren Immobilienportalen ermöglicht. Die Inhalte dieser Inserate werden ausschließlich von Dritten verantwortet. Für die Richtigkeit, Vollständigkeit oder Rechtmäßigkeit der Angaben übernimmt OM keine Haftung. Hinweise auf mögliche Rechtsverstöße können jederzeit gemeldet werden und werden nach Prüfung umgehend bearbeitet.
Ansprechpartner/in: Privat vom Eigentümer
OM PropTech GmbH
Humboldtstraße 25a, 21509 Glinde

Weitere Angebote in Odenthal