Stadthaus mit Carport: Stilvolles Wohnen und individuelle Gestaltung

72510 Stetten am kalten Markt
700.800 € Kaufpreis
Wohnfläche
147 m²
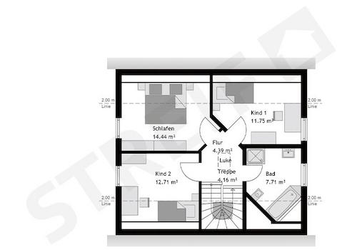
Zimmer
4
Offene Küche
Stellplatz

Kaufpreis

Kaufpreis 700.800 €
Stellplatz Garage Kaufpreis15.000 €

Wohnfläche, Grundstück & Bausubstanz

Wohnfläche147 m²
Grundstücksfläche665 m²
Zimmer4
Etagen2
Verfügbar ab Keine Angabe

Beschreibung der Immobilie

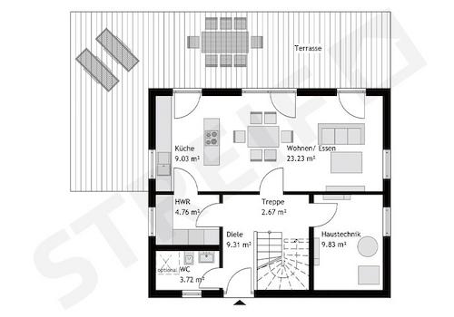
Die Architektur des Stadthauses bietet auf einer kompakten Grundfläche zahlreiche Highlights. Der repräsentative Wohn-/Ess- und Kochbereich wird durch eine Wohnraumerweiterung ergänzt und ist mit einem überdachten Terrassenbereich ausgestattet. Die Überdachung ist nicht nur optisch eine Aufwertung des Gebäudes, sie bietet den Bewohnern Schutz bei jeder Wetterlage.

Ausstattungsmerkmale

KücheOffene Küche
Bad1
Bad (Ausstattung)Dusche, Wanne, Fenster, Bidet
Garage/Stellplätze1
STREIF-Häuser sind Energiesparhäuser. Die Außenwände im Passiv-Haus-Standard und eine sparsame Heiztechnik mit integrierter Wohnraumlüftung und Wärmerückgewinnung, garantieren einen geringen Energieverbrauch und ein fantastisches Raumklima, das insbesondere Allergiker aufatmen lässt.

STREIF Leistungen sind MEHR WERT - schon im Grundpreis enthalten!
- 20-monatige Festpreisgarantie
- Energieeffizienzhaus KfW 40PLUS im Standard
- Inkl. Fundamentplatte
- Inkl. STREIF-Luft-Luft-Wärmepumpe mit integrierter
Lüftungsanlage mit Wärmerückgewinnung
- Inkl. Haustür von KERA und Fenster von Porta/Kömmerling
- Inkl. Massivholz-Geschosstreppe aus eigener Produktion
- Inkl. Sanitärobjekte von Markenherstellern
- Inkl. Vorbereitung zur Installation einer Photovoltaik-Anlage
- Inkl. Elektroinstallation
- Inkl. Baubetreuung u.v.m.
Die hohe Wertigkeit und Langlebigkeit eines STREIF-Energiespar-Hauses wird durch zahlreiche Auszeichnungen, Qualitäts- und Gütesiegel unabhängiger Institute und Verbände dokumentiert.

Wir bauen individuell für Sie, deshalb sind Bilder und Grundrisse Beispiele und Gestaltungsideen und können evtl. Anbauteile, Carports, Balkone, Gauben usw. zeigen, die nicht im Angebotspreis enthalten sind. Änderungen und Irrtümer vorbehalten.

Energie

Energietyp KfW-40
Heizungsart Zentralheizung
Energieträger/Befeuerung Luft-Wärme-Pumpe

Karte wird geladen...
72510 Stetten am kalten Markt

Lage & Infrastruktur

Gern können Sie für die Suche nach dem passenden Bauplatz meinen Grundstücksservice nutzen - ich unterstütze Sie dabei, das ideale Grundstück für Ihr Traumhaus zu finden. Der Grundstückspreis ist in dem angegebenen Hauspreis bereits berücksichtigt.

Es handelt sich hierbei um ein reales Grundstück, das sofort bebaut werden kann.

Sonstige Informationen

STREIF Leistungen sind mehr wert - schon im Grundpreis!

INDIVIDUELLE ARCHITEKTUR
-persönliche Architekten-Planung
-individuelle Grundrissgestaltung ohne Mehrpreis

UNSERE BAUWEISE
-mehrschichtiger diffusionsvariabler Wandaufbau bis U-Wert 0,10 W / m² * K - im Gefach (zwischen den Stielen) gemessen
-hochstabile Innenwand und Konstruktion
-Fenster gesamt: Uw-Wert 0,81 W/m² * K
Glas der Fenster: Ug-Wert 0,6 W/m² * K
-Haustür ab UD-Wert 0,64 W/m² * K
-30 Jahre Garantie auf statisches Tragwerk
-ausschließlich handgemacht in Deutschland
Ansprechpartner/in: Herr Dennis Käppeler
+49 6551 1200
STREIF Haus GmbH
Josef-Streif-Straße 1, 54595 Weinsheim
+49 6551 1200

Weitere Angebote in Stetten