Moderner Landhausstil: Wo Tradition auf High-End-Komfort trifft.

55765 Birkenfeld
471.160 € Kaufpreis
Wohnfläche
174 m²
Zimmer
7
Balkon

Kaufpreis

Kaufpreis 471.160 €

Wohnfläche, Grundstück & Bausubstanz

Wohnfläche174 m²
Grundstücksfläche535 m²
Zimmer7
Etagen2
Verfügbar ab Keine Angabe

Beschreibung der Immobilie

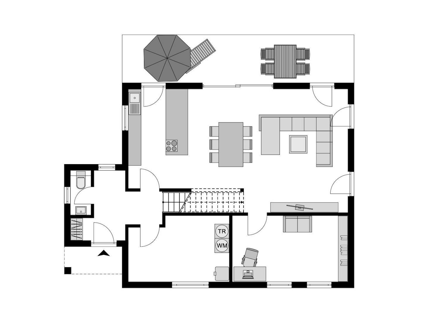
Ungebrochen ist die Begeisterung für das Bauen und Wohnen im Landhausstil. Dieser Hausentwurf interpretiert den Landhausstil in einem modernen Erscheinungsbild. Eine Wohnraumerweiterung mit überdachtem Hauseingang prägt, gemeinsam mit einem Zwerchgiebel mit Satteldach, die Frontseite des Landhauses. Auf 174 m² Grundfläche bietet der Entwurf viel Platz für die ganze Familie. Der Grundriss bietet im Erdgeschoss einen großen Wohn-/Ess- und Kochbereich, der sich über eine große Panorama-Hebeschiebetür und vier Terrassentüren zum Garten hin öffnet.

Ausstattungsmerkmale

Bad1
Bad (Ausstattung)Dusche
Balkone1
Das Streif City Haus wird im Standard KFW 40 PLUS ausgeführt. Innenausstattung aus dem STREIF-Programm in der Ausbaustufe FF+ inklusive Fundamentplatte.

■ Rohbau (geschlossene Gebäudehülle) mit Fenstern, Haustür1 inkl. Dacheindeckung
■ Außenfassade inkl. Außenputz, vor Ort komplett fertiggestellt
■ Komplette Blechner-/Spenglerarbeiten
■ lnnen-/Außenwände wärme- und schallgedämmt und mit Rigidur Gipsfaserplatten geschlossen
■ Geschosstreppe (außer Bungalow)
■ Decken wärme- und schallgedämmt und mit Gipskartonbau platten geschlossen
■ Elektroinstallation, einschließlich erforderlichem Zählerschrank und Inbetriebnahme
■ Heizungsanlage inkl. Inbetriebnahme
■ Innenfensterbänke Kunststeinbänke (Gussmarmorbänke) inkl. Einbau
■ Estrich
■ Sanitärräume mit Wand- und Bodenfliesen
■ Sanitärräume mit Sanitärobjekten
■ 7,12 kWP Photovoltaikanlage und 7,7 kWh Batteriespeicher

Die Innentüren sowie Wand-, Decken- und Bodenbeläge der übrigen Räume sind Eigenleistungen des Bauherren.

STREIF Frischluft-Wärmepumpen-Technologie - inklusive
- Heizen mit frischer Außenluft
- Kein Gasanschluss, kein Öl- oder Pelletlagerraum
- Keine Heizkörper
- Wärmetauscher mit bis zu 85% Wärmerückgewinnung

Die dargestellten Bilder können Sonderausstattungen beinhalten, die nicht im Preis enthalten sind!

zzgl. Ortüblicher Baunebenkosten

Selbstverständlich können wir Ihr Haus auch schlüsselfertig / bezugsfertig errichten.
■ Bodenbeläge, Sockel leisten verlegt
■ Maler- und Tapezierarbeiten
■ Innentüren inkl. Einbau

Energie

Energietyp KfW-40

Karte wird geladen...
55765 Birkenfeld

Lage & Infrastruktur

Dieses Angebot umfasst die Planung und Errichtung Ihres Hauses; die Kosten für das Grundstück fallen separat an.

Der Clou: Wir verstehen uns als Ihr Partner auf dem gesamten Weg. Sollten Sie noch nicht über das passende Fleckchen Erde verfügen, unterstützen wir Sie mit unserer Marktkenntnis und helfen Ihnen dabei, das passende Grundstück für Ihr Projekt zu finden. Profitieren Sie von unserer Erfahrung und starten Sie stressfrei in Ihr Bauabenteuer.

Sonstige Informationen

Mit der Ausbaustufe "FastFertigPlus" erhalten Sie ein Haus, das bereits in allen wesentlichen Bereichen fertiggestellt ist - inklusive Heizung, Lüftung, Sanitärinstallation und Estrich.
Sie übernehmen nur noch die Bodenbeläge und den Wandbelag in Eigenleistung - ganz nach Ihrem Geschmack.
Diese Variante ist ideal für Bauherren, die gestalterisch mitwirken möchten und dabei von spürbaren Einsparungen bei den Bau- und Finanzierungskosten profitieren wollen.

Ansprechpartner/in: Herr Markus Stemmler
STREIF Haus GmbH
Josef-Streif-Straße 1, 54595 Weinsheim

Weitere Angebote in Dambach