Baugebiet zwischen Halinger Dorfstraße und Am Abendsiepen Verkauf von 4 Baugrundstücken

Halinger Dorfstraße 58708 Menden, Nordrhein-Westfalen
Frei ab: sofort
127.145 € Kaufpreis
Grundstücksfläche
431 m²

Kaufpreis

Kaufpreis 127.145 €
Maklerprovisionkeine Provision, courtagefrei

Wohnfläche, Grundstück & Bausubstanz

Grundstücksfläche431 m²
Verfügbar ab sofort

Beschreibung der Immobilie

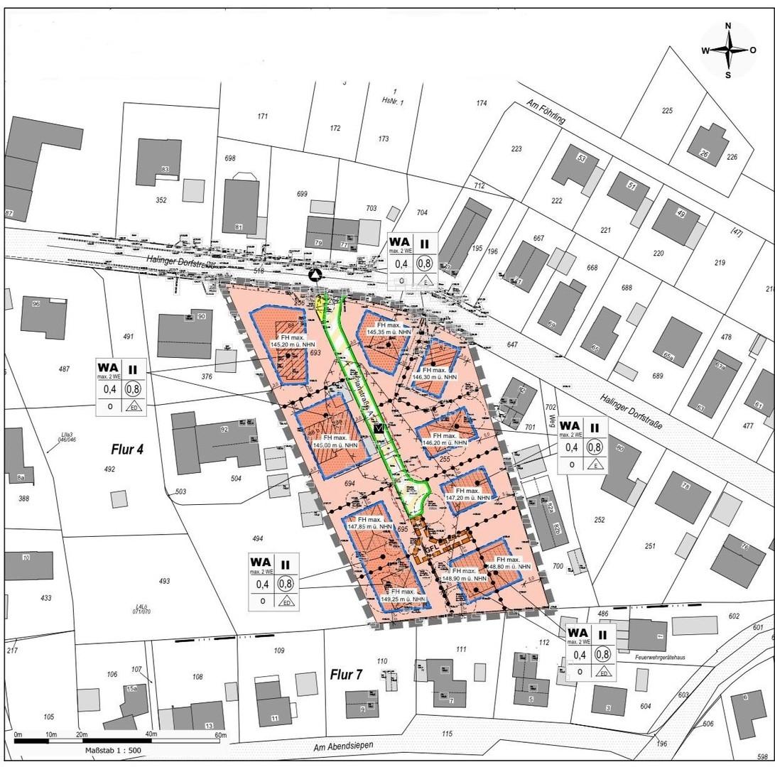
Im Ortsteil von Menden-Halingen entstehen in einem kleinen Neubaugebiet auf einer Gesamtfläche von ca. 2.172 m² vier Courtage freie Baugrundstücke mit folgenden Grundstücksgrößen:
Baugrundstück 1 Grundstücksgröße ca. 431 m²
Baugrundstück 2 Grundstücksgröße ca. 486 m²
Baugrundstück 3 Grundstücksgröße ca. 503 m²
Baugrundstück 4 Grundstücksgröße ca. 752 m²
Die Bebauung ist in zweigeschossiger Bauweise mit freistehenden Einfamilienhäusern und Doppelhaushälften nach Bebauungsplan Nr. 240 “Nachverdichtung zwischen Halinger Dorfstraße und Am Abendsiepen“ vorgesehen. Keine Architekten- und Bauträgerbindung !
Die Baugrundstücke 1 - 3 können mit Einfamilienhäusern bebaut, wahlweise sind auch zwei Wohneinheiten (Mehrgenerationenhaus) oder ein Einfamilienhaus mit einer Einliegerwohnung zulässig. Das Baugrundstück 4 können mit einem Einfamilienhaus oder einem Doppelhaus bebaut werden. Hier sind alternativ zwei Wohneinheiten pro Doppelhaushälfte zulässig (ein Doppelhaus max. 4. Wohneinheiten).
Die einzelnen Grundstücksgrößen- und Preise können Sie der beigefügten Auflistung entnehmen.
Die Erschließung der Baugrundstücke über eine Privatstraße ist gerade in Planung und ist im Kaufpreis enthalten. Nach derzeitigem Planungsstand gehen wir vom Baufortschritt der Straße bis zur Jahresmitte 2026 aus, so dass die Erwerber ab diesem Zeitpunkt mit dem Bau ihrer Immobilie beginnen können.

Wir laden Sie herzlich zu einem persönlichen Beratungstermin ein, um Ihnen das Baugebiet näher zu zeigen.

Karte wird geladen...
Halinger Dorfstraße
58708 Menden – Nordrhein-Westfalen

Lage & Infrastruktur

Menden (Sauerland) ist eine mittlere kreisangehörige Stadt in Nordrhein-Westfalen.
Sie liegt im Norden des Sauerlandes und gehört zum Märkischen Kreis. Der Ortsteil Halingen liegt nordwestlich vom Stadtgebiet Menden, an der Grenze zur Stadt Iserlohn im Süd-Westen und der Stadt Unna im Norden. Die gute Verkehrsanbindung im Nah- und Fernverkehr macht Halingen zu einem attraktiven Wohnort. Durch die nahe liegende Autobahn A44, sowie die Nähe zur A1 und A2 sind das Ruhrgebiet, aber auch der ostwestfälische Raum schnell zu erreichen. Auch der kurze Weg zum Flughafen Dortmund macht Halingen zu einem idealen Standort.
Infrastruktur (im Umkreis von 5 km):
Apotheke, Lebensmittel-Discount, Allgemeinmediziner, Kindergarten, Grundschule, Öffentliche Verkehrsmittel

Sonstige Informationen

Entwurfsplanung:
Sollten Sie keine passende Entwurfsplanung vorfinden, bieten wir Ihnen die Möglichkeit zur freien Planung. Mit dem Architekten planen Sie je nach Vorstellung und Budget Ihr Eigenheim.

Nebenkosten:
Zusätzlich zum Kaufpreis fallen keine weiteren Erschließungskosten an. Die Baunebenkosten zur Privatstraße, wie z.B. Baugrunduntersuchung, Erstellung der Teilungsgenehmigung, Vermessungskosten sowie der Vertrag zum Gemeinschaftsverhältnis, sind im aufgeführten Kaufpreis nicht enthalten.

Bebauungsplan:
Maßgebend ist der Bebauungsplan Nr. 240 Menden Sauerland “Nachverdichtung zwischen Halinger Dorfstraße und Am Abendsiepen“ mit seinen Festsetzungen.

Wir empfehlen Ihnen sowie Ihrem Architekt/Hausbauer vor der Planung Ihres Hauses den Bebauungsplan sowie die Festsetzungen einzusehen. Der Bebauungsplan kann zur Einsicht durch uns bereitgestellt werden.

Makleranfragen nicht erwünscht. Nach § 7 UWG sind unaufgeforderte Kontaktaufnahmen durch Makler ohne ausdrückliche Einwilligung des Empfängers verboten!

ohne-makler (OM) ist weder Anbieter noch Vermittler der Immobilie. OM betreibt eine Plattform für Immobilieneigentümer, die unter anderem die gleichzeitige Veröffentlichung einzelner Inserate auf mehreren Immobilienportalen ermöglicht. Die Inhalte dieser Inserate werden ausschließlich von Dritten verantwortet. Für die Richtigkeit, Vollständigkeit oder Rechtmäßigkeit der Angaben übernimmt OM keine Haftung. Hinweise auf mögliche Rechtsverstöße können jederzeit gemeldet werden und werden nach Prüfung umgehend bearbeitet.
Ansprechpartner/in: Angebot von Herr Ch. Nölle, i-verwaltung
02373 2818
OM PropTech GmbH
Humboldtstraße 25a, 21509 Glinde
02373 2818