Neubaustandard mit Gartenparadies in Zündorf - Nähe Groove

51143 Köln, Nordrhein-Westfalen
Frei ab: 01.06.2026
1.680 € Kaltmiete
15,00 € Preis/m² ca.
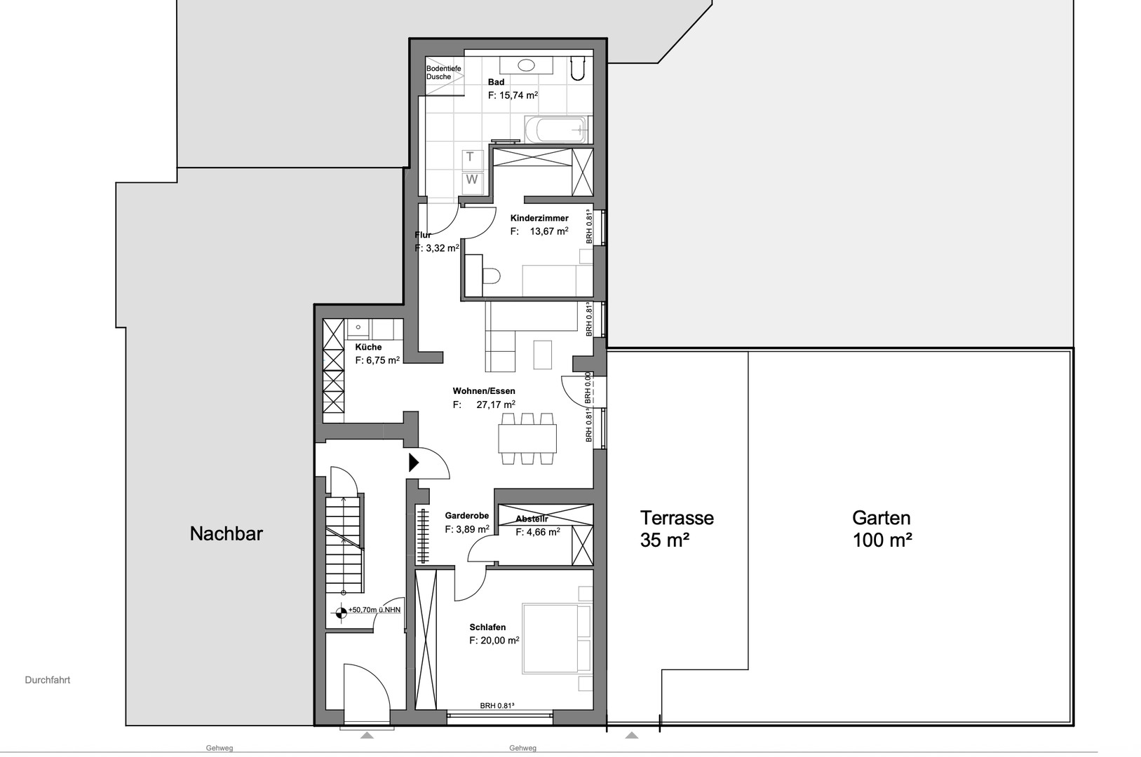
Wohnfläche
112 m²
Zimmer
3
Etage
0
Balkon
Terrasse
Garten
Keller

Mietpreis & Nebenkosten

Kaltmiete (netto)1.680 €
Nebenkosten 260 €
Heizkosten enthaltenJa
Kaution 3.360 €
Stellplatz Freiplatz Miete50 €

Wohnfläche, Grundstück & Bausubstanz

Wohnfläche112 m²
Zimmer3
Etagen3
Stockwerk0
Baujahr1900
Verfügbar ab 01.06.2026
ZustandTeil Vollsaniert

Beschreibung der Immobilie

Gehobene 3-Zimmerwohnung inkl. Terrasse (112 m2) und eigenem Gartengrundstück (ca. 100 m2)

...ideal für Paare oder eine kleine Familie geeignet.
Mit einer großzügigen Wohnfläche bietet diese Wohnung viel Platz und hohen Wohnkomfort. Die Wohnung verfügt über ein modernes Badezimmer und eine hochwertige Ausstattung (Neubaustandard). Ein besonderes Highlight ist der eigene Garten, der zum Entspannen einlädt, sowie ein eigener Stellplatz im Innenhof. Die Wohnung ist mit einer Fußbodenheizung ausgestattet.

Objektzustand: Erstbezug nach Sanierung

Ausstattungsmerkmale

Bad1
Bad (Ausstattung)Wanne
BodenFliesen, Kunststoff
Balkone0
Terrassen1
GartenJa
KellerJa
Terrasse, Garten, Keller, Vollbad, Fliesen

Bemerkungen:
Neubaustandard - Erstbezug nach vollumfassender Sanierung.

Energie

F
Energieeffizienzklasse F · 175 kWh/(m²*a)
EnergieausweistypBedarfsausweis
EnergieeffizienzklasseF
Endenergiebedarf175
Heizungsart Fußbodenheizung
Energieträger/Befeuerung Gas

Karte wird geladen...
51143 Köln – Nordrhein-Westfalen

Lage & Infrastruktur

Die angebotene Wohnung befindet sich in Köln-Zündorf, einem charmanten Stadtteil am Rande von Köln. Der Rhein und die bekannte Groove sind fußläufig erreichbar. Die KVB Linie 7 bietet eine gute Anbindung an die Kölner Innenstadt.
Infrastruktur (im Umkreis von 5 km):
Apotheke, Lebensmittel-Discount, Allgemeinmediziner, Kindergarten, Grundschule, Hauptschule, Realschule, Gymnasium, Gesamtschule, Öffentliche Verkehrsmittel

Sonstige Informationen

Heizungsart: Fußbodenheizung
Energieträger: Gas

Bei Interesse melden Sie sich gerne bei uns.
Sie erhalten dann einen Link zur Buchung eines Besichtigungstermins.

Makleranfragen nicht erwünscht. Nach § 7 UWG sind unaufgeforderte Kontaktaufnahmen durch Makler ohne ausdrückliche Einwilligung des Empfängers verboten!

ohne-makler (OM) ist weder Anbieter noch Vermittler der Immobilie. OM betreibt eine Plattform für Immobilieneigentümer, die unter anderem die gleichzeitige Veröffentlichung einzelner Inserate auf mehreren Immobilienportalen ermöglicht. Die Inhalte dieser Inserate werden ausschließlich von Dritten verantwortet. Für die Richtigkeit, Vollständigkeit oder Rechtmäßigkeit der Angaben übernimmt OM keine Haftung. Hinweise auf mögliche Rechtsverstöße können jederzeit gemeldet werden und werden nach Prüfung umgehend bearbeitet.
Ansprechpartner/in: Privat von Verena Becker
OM PropTech GmbH
Humboldtstraße 25a, 21509 Glinde

Weitere Angebote in Köln