Außergewöhnliche Immobilie mit Gastronomie, Hotel und Wohneinheit

42719 Solingen, Nordrhein-Westfalen
780.000 € Kaufpreis
Wohnfläche
95,574 m²
Zimmer
13
Garten
Keller
Stellplatz

Kaufpreis

Kaufpreis 780.000 €
MaklerprovisionKeine Käuferprovision

Wohnfläche, Grundstück & Bausubstanz

Wohnfläche95,574 m²
Gesamtfläche819,783 m²
Grundstücksfläche1.605 m²
Zimmer13
Etagen3
Verfügbar ab Keine Angabe
ZustandGepflegt

Beschreibung der Immobilie

Diese außergewöhnliche Immobilie vereint Gastronomie, Hotelbetrieb und Wohnen in einem Gebäude. Im Erdgeschoss befindet sich das Restaurant, während die erste Etage für den Hotelbetrieb und die zweite Etage als private Wohneinheit genutzt werden kann. Diese Kombination bietet eine attraktive Möglichkeit für Betreiber, Investoren oder Eigennutzer; Wohnen und Gewerbe unter einem Dach zu verbinden.

Der großzügige Gastronomiebereich mit ca. 491,34 m² überzeugt durch eine durchdachte Raumaufteilung und vielseitige Nutzungsmöglichkeiten. Über einen einladenden Eingangsbereich gelangen Gäste in den Restaurantbereich mit integrierter Theke, der eine angenehme Atmosphäre für den laufenden Gastronomiebetrieb bietet. Auf derselben Ebene befindet sich zudem ein separates Zimmer, das sich beispielsweise ideal als Kinderspielzimmer, Nebenraum oder privater Gastraum nutzen lässt. Ergänzt wird die Fläche durch einen großen Raum, der sich hervorragend als Gesellschafts-/Tagungsraum anbietet. Für den gastronomischen Betrieb steht eine großzügig eingerichtete und funktionierende Gastronomieküche zur Verfügung. Ein besonderes Highlight stellt die integrierte Kegelbahn mit gemütlichen Sitzmöglichkeiten dar, die zusätzliche Unterhaltungsmöglichkeiten für Gäste bietet. Darüber hinaus befindet sich im Erdgeschoss ein weiterer großer Raum mit separatem Eingang im Objekt, der flexibel genutzt werden kann, beispielsweise als zusätzlicher Gastraum, Veranstaltungsfläche oder Lagerbereich. In diesem Bereich stehen ebenfalls WCs sowie ein praktischer Abstellraum zur Verfügung.

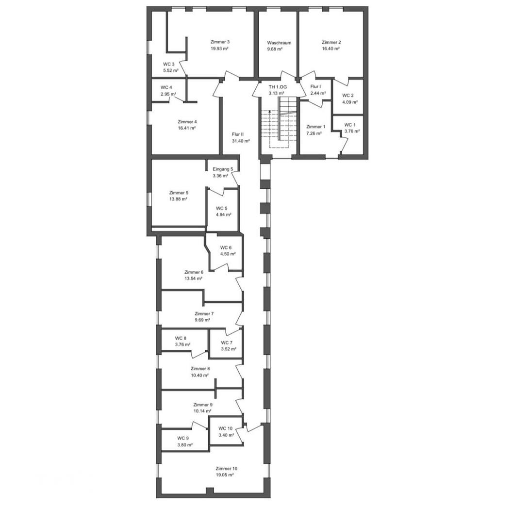
Vom Eingangsbereich aus führt eine Treppe in die erste Etage, in der sich der Hotelbereich mit ca. 223,81 m² des Gebäudes befindet. Hier stehen insgesamt zehn eingerichtete Hotelzimmer zur Verfügung, die jeweils über ein eigenes Badezimmer verfügen und somit den Gästen einen komfortablen Aufenthalt ermöglichen.
Ergänzt wird der Bereich durch einen kleinen Außenbereich, der derzeit als Raucherbereich genutzt wird und den Hotelgästen eine zusätzliche Aufenthaltsmöglichkeit im Freien bietet.

Über eine weitere Treppe gelangt man in die zweite Etage des Gebäudes. Hier befindet sich ein separater Wohnbereich mit ca. 95,57 m² Wohnfläche, aufgeteilt auf drei Zimmer, Küche, Diele sowie einem Badezimmer. Der Bereich eignet sich ideal als Betreiberwohnung, Personalwohnung oder private Wohneinheit und bietet somit eine praktische Kombination aus Wohnen und Arbeiten in einem Haus.


Der Außenbereich rundet das Angebot ab. Der Garten bietet zusätzliche Flächen zur privaten oder gewerblichen Nutzunge und schafft eine attraktive Atmosphäre. Zwei vorhandene Schuppen bieten praktische Abstell- und Lagermöglichkeiten.

Der Energieausweis liegt zur Besichtigung vor.

Dateien


Ausstattungsmerkmale

Bad (Ausstattung)Dusche, Fenster
GartenJa
KellerJa
Garage/Stellplätze2
- Kegelbahn
- Garten
- 2 Schuppen
- Theke
- Keller
- 2 Garagen
- Gastronomieküche

Energie

Wesentlicher EnergieträgerGas
Energieträger/Befeuerung Gas

Karte wird geladen...
42719 Solingen – Nordrhein-Westfalen

Lage & Infrastruktur

Die Immobilie befindet sich in einem gewachsenen Wohnumfeld im Raum Solingen, in dem sich Alltag und Freizeit angenehm verbinden lassen. Die Nachbarschaft ist geprägt von einer ruhigen, etablierten Struktur und einer ausgewogenen Mischung aus Eigentum und Miete.

Für den täglichen Bedarf ist vieles unkompliziert erreichbar. Einkaufsmöglichkeiten, Dienstleistungen und weitere Anlaufstellen für Besorgungen liegen in der Nähe, sodass Wege kurz gehalten werden können. Auch Familien profitieren von einer guten Umgebung: Angebote für Kinder und Freizeit sind gut vertreten, und die Infrastruktur unterstützt einen reibungslosen Tagesablauf.

Die Anbindung ist ein klarer Pluspunkt. Der öffentliche Nahverkehr ist sehr gut aufgestellt, wodurch sich Ziele in der Stadt und darüber hinaus bequem erreichen lassen. Gleichzeitig spricht die Lage auch Menschen an, die gern unabhängig unterwegs sind: Ob zu Fuß oder mit dem Fahrrad, vieles lässt sich in kurzer Zeit erledigen. Damit eignet sich das Umfeld sowohl für den entspannten Alltag als auch für spontane Unternehmungen.

Erholung und Bewegung kommen ebenfalls nicht zu kurz. Sport und Freizeitmöglichkeiten sind in der Umgebung gut verfügbar, und auch medizinische Versorgung ist verlässlich erreichbar. Insgesamt bietet diese Lage eine überzeugende Kombination aus guter Versorgung, starker Anbindung und einem Wohnumfeld, das sich langfristig angenehm anfühlt.

Sonstige Informationen

Das Kaufangebot wurde nach Angaben und Unterlagen des Verkäufers erstellt. Eine Gewähr für Vollständigkeit und Richtigkeit können wir nicht übernehmen.

Haftungsausschluss:
Wir bemühen uns, möglichst vollständige und richtige Angaben zu erhalten und weiterzuleiten. Eine Haftung für die Richtigkeit, Vollständigkeit und Aktualität der Angaben können wir jedoch nicht übernehmen.
Änderungen, Irrtum und Zwischenverkauf vorbehalten.

Hinweis:
Die im Exposé evtl. abgebildeten Einrichtungsgegenstände sind nicht Bestandteil des Angebotes, es sei denn, es wurde besonders darauf hingewiesen.

Sie überlegen Ihre Immobilie zu verkaufen?

Als lokale Immobilienexperten bieten wir Ihnen unseren kompletten Service, der Sie als Verkäufer von Beginn an bis hin zum Notartermin begleitet.
Mit unserer langjährigen Erfahrung und der hervorragenden Kenntnis des lokalen Immobilienmarktes möchten wir gerne auch Sie beim Immobilienverkauf unterstützen.

Wir sind stolz, durch unser Engagement in den führenden Internetportalen überdurchschnittlich gute Bewertungen erzielt zu haben. Die Fachzeitschrift "Focus-Spezial" hat unser Unternehmen seit 2013 durchgehend als eines der besten Immobilienunternehmen in Deutschland ausgezeichnet.

Als FALC Exklusivpartner bieten wir unseren Kunden noch mehr Vorteile. Wir sind jetzt Teil eines Immobiliennetzwerkes mit mehr als 150 Partnern an über 100 Standorten in Deutschland und Europa. So können wir Ihnen über 1.000 Immobilien anbieten, national wie international. In unserer Datenbank warten weit über 50.000 Interessenten auf Ihre Immobilie.

Gerne verkaufen wir mit Kompetenz und Leidenschaft auch Ihre Immobilie. Schenken Sie uns Ihr Vertrauen! Sie erreichen uns unter Tel : 0212 88 13 47 99
Ansprechpartner/in: Frau Sabine Littera
FALC Immobilien GmbH & Co. KG
Humperdickstr. 3, 53773 Hennef (Sieg)