Familienfreundliches Zuhause mit Garten und gemütlichem Wannenbad entdecken

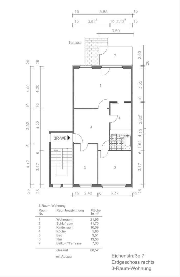
Eichenstraße 7 07549 Gera
Frei ab: nach Vereinbarung
415 € Kaltmiete
630 € Warmmiete inkl. NK
5,91 € Preis/m² ca.
Wohnfläche
70,26 m²
Zimmer
3
Etage
0
Balkon
Garten
Fahrstuhl
Keller
Stellplatz

Mietpreis & Nebenkosten

Kaltmiete (netto)415 €
Nebenkosten 90 €
Heizkosten125 €
Warmmiete630 €
Kaution 1245,00 €
Stellplatz Garage Miete45 €

Wohnfläche, Grundstück & Bausubstanz

Wohnfläche70,26 m²
Nutzfläche70,26 m²
Zimmer3
Etagen6
Stockwerk0
Baujahr1974
Letzte Modernisierung1996
Verfügbar ab nach Vereinbarung
ZustandTeil Vollrenoviert

Beschreibung der Immobilie

Es handelt sich um ein saniertes 6-geschossiges Wohngebäude mit Aufzug. Tiefgaragenstellplätze befinden sich in unmittelbarer Nähe.

Die Mindestmietzeit für die Wohnung beträgt ein Jahr. Nach diesem Jahr wandelt sich das Mietverhältnis in ein unbefristetes Mietverhältnis mit einer Kündigungsfrist von drei Monaten um.

Die im Exposé verwendeten Bilder sind vor der letzten Anmietung entstanden. Der aktuelle Zustand der Wohnung kann daher abweichen.

Die Wohnung ist aktuell noch belegt und kann ab Anfang Mai besichtigt werden.

Ausstattungsmerkmale

Bad1
Bad (Ausstattung)Wanne
Balkone1
GartenJa
Fahrstuhl
KellerJa
Garage/Stellplätze1
- großes helles Wohnzimmer
- Südbalkon mit Zugang zum Mietergarten
- gefliestes Bad mit Wanne
- Küche mit Fliesenspiegel
- Aufzug, Wechselsprechanlage und eigene Kellerbox vorhanden
- Anmietung eines Tiefgaragenstellplatzes je nach Verfügbarkeit möglich

Energie

B
Energieeffizienzklasse B · 61.30 kWh/(m²*a)
EnergieausweistypVerbrauch
EnergieeffizienzklasseB
Energieverbrauchkennwert61.30 kWh/(m²*a)
Heizungsart Zentralheizung
Energieträger/Befeuerung Fernwärme

Karte wird geladen...
Eichenstraße 7
07549 Gera

Lage & Infrastruktur

Lusan - ideal für Jung und Alt
- 3 Minuten zu Fuß bis zum Lusaner Einkaufspark
- gute Verkehrsanbindung an Straßenbahn, Busse ( 5 Minuten zu Fuß ) und Bundesstraße B2
- Einkaufsmöglichkeiten für Lebensmittel und Dinge des täglichen Bedarfs
- Kindereinrichtungen & Spielplätze
- Schulen nahezu aller Schularten
- Sport- und Freizeitangebote
- verschiedene Fachärzte & Apotheken
- ambulante Pflegedienste vorhanden
- reichlich Spazierwege im grünen Brütetal

Sonstige Informationen

Finden Sie Ihr neues Zuhause unter www.tag-wohnen.de und vereinbaren Sie Ihren persönlichen Besichtigungstermin. Wir freuen uns auf Ihre Anfrage.
Profitieren Sie als TAG Wohnen-Mieter von unseren Partnerangeboten und sichern Sie sich viele Sonderrabatte und günstige Konditionen u.a. in den Bereichen Unterhaltung, Umzug, Ernährung und Mobilität.
Strom und Gas von lekker Energie – Sichern Sie sich Ihren exklusiven TAG Wohnen-Bonus unter www.lekker.de/kunden/tag-wohnen
Sichern Sie sich zudem einen entspannten Umzug mit unserem Partner Transporo und einem 10% Rabatt über folgenden Link: www.transporo.de/tag
Alle Angaben in diesem Exposé wurden sorgfältig getätigt. Fehlerhafte Angaben können nicht ausgeschlossen werden, daher sind die Angaben ohne Gewähr. Maßgeblich sind die im Mietvertrag geschlossenen Vereinbarungen.
Ansprechpartner/in: Herr Maximilian Dömel
TAG Wohnen & Service GmbH
Steckelhörn 5, 20457 Hamburg

Weitere Angebote in Gera