Naturnah aufwachsen, gut angebunden leben - Simmelsdorf

91245 Simmelsdorf
490.295 € Kaufpreis
Wohnfläche
118 m²
Zimmer
4
Offene Küche

Kaufpreis

Kaufpreis 490.295 €

Wohnfläche, Grundstück & Bausubstanz

Wohnfläche118 m²
Grundstücksfläche490 m²
Zimmer4
Etagen2
Baujahr2027
Verfügbar ab Keine Angabe
ZustandProjektiert

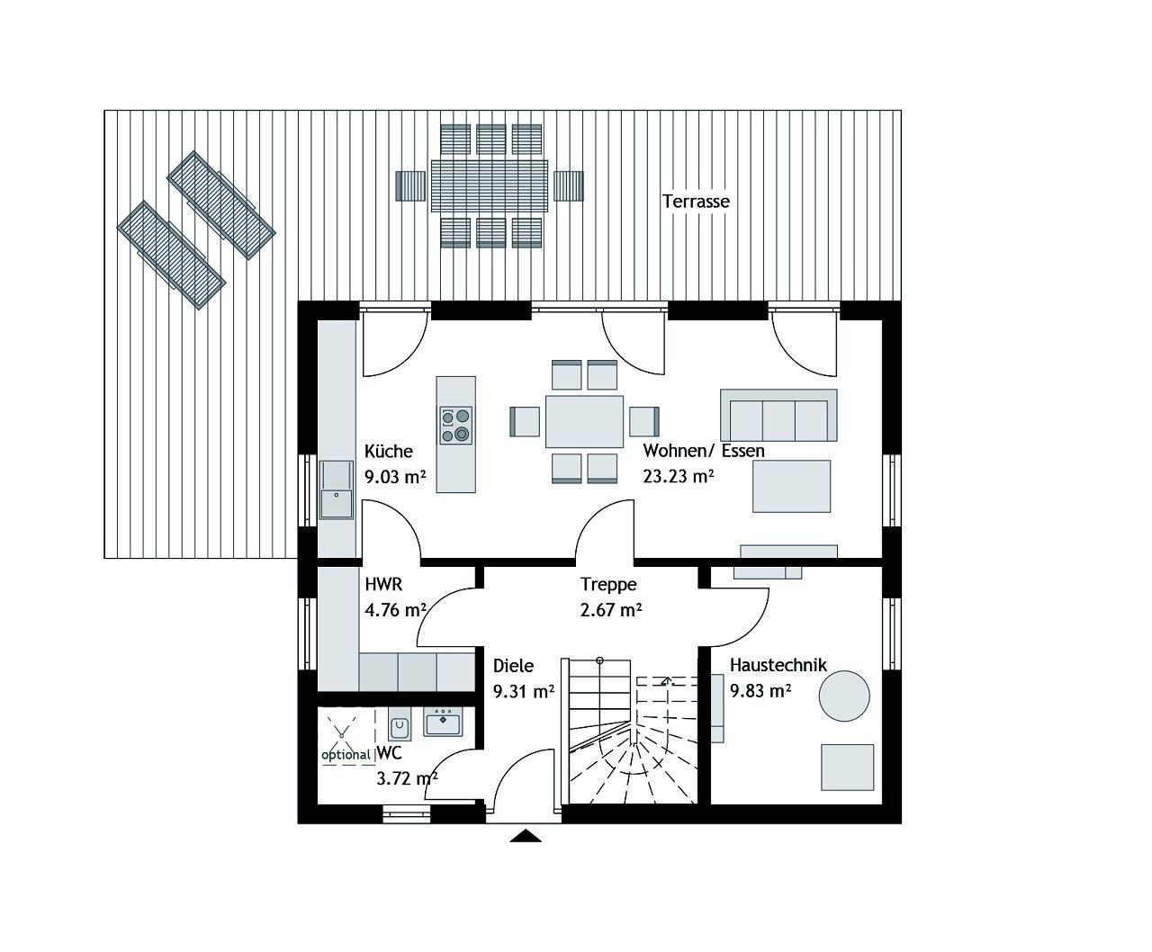
Beschreibung der Immobilie

Dieses durchdacht geplante Einfamilienhaus mit klassischem Satteldach bietet alles, was Familien brauchen:

✓ Lichtdurchfluteter, offener Wohn-/Ess-/Kochbereich
✓ Praktischer Hauswirtschaftsraum direkt neben der Küche
✓ Gäste-WC (optional als Duschbad)
✓ Eingangsbereich und Haustechnikraum
✓ 2 helle Kinderzimmer
✓ Großzügiges Elternschlafzimmer
✓ Modernes Familienbad

Ihre Vorteile:
- Kurze Bauzeit
- Einzigartige STREIF Services
- Umfangreiche Inklusiv-Leistungen
- Komplette Gestaltungsfreiheit
- Bewährte Qualität

Die hohe Wertigkeit und Langlebigkeit eines STREIF-Energiespar-Hauses wird durch zahlreiche Auszeichnungen, Qualitätssiegel und Gütesiegel unabhängiger Institute und Verbände dokumentiert.

Der Angebotspreis bezieht sich auf die Standard-Ausbaustufe "Fast-Fertig +". Spachtel-, Tapezier- und Malerarbeiten, Bodenbeläge sowie Innentüren sind in diesem Fall nicht enthalten, können jedoch auf Wunsch von STREIF ausgeführt oder als Eigenleistung erbracht werden.

Sie sind interessiert? Kontaktieren Sie mich unter 0173/3678139 für weitere Informationen!

Ausstattungsmerkmale

KücheOffene Küche
Bad1
Bad (Ausstattung)Dusche, Wanne, Fenster
STREIF-Häuser sind Energiesparhäuser mit Außenwänden im Passivhausstandard und einer effizienten Heiztechnik, die eine integrierte Wohnraumlüftung und Wärmerückgewinnung bietet. Dies gewährleistet nicht nur einen geringen Energieverbrauch, sondern auch ein fantastisches Raumklima.

Die Leistungen von STREIF sind umfangreich und bereits im Grundpreis enthalten:
- 20-monatige Festpreisgarantie
- Energieeffizienzhaus KfW 40 EE im Standard
- Individuelle Grundrissgestaltung und Raumaufteilung inklusive
- Fundamentplatte inklusive
- STREIF-Luft-Luft-Wärmepumpe mit integrierter Lüftungsanlage und Wärmerückgewinnung
- Haustür von KERA und Fenster von Porta/Kömmerling
- Massivholz-Geschosstreppe aus eigener Produktion
- uvm.

Energie

Energietyp KfW-40
Heizungsart Zentralheizung
Energieträger/Befeuerung Luft-Wärme-Pumpe

Karte wird geladen...
91245 Simmelsdorf

Lage & Infrastruktur

Simmelsdorf, rund 30 Kilometer nordöstlich von Nürnberg gelegen, bietet jungen Familien ein ruhiges Zuhause inmitten grüner Landschaft. Dörflicher Charme, eine lebendige Gemeinschaft und viel Platz für Kinder prägen das Wohnumfeld. Kinderbetreuung, Grundschule und Einkaufsmöglichkeiten sind direkt vor Ort, weiterführende Angebote gut erreichbar. Die Anbindung nach Nürnberg macht Simmelsdorf ideal für Familien, die entspanntes Landleben mit Alltagstauglichkeit verbinden möchten.

Hinweis:
Der Weg zu Ihrem Traumhaus beginnt mit dem richtigen Grundstück. Damit ich Sie bestmöglich und individuell beraten kann, erhalten Sie Informationen zu verfügbaren Grundstücken nach einem persönlichen Gespräch. So stellen wir gemeinsam sicher, dass alles perfekt zu Ihren Vorstellungen und Ihrem Bauvorhaben passt.

Lassen Sie uns gemeinsam den ersten Schritt gehen: Ich freue mich auf Ihren Anruf unter 0173 / 3678139 für ein unverbindliches Kennenlernen. Zusammen finden wir heraus, ob dieses Grundstück die Basis für Ihr zukünftiges Zuhause werden kann - oder ob es noch passendere Möglichkeiten für Sie gibt.

Sonstige Informationen

Angegebene Grundstücke (Grundstückspreis ist im Gesamtpreis enthalten) werden von Dritten angeboten und separat erworben. Zusätzliche Erwerbs- und Baunebenkosten müssen noch hinzugerechnet werden, hierüber beraten wir gerne.

Die Hausabbildungen und die Bilder der Inneneinrichtung zeigen Extras, die nicht im angegebenen Kaufpreis inbegriffen sind.

Interessiert? Kontaktieren Sie mich und vereinbaren ein erstes Gespräch unter 0173/3678139.
Ansprechpartner/in: Herr Frank Bohnert
06551-12 0
STREIF Haus GmbH
Josef-Streif-Straße 1, 54595 Weinsheim

Weitere Angebote in Simmelsdorf