Traumidylle mit unverbaubarem Fernblick*inkl. Keller*KfW*

56357 Weyer
499.099 € Kaufpreis
Wohnfläche
120 m²
Zimmer
5
Offene Küche
Balkon
Terrasse
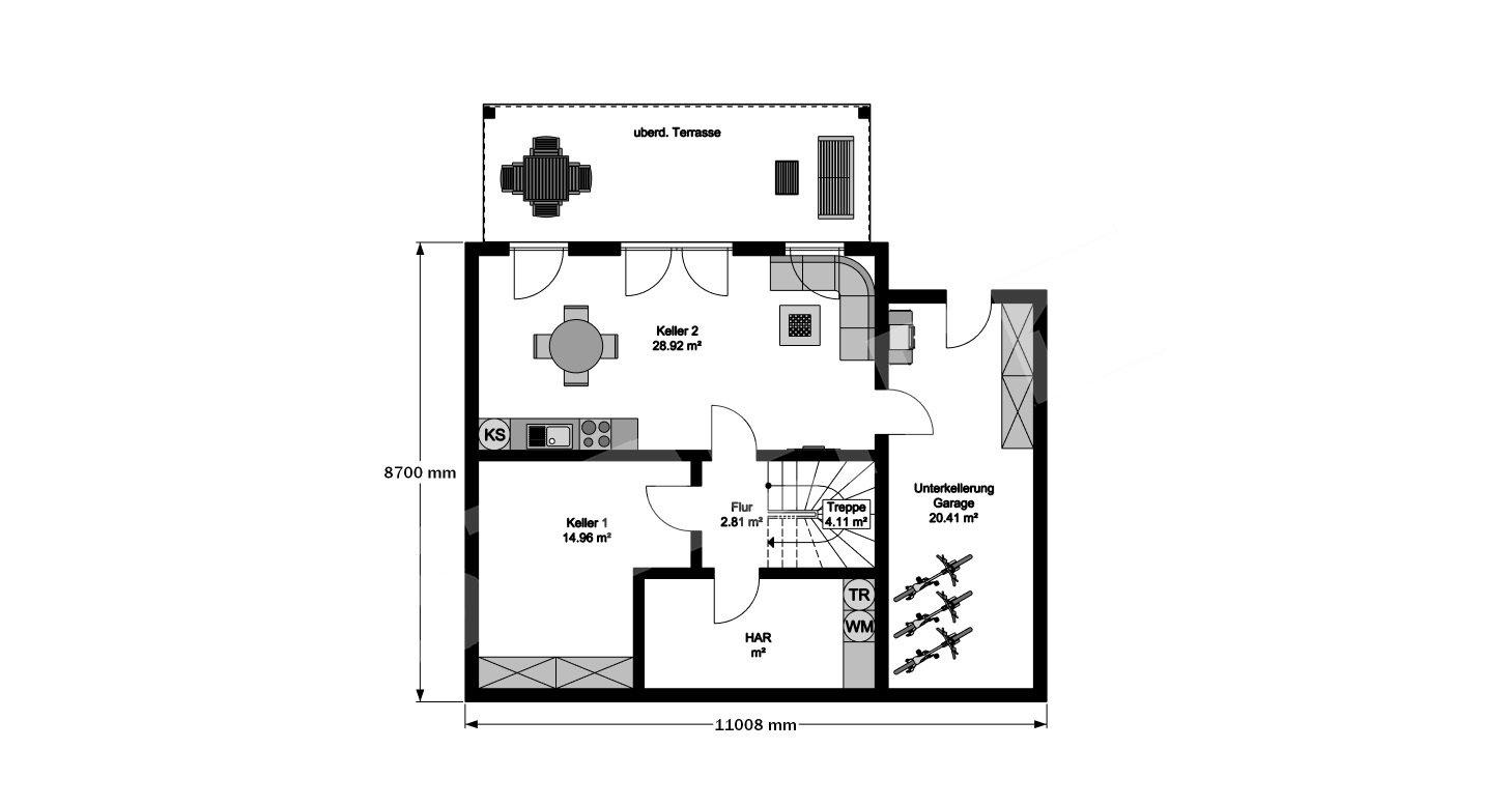
Keller

Kaufpreis

Kaufpreis 499.099 €
Maklerprovision0

Wohnfläche, Grundstück & Bausubstanz

Wohnfläche120 m²
Nutzfläche200 m²
Grundstücksfläche499 m²
Zimmer5
Baujahr2027
Verfügbar ab Keine Angabe
ZustandProjektiert

Beschreibung der Immobilie

Willkommen in Ihrem zukünftigen Traumhaus in Weyer! Dieses charmante Einfamilienhaus, projektiert nach Ihren individuellen Wünschen, bietet Ihnen auf 120 m² Wohnfläche viel Platz für Ihre Familie. Mit insgesamt 5 Zimmern, darunter 3 gemütliche Schlafzimmer, wird Ihnen und Ihren Liebsten ausreichend Raum für Entfaltung geboten. Das großzügige Badezimmer ist mit einer Dusche, einer Wanne und einem Fenster ausgestattet und bietet Ihnen den perfekten Ort zur Entspannung. Zudem steht Ihnen ein praktisches Gäste-WC zur Verfügung. Ihr neues Zuhause wird durch einen einladenden Balkon abgerundet, auf dem Sie die frische Luft genießen können. Das Grundstück mit 499 m² ist ideal für Ihre persönlichen Gestaltungsideen und lädt zu einem Leben im Freien ein. Mit der Ausbaustufe "FastFertigPlus" haben Sie die Möglichkeit, aktiv an der Verwirklichung Ihres Traumhauses mitzuwirken, während die haustechnischen Gewerke von erfahrenen Fachbetrieben übernommen werden. Der Preis für dieses Haus beginnt ab 344.375 EUR und entspricht dem hohen KFW40 Standard, der Ihnen eine effiziente Energienutzung und niedrige Heizkosten garantiert.

Ausstattungsmerkmale

KücheOffene Küche
Bad1
Bad (Ausstattung)Dusche, Wanne, Fenster
Balkone1
Terrassen1
KellerJa
Ihre Ausstattung wird höchsten Ansprüchen gerecht! Die gehobene Ausstattung umfasst eine moderne Luft-Wasser-Wärmepumpe mit Fußbodenheizung, die nicht nur umweltfreundlich ist, sondern auch für ein angenehmes Raumklima sorgt. Die Kombination aus innovativer Technik und stilvollem Design sorgt dafür, dass Sie sich in Ihrem neuen Heim rundum wohlfühlen. Die gehobene Sanitärausstattung in der Ausbaustufe "FastFertigPlus" in "PREMIUM" Qualität mit Feinsteinzeugfliesen gewährleistet Ihnen, dass alle notwendigen Installationen fachgerecht durchgeführt werden, sodass Sie sich auf das Wesentliche konzentrieren können: Ihr neues Zuhause. Die Verwendung hochwertiger Materialien und modernster Bauverfahren garantiert Ihnen Langlebigkeit und Wertbeständigkeit.

Energie

Energietyp KfW-40
Heizungsart Fußbodenheizung
Energieträger/Befeuerung Luft-Wärme-Pumpe

Karte wird geladen...
56357 Weyer

Lage & Infrastruktur

Weyer empfängt seine Besucher mit einer warmen, offenen Landschaft, die sich sanft über die Höhen des Rhein‑Lahn‑Kreises legt. Der kleine Ort liegt idyllisch am Übergang zwischen Taunus und Hunsrück und profitiert von einer erhöhten Südhanglage, die ihm ein freundliches Mikroklima und weite Ausblicke über das Rheintal schenkt. Wer hier ankommt, spürt sofort die Ruhe eines gewachsenen Dorfes, das von gepflegten Fachwerkhäusern, einem harmonischen Ortskern und viel Grün umgeben ist - ein Ort, an dem man tief durchatmen kann.
Die Umgebung ist geprägt von Wäldern, offenen Feldern und sanften Hügeln, die zu Spaziergängen, Wanderungen und Radtouren einladen. Nur wenige Minuten entfernt öffnet sich das romantische Mittelrheintal mit seinen Burgen, Weinbergen und spektakulären Aussichtspunkten wie dem weltbekannten Loreley-Felsen. Auch die Straußenfarm in Weyer ist ein beliebtes Ziel für Familien und Naturfreunde und verleiht dem Ort einen charmanten, ländlichen Charakter. Ob entspannte Touren entlang von Rhein und Lahn, kulturelle Ausflüge in historische Städte oder aktive Erlebnisse in der Natur - Weyer bietet eine außergewöhnlich reizvolle Mischung aus Ruhe, Weite und Nähe zu den schönsten Landschaften der Region.

Sonstige Informationen

Bei STREIF haben Sie die Möglichkeit, aus vier verschiedenen Ausbaustufen zu wählen, die Ihnen zahlreiche Optionen zur individuellen Gestaltung Ihres Traumhauses bieten. Durch Eigenleistungen in Form einer Muskelhypothek haben Sie die Chance, bares Geld zu sparen, indem Sie kleinere Kredite aufnehmen und somit die Zinslast reduzieren oder die Kreditlaufzeiten verkürzen. In einem umfassenden Beratungsgespräch klären wir Ihre Wünsche und Vorstellungen, um das perfekte Haus für Sie zu entwerfen. Sie entscheiden, ob Sie ein Einfamilienhaus mit Walmdach, Flachdach oder klassischem Satteldach, mit oder ohne Keller und in einem oder mehreren Geschossen wünschen. Erst wenn Sie mit dem entworfenen Grundriss vollkommen zufrieden sind, beginnt die Umsetzung, die wir innerhalb weniger Monate realisieren. Ihr neues Zuhause übergeben wir Ihnen schlüsselfertig oder in der von Ihnen gewünschten Ausbaustufe.
Die Bilder sind beispielhaft, können Anbauteile und/ oder Garagen enthalten, die nicht Bestandteil des Angebots sind.
Baunebenkosten enstehen zusätzlich.
Lassen Sie uns gerne über alles sprechen, größer geht natürlich auch, nutzen Sie die KfW 300 Förderung, sprechen Sie uns gerne an.
Ansprechpartner/in: Herr Henrik Menzel
STREIF Haus GmbH
Josef-Streif-Straße 1, 54595 Weinsheim

Weitere Angebote in Auel