Einfamilienhaus Neubau in Schiffweiler !

66578 Schiffweiler
Frei ab: nach Vereinbarung
419.000 € Kaufpreis
Wohnfläche
127 m²
Zimmer
5
Offene Küche
Terrasse
Stellplatz

Kaufpreis

Kaufpreis 419.000 €
Stellplatz Garage Kaufpreis9.000 €

Wohnfläche, Grundstück & Bausubstanz

Wohnfläche127 m²
Grundstücksfläche570 m²
Zimmer5
Etagen2
Baujahr2027
Verfügbar ab nach Vereinbarung
ZustandErstbezug

Beschreibung der Immobilie

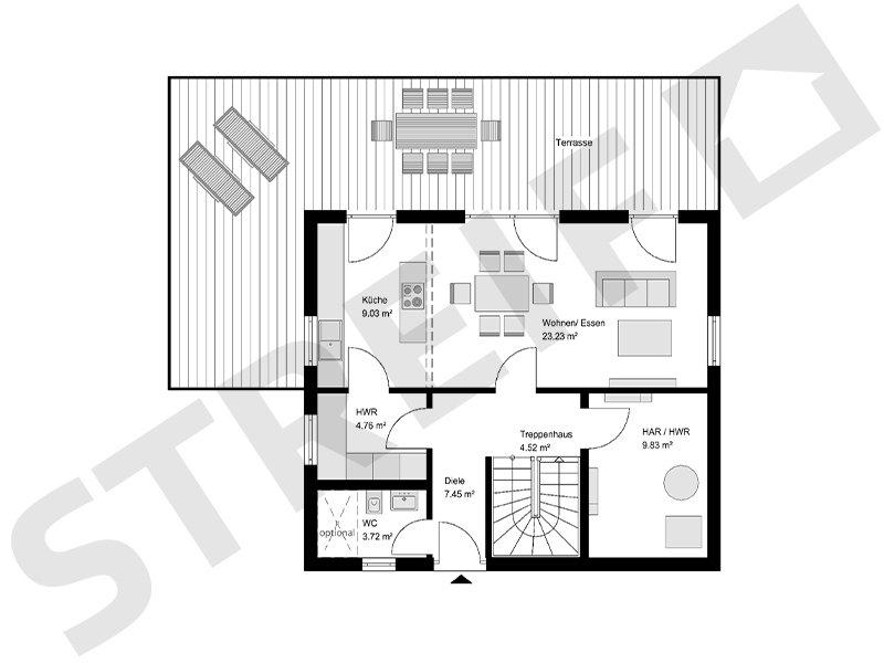
Dieses charmante Zuhause mit Satteldach bietet Ihnen nicht nur ein durchdachtes Raumkonzept, sondern auch ein lichtdurchflutetes Ambiente, das zum Wohlfühlen einlädt.

Der offene Wohn-, Ess- und Kochbereich ist der perfekte Ort für gesellige Abende mit der Familie oder Freunden. Der praktische Hauswirtschaftsraum direkt neben der Küche sorgt dafür, dass alles seinen Platz hat und Sie den Alltag entspannt meistern können.

Im Erdgeschoss finden Sie zudem ein Gäste-WC, das flexibel auch als Duschbad genutzt werden kann, sowie eine einladende Diele und einen Haustechnikraum, die den Komfort Ihres neuen Zuhauses abrunden.

Im Dachgeschoss erwarten Sie zwei wunderschöne Kinderzimmer, ein gemütliches Elternschlafzimmer, ein Flur und ein Familienbad - alles, was Sie für harmonische Familienmomente benötigen.

Die durchdachte Anordnung der Treppe und des Haustechnikraumes sorgt für eine optimale Nutzung des Raumes.

Lassen Sie sich von diesem Einfamilienhaus inspirieren und gestalten Sie Ihr neues Zuhause, in dem Erinnerungen geschaffen werden!

Ausstattungsmerkmale

KücheOffene Küche
Bad1
Bad (Ausstattung)Dusche, Wanne, Fenster
BodenFliesen, Stein, Teppich, Parkett, Fertigparkett, Laminat, Dielen, Kunststoff, Linoleum, Marmor, Granit
Terrassen1
Garage/Stellplätze1
STREIF-Häuser sind Energiesparhäuser. Die Außenwände im Passiv-Haus-Standard und eine sparsame Heiztechnik mit integrierter Wohnraumlüftung und Wärmerückgewinnung, garantieren einen geringen Energieverbrauch und ein fantastisches Raumklima, das insbesondere Allergiker aufatmen lässt.

STREIF Leistungen sind MEHR WERT - schon im Grundpreis enthalten!
- 16-monatige Festpreisgarantie
- Energieeffizienzhaus KfW 40 EE im Standard
- Inkl. Fundamentplatte
- Inkl. STREIF-Luft-Luft-Wärmepumpe mit integrierter
Lüftungsanlage mit Wärmerückgewinnung
- Inkl. Haustür von KERA und Fenster von Porta/Kömmerling
- Inkl. Massivholz-Geschosstreppe aus eigener Produktion
- Inkl. Sanitärobjekte von Markenherstellern
- Inkl. Elektroinstallation
- Inkl. Baubetreuung u.v.m.
Die hohe Wertigkeit und Langlebigkeit eines STREIF-Energiespar-Hauses wird durch zahlreiche Auszeichnungen, Qualitäts- und Gütesiegel unabhängiger Institute und Verbände dokumentiert.

Der Angebotspreis ist inklusive Grundstück und bezieht sich auf die Standard-Ausbaustufe Fast-Fertig-Plus. Ihre Eigenleistungen: Spachtel-,Tapezier- und Malerarbeiten, Bodenbeläge, Innentüren.
Baunebenkosten fallen zuzüglich an.
Der Verkauf des Grundstücks erfolgt über Privat

Bilder können evtl. Anbauteile, Carports, Balkone, Gauben usw. zeigen, die nicht im Angebotspreis enthalten sind. Änderungen und Irrtümer vorbehalten.

Ich berate Sie gerne ausführlich

Thomas Heitz 0160 7038141 oder thomas.heitz@streif.de

Energie

A+
Energieeffizienzklasse A+ · 33.00 kWh/(m²*a)
EnergieausweistypVerbrauch
Baujahr (laut Energieausweis)2027
EnergieeffizienzklasseA+
Energietyp Niedrigenergie, Neubaustandard, KfW-40
Energieverbrauchkennwert33.00 kWh/(m²*a)
Heizungsart Zentralheizung
Wesentlicher EnergieträgerStrom
Energieträger/Befeuerung Luft-Wärme-Pumpe

Karte wird geladen...
66578 Schiffweiler

Lage & Infrastruktur

Dieses wunderschöne Einfamilienhaus wird in einer äußerst familienfreundlichen Lage in Schiffweiler, die Ihnen und Ihren Liebsten ein harmonisches und glückliches Leben bietet, gebaut. Hier finden Sie nicht nur ein Zuhause, sondern auch einen Ort, an dem Erinnerungen geschaffen werden. Lassen Sie sich von der einladenden Atmosphäre und der idealen Umgebung für Familien begeistern!
Das Haus ist auf einem realen Baugrundstück geplant oder auf einem Grundstück in einer Planungsphase. Das Grundstück erwerben Sie direkt vom Eigentümer. Der Preis des Grundstücks ist im Angebotspreis bereits eingerechnet.

Bitte haben Sie Verständnis dafür, dass wir ohne ein persönliches Gespräch keine Grundstücksdaten weiterleiten können.

Gern sind wir bei der Wahl Ihres Traumgrundstückes behilflich!

Natürlich können wir ihren Haustraum auch auf einem anderen Grundstück realisieren, lassen Sie sich dazu in einem unverbindlichen Gespräch zu Ihrem Bauvorhaben beraten.

Thomas Heitz 0160 7038141 oder thomas.heitz@streif.de

Sonstige Informationen

Wahlweise kann Ihr Haus in den Ausbaustufen "AUSBAUFERTIG" oder "FASTFERTIG" oder FASTFERTIG PLUS" bis hin zu "SCHLÜSSELFERTIG" geplant werden.

Wir ermitteln in der Bedarfsanalyse gemeinsam mit Ihnen den gewünschten Fertigstellungsgrad und kalkulieren den entsprechenden Preis für Sie.

Abgesehen von den Ausbaustufen bestimmen Sie ebenso die technische und optische Ausstattung ganz nach Ihren Vorstellungen und Wünschen.

Diese ersten Gespräche und die Erstellung eines Angebotes sind für Sie kostenlos.

Ich freue mich schon jetzt auf unseren ersten gemeinsamen Termin damit wir mit den ersten Schritten beginnen können.

Thomas Heitz 0160 7038141 oder thomas.heitz@streif.de
Ansprechpartner/in: Herr Thomas Heitz
STREIF Haus GmbH
Josef-Streif-Straße 1, 54595 Weinsheim

Weitere Angebote in Schiffweiler