Kernsanierte 4-Zi.-Wohnung mit Terrasse – energieeffizient & provisionsfrei

84051 Essenbach, Bayern
Frei ab: sofort
389.000 € Kaufpreis
Wohnfläche
115 m²
Zimmer
4
Etage
0
Balkon
Terrasse
Garten
Keller
Barrierefrei
Stellplatz

Kaufpreis

Kaufpreis 389.000 €
Maklerprovisionkeine Provision, courtagefrei
Stellplatz Garage Kaufpreis15.000 €

Wohnfläche, Grundstück & Bausubstanz

Wohnfläche115 m²
Zimmer4
Etagen2
Stockwerk0
Baujahr1993
Verfügbar ab sofort
ZustandTeil Vollsaniert

Beschreibung der Immobilie

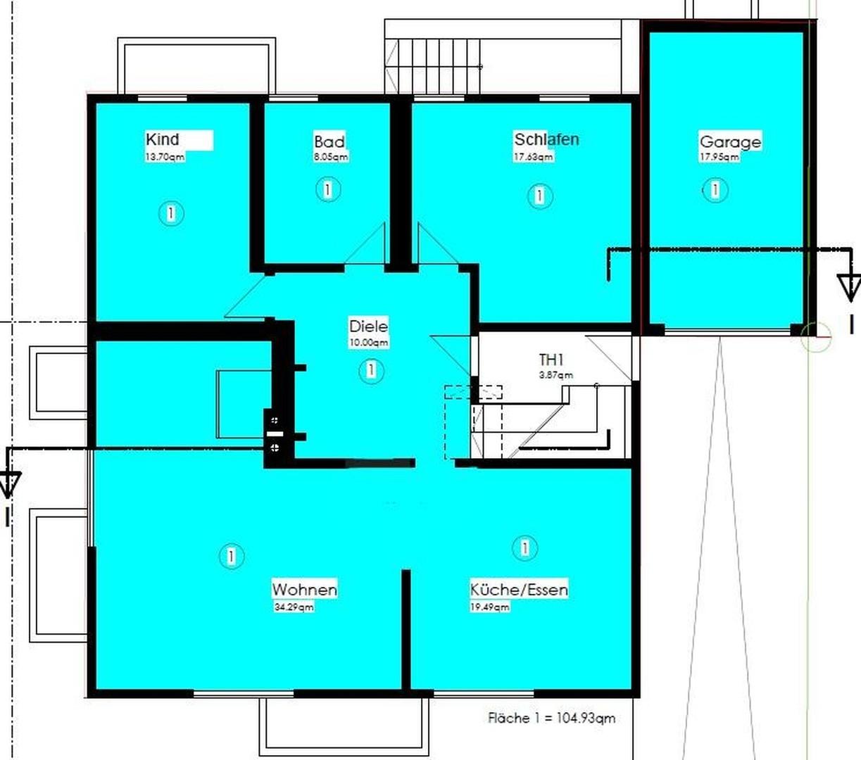
Diese hochwertig modernisierte und barrierefreie Wohnung überzeugt mit durchdachtem Wohnkomfort, energieeffizienter Technik und stilvollem Design. Auf großzügigen ca. 115 m² Wohnfläche erwartet Sie ein Zuhause, das keine Wünsche offenlässt.

Objektzustand: Erstbezug nach Sanierung

Ausstattungsmerkmale

Bad1
BodenParkett
Balkone0
Terrassen1
GartenJa
BarrierefreiJa
KellerJa
Garage/Stellplätze1
Terrasse, Garten, Keller, Kamin, Barrierefrei, Parkett

Bemerkungen:
Highlights auf einen Blick:

Provisionsfreier Verkauf
Neue, energieeffiziente Wärmepumpe
Klimaanlage in allen Wohnräumen
Eigene Photovoltaikanlage (8,20 kWp)
Eigener Batteriespeicher (6 kWh)
Komplett erneuerte Elektroinstallation
Neues modernes Badezimmer mit großer, ebenerdiger Dusche und elektrischer Fußbodenheizung
Neue Brauchwasserleitungen inkl. Warmwasserspeicher
Hochwertiger Echtholz-Parkettboden
Stilvolle weiße Innentüren mit schwarzer Garnitur
Neu gespachtelte und gestrichene Innenwände
Elektrische Rollläden für maximalen Komfort
Gemütlicher Kaminofen im Wohnzimmer
Smart Home Steuerung (Daikin Home Hub)
Barrierefreie Ausführung


Außenbereich & Extras:

Sonnige Terrasse mit eigenem Garten
Sehr großes, eigenes Kellerabteil
Eigene Garage
Neuer Gartenzaun

Energie

A
Energieeffizienzklasse A · 41 kWh/(m²*a)
EnergieausweistypVerbrauch
EnergieeffizienzklasseA
Energieverbrauchkennwert41 kWh/(m²*a)
Energieträger/Befeuerung Elektro

Karte wird geladen...
84051 Essenbach – Bayern

Lage & Infrastruktur

Die Wohnung befindet sich in Unterahrain im Landkreis Landshut, einer ruhigen und gewachsenen Wohnlage mit hoher Lebensqualität. Besonders attraktiv ist die Nähe zur Stadt Landshut, die in nur wenigen Fahrminuten erreichbar ist.

Landshut bietet eine hervorragende Infrastruktur mit vielfältigen Einkaufsmöglichkeiten, Schulen, Kindergärten, medizinischer Versorgung sowie einem breiten Freizeit- und Kulturangebot. Die historische Altstadt mit ihren Cafés, Restaurants und Veranstaltungen sorgt zudem für ein besonderes Wohnumfeld.

Dank der guten Verkehrsanbindung erreichen Sie sowohl die Innenstadt von Landshut als auch die umliegenden Wirtschaftsstandorte schnell und bequem. Gleichzeitig genießen Sie in Unterahrain die Ruhe und Erholung einer ländlich geprägten Wohnlage.

Diese Kombination aus naturnahem Wohnen und unmittelbarer Stadtnähe macht den Standort besonders attraktiv für Familien, Berufspendler und alle, die eine ausgewogene Work-Life-Balance schätzen.
Infrastruktur (im Umkreis von 5 km):
Apotheke, Lebensmittel-Discount, Allgemeinmediziner, Kindergarten, Grundschule, Hauptschule, Gesamtschule, Öffentliche Verkehrsmittel

Sonstige Informationen

Heizungsart: Sonstiges (s. Text)
Energieträger: Strom

Besichtigungstermine erfolgen meist am Wochenende.

Makleranfragen unerwünscht.

Makleranfragen nicht erwünscht. Nach § 7 UWG sind unaufgeforderte Kontaktaufnahmen durch Makler ohne ausdrückliche Einwilligung des Empfängers verboten!

ohne-makler (OM) ist weder Anbieter noch Vermittler der Immobilie. OM betreibt eine Plattform für Immobilieneigentümer, die unter anderem die gleichzeitige Veröffentlichung einzelner Inserate auf mehreren Immobilienportalen ermöglicht. Die Inhalte dieser Inserate werden ausschließlich von Dritten verantwortet. Für die Richtigkeit, Vollständigkeit oder Rechtmäßigkeit der Angaben übernimmt OM keine Haftung. Hinweise auf mögliche Rechtsverstöße können jederzeit gemeldet werden und werden nach Prüfung umgehend bearbeitet.
Ansprechpartner/in: Angebot vom Eigentümer
OM PropTech GmbH
Humboldtstraße 25a, 21509 Glinde

Weitere Angebote in Essenbach