Freistehender Bungalow mit direktem Parkzugang – Köln

50769 Köln, Nordrhein-Westfalen
Frei ab: sofort
580.000 € Kaufpreis
Wohnfläche
120 m²
Zimmer
7
Einbauküche
Balkon
Terrasse
Garten
Keller
Barrierefrei
Stellplatz

Kaufpreis

Kaufpreis 580.000 €
Maklerprovisionkeine Provision, courtagefrei

Wohnfläche, Grundstück & Bausubstanz

Wohnfläche120 m²
Grundstücksfläche524 m²
Zimmer7
Etagen1
Baujahr1971
Verfügbar ab sofort
ZustandGepflegt

Beschreibung der Immobilie

In absolut ruhiger Wohnlage von Köln-Seeberg, direkt angrenzend an einen weitläufigen Park, präsentiert sich dieser freistehende Bungalow mit einer Wohnfläche von ca. 120 m² sowie einem vollständig ausgebauten, tageslichthellen Kellergeschoss mit weiteren ca. 120 m² Nutzfläche.

Das 1971 erbaute Haus bietet viel Raum für Familien und Paare. Zwei Garagen gehören ebenso zur Immobilie wie eine uneinsehbare Terrasse mit Blick ins Grüne. Beheizt wird das Objekt nachhaltig und effizient über umweltfreundliche Fernwärme.

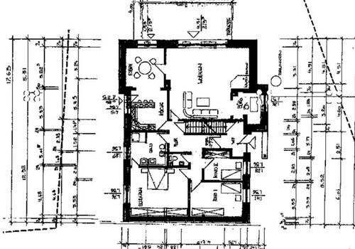
Erdgeschoss – Licht, Luft und offene Räume:
Das Herzstück im Erdgeschoss ist das großzügige, lichtdurchflutete Wohn- und Esszimmer mit direktem Übergang in ein anschließendes Arbeitszimmer – ideal für Homeoffice oder Bibliothek. Zwei Schlafzimmer, ein Tageslichtbad sowie ein separates Gäste-WC vervollständigen das durchdachte Raumangebot.

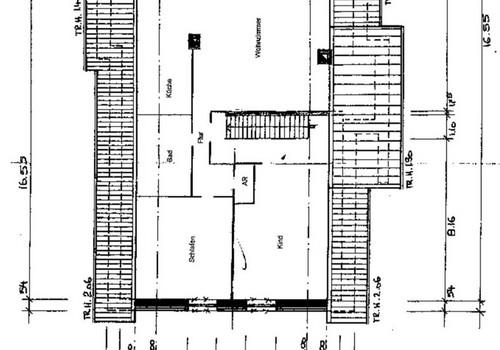
Voll ausgebautes Untergeschoss mit Wohnqualität:
Dank großer Lichtschächte und einer Deckenhöhe von 2,48 m bietet das Kellergeschoss eine außergewöhnlich wohnliche Atmosphäre. Hier finden sich ein großer Hobbyraum, ein Bügel- oder Gästezimmer, ein Spielzimmer, zwei Abstellräume, ein weiteres Bad mit Dusche sowie eine separate Waschküche.

Dateien


Ausstattungsmerkmale

KücheEinbauküche
Bad2
Bad (Ausstattung)Dusche, Wanne
BodenFliesen, Parkett
Balkone0
Terrassen1
GartenJa
BarrierefreiJa
KellerJa
Garage/Stellplätze2
Terrasse, Garten, Keller, Vollbad, Duschbad, Einbauküche, Gäste-WC, Barrierefrei, Parkett, Fliesen

Bemerkungen:
Die eingestellten Bilder sind mit KI überarbeitete Aufnahmen. Für die bessere Vorstellung wurden teilweise Möbel hinzugefügt. Das Haus ist grundsätzlich leergeräumt.

Energie

G
Energieeffizienzklasse G · 240 kWh/(m²*a)
EnergieausweistypBedarfsausweis
EnergieeffizienzklasseG
Endenergiebedarf240
Heizungsart Zentralheizung
Energieträger/Befeuerung Fernwärme

Karte wird geladen...
50769 Köln – Nordrhein-Westfalen

Lage & Infrastruktur

Die unmittelbare Nachbarschaft zum Park bietet nicht nur Ruhe, sondern auch ideale Bedingungen für Familien mit Kindern. Der Fühlinger See als beliebtes Naherholungsgebiet ist in nur fünf Gehminuten erreichbar und lädt zum Baden, Spazierengehen und Entspannen ein. Auch das Longericher Wäldchen liegt in Laufweite.
Kindergärten, Schulen und Einkaufsmöglichkeiten befinden sich in direkter Nähe und unterstreichen die Familienfreundlichkeit der Lage.

Ob mit dem Auto oder öffentlichen Verkehrsmitteln – die Anbindung nach Köln-Zentrum, Leverkusen, Neuss und Düsseldorf ist hervorragend. Das nahegelegene Autobahnnetz sowie Bus- und Bahnverbindungen sorgen für eine schnelle Erreichbarkeit aller wichtigen Ziele.
Infrastruktur (im Umkreis von 5 km):
Apotheke, Lebensmittel-Discount, Allgemeinmediziner, Kindergarten, Grundschule, Hauptschule, Realschule, Gymnasium, Gesamtschule, Öffentliche Verkehrsmittel

Sonstige Informationen

Heizungsart: Zentralheizung
Energieträger: Fernwärme


Makleranfragen nicht erwünscht. Nach § 7 UWG sind unaufgeforderte Kontaktaufnahmen durch Makler ohne ausdrückliche Einwilligung des Empfängers verboten!

ohne-makler (OM) ist weder Anbieter noch Vermittler der Immobilie. OM betreibt eine Plattform für Immobilieneigentümer, die unter anderem die gleichzeitige Veröffentlichung einzelner Inserate auf mehreren Immobilienportalen ermöglicht. Die Inhalte dieser Inserate werden ausschließlich von Dritten verantwortet. Für die Richtigkeit, Vollständigkeit oder Rechtmäßigkeit der Angaben übernimmt OM keine Haftung. Hinweise auf mögliche Rechtsverstöße können jederzeit gemeldet werden und werden nach Prüfung umgehend bearbeitet.
Ansprechpartner/in: Privat von Joerg Klammer
OM PropTech GmbH
Humboldtstraße 25a, 21509 Glinde

Weitere Angebote in Köln