Jetzt zugreifen: STREIF Sonderaktion - Mehr Platz, mehr Zuhause

01920 Steina
409.850 € Kaufpreis
Wohnfläche
167 m²
Zimmer
6

Kaufpreis

Kaufpreis 409.850 €

Wohnfläche, Grundstück & Bausubstanz

Wohnfläche167 m²
Grundstücksfläche944 m²
Zimmer6
Etagen1
Verfügbar ab Keine Angabe

Beschreibung der Immobilie

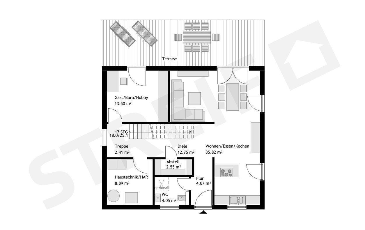
Willkommen in Ihrem zukünftigen Traumhaus. Dieses Einfamilienhaus mit 6 Zimmern und einer großzügigen Wohnfläche von 167 m² bietet Ihnen und Ihrer Familie den perfekten Raum zum Leben und Entspannen. Auf zwei Etagen verteilen sich 4 geräumige Schlafzimmer, ein modernes Badezimmer sowie ein zusätzliches Gäste-WC, die Ihnen viel Komfort und Privatsphäre bieten. Das durchdachte Raumkonzept ermöglicht es Ihnen, Ihre individuellen Wünsche und Vorstellungen in die Planung einzubringen. Vor jedem Hausbau steht eine ausführliche Beratung, bei der wir Ihre Wünsche genau ermitteln und die maßgeschneiderte Planung Ihres neuen Zuhauses vornehmen. Erst wenn der Grundriss zu Ihrer vollsten Zufriedenheit ist, beginnt die Realisierung, die innerhalb weniger Monate abgeschlossen ist. Ihr neues Zuhause wird Ihnen schlüsselfertig oder in der von Ihnen gewählten Ausbaustufe übergeben.

Ausstattungsmerkmale

Bad1
Ihr STREIF Haus wird im KfW-Standard ausgeführt. KfW-Effizienzhaus inkl. Haustechnik aus dem STREIF-Programm in der Ausbaustufe FF+ (Fast-Fertig+) exklusive einer Fundamentplatte.

■ Rohbau (geschlossene Gebäudehülle) mit Fenstern, Haustür, Dacheindeckung
■ Außenfassade inkl. Außenputz, vor Ort komplett fertiggestellt
■ Komplette Blechner-/Spenglerarbeiten
■ lnnen-/Außenwände wärme- und schallgedämmt und mit Gipsfaserplatten geschlossen
■ Geschosstreppe (außer Bungalow)
■ Decken wärme- und schallgedämmt und mit Gipskarton Bauplatten geschlossen
■ Elektroinstallation, einschließlich erforderlichem Zählerschrank und Inbetriebnahme
■ Heizungsanlage inkl. Inbetriebnahme
■ Innenfensterbänke Kunststeinbänke (Gussmarmorbänke) inkl. Einbau
■ Estrich
■ Sanitärräume mit Wand- und Bodenfliesen
■ Sanitärräume mit Sanitärobjekten
■ Inklusive Gutschein für eine Designküche.

Die Innentüren sowie Wand-, Decken- und Bodenbeläge der übrigen Räume sind Eigenleistungen des Bauherren.

STREIF Frischluft-Wärmepumpen-Technologie - inklusive
- Heizen mit frischer Außenluft
- Kein Gasanschluss, kein Öl- oder Pelletlagerraum
- Keine Heizkörper
- Wärmetauscher mit bis zu 85% Wärmerückgewinnung

Die dargestellten Bilder können Sonderausstattungen beinhalten, die nicht im Preis enthalten sind!

zzgl. Ortüblicher Baunebenkosten

Selbstverständlich können wir Ihr Haus auch schlüsselfertig / bezugsfertig errichten.
■ Bodenbeläge, Sockelleisten verlegt
■ Maler- und Tapezierarbeiten
■ Innentüren inkl. Einbau

Karte wird geladen...
01920 Steina

Lage & Infrastruktur

Die Lage bietet Ihnen alles, was Sie für den Alltag benötigen, von Schulen und Kindergärten bis hin zu Einkaufsmöglichkeiten und Freizeitaktivitäten. Zudem profitieren Sie von einer guten Anbindung an öffentliche Verkehrsmittel und die umliegenden Städte, die eine schnelle Erreichbarkeit gewährleisten.

Sonstige Informationen

Sie wünschen Bauplanung und Begleitung aus einer Hand? Dann sind wir Ihr Baupartner! Wir stehen Ihnen von Anfang an zur Seite und führen Sie auf dem Weg in Ihr neues perfektes Zuhause!

Mit STREIF haben Sie einen Baupartner mit Bau-Know-how, der seit 1929 auf fast 100 Jahre und 100.000 realisierte Wohnträume zurückblicken kann.

Jedes Haus von STREIF wird individuell als Energiesparhaus geplant und gebaut. Eine nachhaltige, ökologische und wohngesunde Bauweise, eine zertifizierte Ausführungsqualität und eine kurze Bauzeit, dafür stehen wir.

Im Anschluss der gemeinsamen Bedarfsermittlung erstellen wir Ihnen Ihren individuellen Planungsvorschlag mit einer detaillierten & realistisch ermittelten Aufstellung der Gesamt-Investition.

Änderung gegen Aufpreis möglich**
Smart-Indi-Paket: Veränderung der Fenster, Spiegelung des Grundrisses und Anbau von Bauteilen sind möglich.

Speedlieferung innerhalb von 8 Monaten*
Auf Wunsch wird ein Terminplan mit Baubeginn innerhalb von 8 Monaten vereinbart. Dabei werden kundenseitige und von STREIF einzuhaltende Maximaltermine definiert.

Die Fundamentplatte wird zum Platzwunder-Aktionspreis angeboten.

Die hohe Wertigkeit und Langlebigkeit eines STREIF-Energiespar-Hauses wird durch zahlreiche Auszeichnungen, Qualitäts- und Gütesiegel unabhängiger Institute und Verbände dokumentiert.

Abbildungen können Sonderausstattungen oder Anbauteile zeigen, die nicht im Lieferumfang/Angebot enthalten sind.
Ansprechpartner/in: Herr Frank Strobel
STREIF Haus GmbH
Josef-Streif-Straße 1, 54595 Weinsheim

Weitere Angebote in Crostwitz