Familienfreundlich und generationsübergreifend: Ihr neues Zuhause

01900 Großröhrsdorf
Frei ab: 2027
561.000 € Kaufpreis
Wohnfläche
167 m²
Zimmer
4
Offene Küche

Kaufpreis

Kaufpreis 561.000 €

Wohnfläche, Grundstück & Bausubstanz

Wohnfläche167 m²
Nutzfläche167 m²
Grundstücksfläche804 m²
Zimmer4
Etagen2
Baujahr2027
Verfügbar ab 2027
ZustandProjektiert

Beschreibung der Immobilie

Das klassisch geplante Einfamilienhaus mit Satteldach bietet zwei Hauseingänge, einmal an
der Frontseite und einmal seitlich. Der Haustechnikraum kann bei diesem Entwurf von außen
von beiden Wohnparteien betreten werden. Die Einliegerwohnung könnte für eine
Vermietung, ein Familienmitglied oder auch für eine Selbstständigkeit genutzt werden. Der
Wohn-/Ess-/Kochbereich der "Hauptwohnung" ist sehr praktikabel und lichterfüllt angelegt.
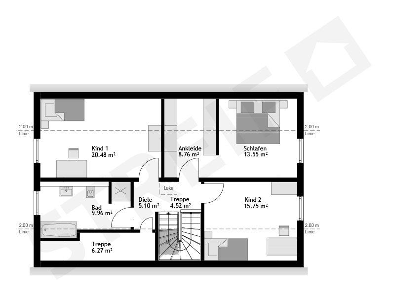
Unterm Dach befinden sich ein schöner Elternschlafbereich, zwei große Kinderzimmer sowie
ein Familienbad und ein Abstellraum. Insgesamt bietet das Haus eine Netto-Raumfläche von
167,66 m².

Objektart: Einfamilienhaus mit Einliegerwohnung, Variante B
Dachform: Satteldach, Kniestock 1 m
Hausmaße: 12,455 m x 8,08 m
Netto-Raumfläche: 167,66 m²

Ausstattungsmerkmale

KücheOffene Küche
Bad1
Bad (Ausstattung)Dusche, Wanne, Fenster
Das Streif City Haus wird im Standard KFW 40 PLUS ausgeführt. KfW Effizienshaus inkl. Haustechnik aus dem STREIF-Programm in der Ausbaustufe FF+ inklusive einer gedämmten Fundamentplatte.

■ Rohbau (geschlossene Gebäudehülle) mit Fenstern, Haustür, Dacheindeckung
■ Außenfassade inkl. Außenputz, vor Ort komplett fertiggestellt
■ Komplette Blechner-/Spenglerarbeiten
■ lnnen-/Außenwände wärme- und schallgedämmt und mit Gipsfaserplatten geschlossen
■ Geschosstreppe (außer Bungalow)
■ Decken wärme- und schallgedämmt und mit Gipskarton Bauplatten geschlossen
■ Elektroinstallation, einschließlich erforderlichem Zählerschrank und Inbetriebnahme
■ Heizungsanlage inkl. Inbetriebnahme
■ Innenfensterbänke Kunststeinbänke (Gussmarmorbänke) inkl. Einbau
■ Estrich
■ Sanitärräume mit Wand- und Bodenfliesen
■ Sanitärräume mit Sanitärobjekten
■ 6,23 kWp Photovoltaikanlage und 7,7 kWh Speicher

Die Innentüren sowie Wand-, Decken- und Bodenbeläge der übrigen Räume sind Eigenleistungen des Bauherren.

STREIF Frischluft-Wärmepumpen-Technologie - inklusive
- Heizen mit frischer Außenluft
- Kein Gasanschluss, kein Öl- oder Pelletlagerraum
- Keine Heizkörper
- Wärmetauscher mit bis zu 85% Wärmerückgewinnung

Die dargestellten Bilder können Sonderausstattungen beinhalten, die nicht im Preis enthalten sind!

zzgl. Ortüblicher Baunebenkosten

Selbstverständlich können wir Ihr Haus auch schlüsselfertig / bezugsfertig errichten.
■ Bodenbeläge, Sockelleisten verlegt
■ Maler- und Tapezierarbeiten
■ Innentüren inkl. Einbau

Energie

Energietyp KfW-40
Energieträger/Befeuerung Luft-Wärme-Pumpe

Karte wird geladen...
01900 Großröhrsdorf

Lage & Infrastruktur

Großröhrsdorf ist eine kleine Stadt im Freistaat Sachsen, etwa 20 Kilometer nordwestlich von Dresden gelegen. Sie gehört zum Landkreis Bautzen und ist Teil der Verwaltungsgemeinschaft Großröhrsdorf. Die Stadt ist von einer ländlichen Umgebung geprägt und bietet eine ruhige, beschauliche Atmosphäre, die ideal für Familien und Naturliebhaber ist.

Die Lage von Großröhrsdorf ermöglicht eine gute Anbindung an die umliegenden Städte und die Landeshauptstadt Dresden. Über die Bundesstraße B6 und die Autobahn A4 ist die Stadt gut erreichbar, was Pendlern zugutekommt. Zudem gibt es Busverbindungen, die den öffentlichen Nahverkehr in die Region unterstützen.

In Großröhrsdorf selbst finden sich verschiedene Einkaufsmöglichkeiten, Schulen und Freizeitangebote, die den Bedürfnissen der Einwohner gerecht werden. Die Stadt hat eine charmante, historische Altstadt mit einigen gut erhaltenen Gebäuden und bietet eine Vielzahl von Veranstaltungen und Aktivitäten für die Gemeinschaft.

Die Umgebung von Großröhrsdorf ist von einer reizvollen Natur geprägt, die zu Erholungs- und Freizeitaktivitäten einlädt. Wander- und Radwege führen durch die malerische Landschaft, die von Wäldern und Feldern geprägt ist.

Insgesamt ist Großröhrsdorf eine attraktive Wohngegend, die eine gute Lebensqualität, eine ruhige Umgebung und eine gute Anbindung an die größeren Städte in der Region bietet.

Sonstige Informationen

Sie brauchen einen kompetenten und verlässlichen Baupartner? Wir stehen Ihnen von Anfang an zur Seite und begleiten Sie auf dem Weg in Ihr Eigenheim.

Mit großem Engagement, Persönlichkeit und der Fachfirma STREIF mit immensen Bau-Know-how, die seit 1929 auf über 90.000 realisierte Wohnträume zurückblicken kann.

Jedes Haus von STREIF wird individuell als Energiesparhaus geplant und gebaut. Eine nachhaltige, ökologische und wohngesunde Bauweise, eine zertifizierte Ausführungsqualität und eine kurze Bauzeit, dafür stehen wir.

Gerne beraten wir Sie nach Vereinbarung im Musterhaus Dresden Schönefeld oder ganz unkompliziert bei Ihnen zu Hause und erstellen Ihnen ein Angebot mit einer realistisch ermittelten Aufstellung der Gesamt-Investition.

Wir freuen uns auf Ihren Anruf / Nachricht!

Ihr STREIF Fachberater
Frank Strobel

E-Mail: frank.strobel@streif.de

Mobil: 0172 - 9374300





Hinweis:

Vorverkauf und Irrtümer vorbehalten. Bilder können Sonderbauteile darstellen, die im Preis nicht enthalten sind und abweichend von textlichen Inhalten sein.

zzgl. Baunebenkosten.

Der Grundstückserwerb stellt keine STREIF Leistung dar.

Hinweis zu den gesetzlichen Pflichtangaben gemäß der EnEV 2016: Bei dem hier angebotenen Haus handelt es sich um ein Neubauprojekt.

Wir weisen darauf hin, dass zu diesem projektierten Haus noch kein Energieausweis vorliegt. Der Energieausweis wird Ihnen spätestens im Rahmen der Erstellung des Objektes ausgehändigt
Ansprechpartner/in: Herr Frank Strobel
STREIF Haus GmbH
Josef-Streif-Straße 1, 54595 Weinsheim

Weitere Angebote in Großröhrsdorf