5 Wohnungen in einem renovierten Mehrfamilienhaus in Top-Lage von Herzogenaurach

Spiegelgartenstr. 42 91074 Herzogenaurach, Bayern
Frei ab: nach Absprache
345.000 € Kaufpreis
Wohnfläche
98,8 m²
Zimmer
4
Etage
1
Einbauküche
Balkon
Terrasse
Keller
Stellplatz

Kaufpreis

Kaufpreis 345.000 €
Maklerprovisionkeine Provision, courtagefrei

Wohnfläche, Grundstück & Bausubstanz

Wohnfläche98,8 m²
Zimmer4
Stockwerk1
Baujahr1960
Verfügbar ab nach Absprache
ZustandGepflegt

Beschreibung der Immobilie

Es handelt sich um eine von noch 5 gut geschnittenen Wohnungen in einem Mehrfamilienhaus mit sechs Wohneinheiten. Sie haben die Wahl. Vereinbaren Sie noch heute einen Besichtigungstermin vor Ort.
Das Gebäude wurde 1960 errichtet und steht auf einem ca. 850 m² großen Grundstück. Die Gesamtwohnfläche des Hauses beträgt ca. 546 m².
Das Haus umfasst Keller, Erdgeschoss, Obergeschoss und Dachgeschoss. Die Wohnungen sind über ein zentrales Treppenhaus erreichbar. Die Ausstattung ist gepflegt und entspricht einem soliden Standard. Einige der Wohnungen werden umfassend modernisiert. Kauf in verschiedenen Renovierungsstufen möglich.

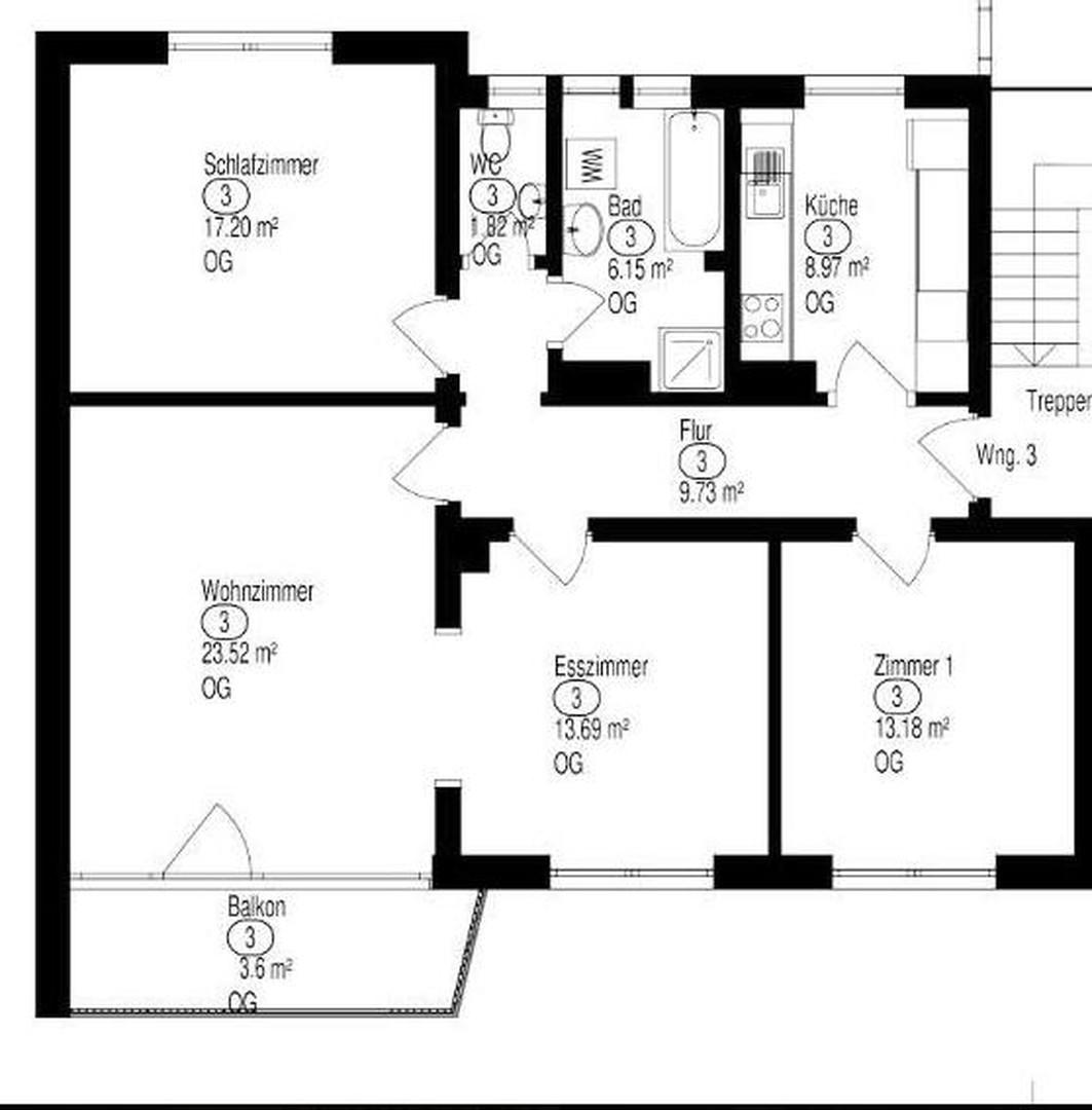
Die Wohnungen im EG verfügen über eine Terrasse mit Gartenanteil, 1. OG mit großem überdachten Balkon sowie ein helles Wohnzimmer mit großen Fensterflächen. Hinzu kommen ein separates Esszimmer, ein Schlafzimmer, ein Kinderzimmer, ein Badezimmer und ein Gäste-WC. Eine Einbauküche ist vorhanden.

Ausstattungsmerkmale

KücheEinbauküche
Bad1
Bad (Ausstattung)Wanne
BodenFliesen, Parkett, Laminat, Kunststoff
Balkone1
Terrassen0
KellerJa
Garage/Stellplätze1
Balkon, Keller, Vollbad, Einbauküche, Gäste-WC, Parkett, Laminat, Fliesen

Bemerkungen:
Die Wohnung ist bestens für Paare oder Familien geeignet!
Die größten direkten Arbeitgeber sind Schäffler, Puma, Adidas, Siemens, Areva, FAU (Friedrich-Alexander-Universität)

- eigener großer Kellerraum
- kein Einzeldenkmal/ Ensembleschutz
- wahlweise ein Stellplatz oder eine Garage verbunden mit zusätzlichen Kosten.
- großzügiger, überdachter Balkon mit Südausrichtung

Energie

C
Energieeffizienzklasse C · 94 kWh/(m²*a)
EnergieausweistypBedarfsausweis
EnergieeffizienzklasseC
Endenergiebedarf94
Heizungsart Zentralheizung
Energieträger/Befeuerung Luft-Wärme-Pumpe

Karte wird geladen...
Spiegelgartenstr. 42
91074 Herzogenaurach – Bayern

Lage & Infrastruktur

Das Objekt liegt am südlichen Stadtrand von Herzogenaurach – ruhig gelegen und dennoch mitten im Leben. Einkaufsmöglichkeiten, Schulen, Kindergärten und Haltestellen des öffentlichen Nahverkehrs sind bequem zu Fuß erreichbar. In wenigen Minuten gelangt man zudem ins Stadtzentrum mit seinen Geschäften, Restaurants und Cafés.
Herzogenaurach ist nicht nur bekannt für seine charmante Altstadt, sondern auch als Standort namhafter Unternehmen wie Adidas, Puma und der Schaeffler-Gruppe. Damit bietet die Stadt eine ideale Kombination aus hoher Lebensqualität und wirtschaftlicher Stärke. Durch die Nähe zur Autobahn A3 sind Erlangen und Nürnberg schnell erreichbar, sodass sich Beruf, Freizeit und Wohnen hier optimal verbinden lassen.
Die Lage vereint damit alles, was modernes Wohnen ausmacht: Ruhe im Alltag, kurze Wege zu allen wichtigen Einrichtungen und eine hervorragende Anbindung an die Region.
Infrastruktur (im Umkreis von 5 km):
Apotheke, Lebensmittel-Discount, Allgemeinmediziner, Kindergarten, Grundschule, Hauptschule, Realschule, Gymnasium, Gesamtschule, Öffentliche Verkehrsmittel

Sonstige Informationen

Heizungsart: Zentralheizung
Energieträger: Luft-/Wasserwärme

Angaben gemäß § 5 TMG
G & T Immobilien GmbH
Geschäftsführer: Sebastian Gleißner und Maximilian Troll

Kolbstr. 10,
90513 Zirndorf

Registergericht: Amtsgericht Fürth

Handelsregister: HRB 14758

Kontakt
Telefon: +49 151 20105030

Makleranfragen nicht erwünscht. Nach § 7 UWG sind unaufgeforderte Kontaktaufnahmen durch Makler ohne ausdrückliche Einwilligung des Empfängers verboten!

ohne-makler (OM) ist weder Anbieter noch Vermittler der Immobilie. OM betreibt eine Plattform für Immobilieneigentümer, die unter anderem die gleichzeitige Veröffentlichung einzelner Inserate auf mehreren Immobilienportalen ermöglicht. Die Inhalte dieser Inserate werden ausschließlich von Dritten verantwortet. Für die Richtigkeit, Vollständigkeit oder Rechtmäßigkeit der Angaben übernimmt OM keine Haftung. Hinweise auf mögliche Rechtsverstöße können jederzeit gemeldet werden und werden nach Prüfung umgehend bearbeitet.
Ansprechpartner/in: Angebot von Sebastian Gleißner
OM PropTech GmbH
Humboldtstraße 25a, 21509 Glinde

Weitere Angebote in Herzogenaurach