GERA: Erstbezug n. Sanierung (gehoben inkl. EBK) - Wohnung, wohnen, WG, Gewerbe, Familie

Auerbachstr. 38 07549 Gera, Thüringen
Frei ab: nach Absprache
495 € Kaltmiete
7,86 € Preis/m² ca.
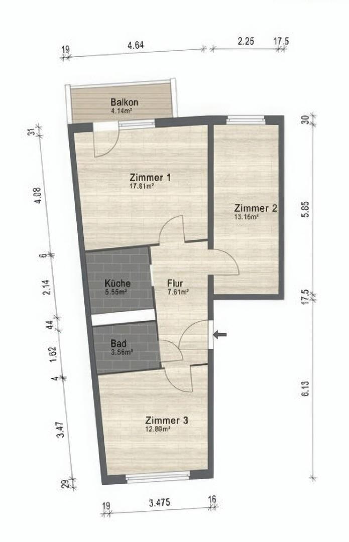
Wohnfläche
63 m²
Zimmer
3
Etage
4
Einbauküche
Balkon
Terrasse
Keller

Mietpreis & Nebenkosten

Kaltmiete (netto)495 €
Nebenkosten 75 €
Heizkosten enthaltenJa
Kaution 1.485 €

Wohnfläche, Grundstück & Bausubstanz

Wohnfläche63 m²
Zimmer3
Stockwerk4
Baujahr1977
Verfügbar ab nach Absprache
ZustandTeil Vollsaniert

Beschreibung der Immobilie

Zur Vermietung steht eine bezaubernde, umfassend sanierte Etagenwohnung, die sofort Ihr neues Zuhause werden kann.

Beim Betreten der Wohnung gelangen Sie über das Treppenhaus in den großzügigen Flur, der reichlich Platz für Ihre Garderobe bietet. Von hier aus haben Sie Zugang zu allen Zimmern. Die abgehängte Decke ist mit modernen LED-Einbaustrahlern versehen, die für eine warme und einladende Atmosphäre sorgen.

Ein zusätzliches Zimmer bietet Ihnen flexible Nutzungsmöglichkeiten – ob als gemütliches Kinderzimmer, einladendes Gästezimmer oder inspirierendes Arbeitszimmer. Zur Wohnung gehört auch ein praktisches Kellerabteil.

Dank der kürzlich durchgeführten Dämmmaßnahmen und der guten Heizungs-Energieeffizienzklasse brauchen Sie sich keine Sorgen über hohe Energiekosten zu machen.

Kontaktieren Sie mich gerne für ein ausführliches Besichtigungsvideo.

Objektzustand: Erstbezug nach Sanierung

Ausstattungsmerkmale

KücheEinbauküche
Bad1
BodenFliesen, Laminat
Balkone1
Terrassen0
KellerJa
Balkon, Keller, Einbauküche, Laminat, Fliesen, Sonstiges (s. Text)

Bemerkungen:
Durchgeführte Sanierungsmaßnahmen:

Neue Wohnungselektroanlage
Neue Wasser-/Abwasserleitungen
Laminatfußböden
Neue Tapeten und Strukturputz
Neu geflieste Küche
Hochwertige Einbauküche inkl. Kühlschrank, Backofen, Cerankochfeld, Geschirrspüler, Leuchten
Durchreiche/Tresen von der Küche zum Wohnzimmer (mit aufgearbeitetem Fachwerk verkleidet)
Platzsparende Türzarge zwischen Flur und Wohnzimmer
Der Badbodenbelag wurde erneuert, der Rest wurde vor ein paar Jahren saniert

Zusätzliche Annehmlichkeiten:
Kellerraum
Trockenraum
Balkon mit stylischen Bodenbelag
Grünfläche

Energie

B
Energieeffizienzklasse B · 68 kWh/(m²*a)
EnergieausweistypVerbrauch
EnergieeffizienzklasseB
Energieverbrauchkennwert68 kWh/(m²*a)
Energieträger/Befeuerung Fernwärme

Karte wird geladen...
Auerbachstr. 38
07549 Gera – Thüringen

Lage & Infrastruktur

Öffentliche Parkplätze stehen Ihnen direkt vor der Haustür zur Verfügung, sodass Sie sich keine Sorgen um einen Stellplatz machen müssen. Ein nahegelegener Garagenkomplex bietet zusätzliche Mietmöglichkeiten für Ihr Fahrzeug.

Geschäfte des täglichen Bedarfs, Sportplätze und der öffentliche Nahverkehr sind bequem in wenigen Minuten zu Fuß erreichbar, sodass Sie alles, was Sie brauchen, direkt vor Ihrer Haustür finden.
Infrastruktur (im Umkreis von 5 km):
Apotheke, Lebensmittel-Discount, Allgemeinmediziner, Kindergarten, Grundschule, Hauptschule, Realschule, Gymnasium, Gesamtschule, Öffentliche Verkehrsmittel

Sonstige Informationen

Heizungsart: Sonstiges (s. Text)
Energieträger: Fernwärme

für Familien
für Singles
als WG
als Gewerbewohnung
für Haustierbesitzer
usw.

Makleranfragen nicht erwünscht. Nach § 7 UWG sind unaufgeforderte Kontaktaufnahmen durch Makler ohne ausdrückliche Einwilligung des Empfängers verboten!

ohne-makler (OM) ist weder Anbieter noch Vermittler der Immobilie. OM betreibt eine Plattform für Immobilieneigentümer, die unter anderem die gleichzeitige Veröffentlichung einzelner Inserate auf mehreren Immobilienportalen ermöglicht. Die Inhalte dieser Inserate werden ausschließlich von Dritten verantwortet. Für die Richtigkeit, Vollständigkeit oder Rechtmäßigkeit der Angaben übernimmt OM keine Haftung. Hinweise auf mögliche Rechtsverstöße können jederzeit gemeldet werden und werden nach Prüfung umgehend bearbeitet.
Ansprechpartner/in: Privat von PB Immobilien
OM PropTech GmbH
Humboldtstraße 25a, 21509 Glinde

Weitere Angebote in Gera