von Privat! DG-Maisonette mit Dachterrasse + Loggia in bester Lage

61440 Oberursel, Hessen
Frei ab: 01.09.2026
660.000 € Kaufpreis
Wohnfläche
111,4 m²
Zimmer
3,5
Etage
2
Balkon (2)
Terrasse
Keller
Stellplatz

Kaufpreis

Kaufpreis 660.000 €
Hausgeld414 €
Maklerprovisionkeine Provision, courtagefrei
Stellplatz Carport Kaufpreis30.000 €
Stellplatz Freiplatz Kaufpreis30.000 €

Wohnfläche, Grundstück & Bausubstanz

Wohnfläche111,4 m²
Zimmer3,5
Etagen2
Stockwerk2
Baujahr2005
Verfügbar ab 01.09.2026
ZustandGepflegt

Beschreibung der Immobilie

**english speakers are welcome - information material in english is available**
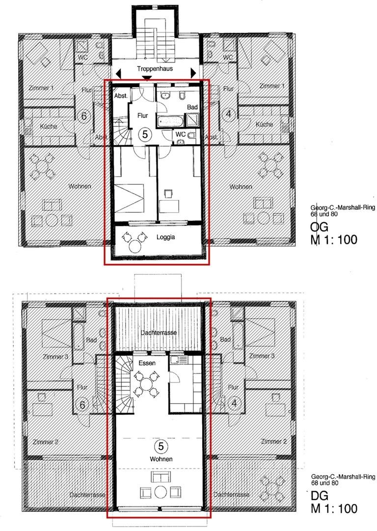
Moderne, lichtdurchflutete und großzügig geschnittene 3-4 Zi. Wohnung auf zwei Ebenen. Sie befindet sich im 1. OG und Dachgeschoss eines kleinen Mehrfamilienhauses mit nur 6 Wohnungen. In diesem Architektenhaus sind die Innenwände größtenteils nicht tragend. Dies ermöglicht es Ihnen den Grundriss nach Ihren Wünschen zu gestalten und falls gewünscht sogar ein 4. Zimmer zu integrieren * (Am Ende der Bildergalerie finden Sie ein paar Grundrissvorschläge)
Die Wohnfläche ist mit 111,40 m² ausgesprochen großzügig. Die Wohnung verfügt über einen eigenen Carport und ein PKW-Stellplatz. Zur hellen Wohnung gehört im 1.OG eine große Loggia, der Eingangsbereich, 2 separate Zimmer als Schlaf-, Arbeits- oder Kinderzimmer, das Bad und ein separates Gäste-WC, sowie eine geschlossene Abstellkammer. Im Dachgeschoß ohne Dachschrägen befinden sich das großzügige Wohnzimmer und ein separater Essplatz, die Küche und die große Dachterrasse mit Blick auf den nahe gelegenen Wald. Die Echtholz-Terrassendielen auf der Dachterrasse und der Loggia wurden in 2021 komplett erneuert (inkl. Unterkonstruktion). Der vor dem Haus liegende Grünstreifen bietet Ruhe und eine angenehme Distanz zur nächsten Häuserreihe, was insbesondere auf der Dachterrasse eine einmalige Privatsphäre ermöglicht.
Öffentliche Parkplätze für Besucher sind ausreichend verfügbar. Zur Wohnung gehören außerdem ein eigener Kellerraum (14,8 m²) sowie ein gemeinschaftlicher Wasch- Trockenraum und separat zugänglicher Fahrradraum mit einer Rampe, die direkt zur Straße führt. Der günstige Wohnungsschnitt eignet sich für Paare aber auch für Familien bis zu 4 Personen.

* Rechtlicher Hinweis: Ein Umbau nach Ihren Wünschen durch die Verkäuferin erfolgt nicht. Die Kosten der gewünschten Umbaumaßnahmen sind vom Käufer zu tragen und sind explizit nicht Teil des Angebots Es kann keine Gewähr für die Durchführbarkeit der vorgeschlagenen Umbauoptionen übernommen werden.

Dateien


Ausstattungsmerkmale

Bad2
Bad (Ausstattung)Dusche, Wanne
BodenFliesen, Parkett
Balkone2
Terrassen1
KellerJa
Carport1
Balkon, Terrasse, Keller, Dachterrasse, Vollbad, Duschbad, Gäste-WC, Parkett, Fliesen

Bemerkungen:
In allen Wohn- und Schlafräumen finden Sie helles Echtholz-Parkett. Der Eingangsbereich/Flur sowie die Treppe zum Obergeschoß bietet mit hochwertigen hellen Fliesen einen angenehmen Übergang. Das große Bad, das Gäste WC sowie die Küche sind weiß-marmoriert gefliest. Das Bad besitzt Badewanne sowie getrennte Duschkabine und zwei Waschbecken. Im Wohnzimmer sind elektrische Außen-Jalousien angebracht, die einen individuell regulierbaren Lichteinfall ermöglichen. Das Haus hat einen niedrigen Energieverbrauch. Nähere Angaben finden Sie im beigefügten Energieausweis.

Energie

EnergieausweistypVerbrauch
Energieverbrauchkennwert74 kWh/(m²*a)
Heizungsart Zentralheizung
Energieträger/Befeuerung Gas

Karte wird geladen...
61440 Oberursel – Hessen

Lage & Infrastruktur

Oberursel im Hochtaunuskreis, mit der Kreisstadt Bad Homburg, gehört zu den begehrtesten Wohnlagen im Rhein-Main-Gebiet. Durch seine sehr gute Anbindung an Frankfurt am Main und den Flughafen einerseits und den nahe gelegenen Taunus andererseits, ist eine optimale Balance von Arbeit und Freizeit gewährleistet.
Ihr neues Zuhause liegt im gesuchten Wohngebiet "Camp King", eines der letzten in sich geschlossenen Wohnbaugebiete der Stadt Oberursel. Die Lage bietet
+ hohen Freizeitwert
+ sehr gute Verkehrsanbindung (U-Bahn Haltestelle und Autobahnanschluß in unmittelbarer Nähe, Flughafennähe ohne Fluglärm)
+ Einkaufszentrum (großer Supermarkt, Post, Bank, Apotheke, Optiker, Frisör, verschiedene Ärzte und weitere Geschäfte)
+ mehrere Spielplätze
+ Kindergarten und Grundschule
+ freie Waldorfschule und Waldorfkindergarten
+ die Internationale Schule in unmittelbarer Nähe
+ großer zentraler Park
Ein ruhiges Wohngebiet mit angenehmen Nachbarn ohne Durchgangsstraße und mit hohem Freizeitwert. Der Taunus und das Waldschwimmbad sind bequem erreichbar. Der angrenzende Wald lädt zum Joggen und Spazierengehen ein.
Infrastruktur (im Umkreis von 5 km):
Apotheke, Lebensmittel-Discount, Allgemeinmediziner, Kindergarten, Grundschule, Realschule, Gymnasium, Gesamtschule, Öffentliche Verkehrsmittel

Sonstige Informationen

Heizungsart: Zentralheizung
Energieträger: Gas


Makleranfragen nicht erwünscht. Nach § 7 UWG sind unaufgeforderte Kontaktaufnahmen durch Makler ohne ausdrückliche Einwilligung des Empfängers verboten!

ohne-makler (OM) ist weder Anbieter noch Vermittler der Immobilie. OM betreibt eine Plattform für Immobilieneigentümer, die unter anderem die gleichzeitige Veröffentlichung einzelner Inserate auf mehreren Immobilienportalen ermöglicht. Die Inhalte dieser Inserate werden ausschließlich von Dritten verantwortet. Für die Richtigkeit, Vollständigkeit oder Rechtmäßigkeit der Angaben übernimmt OM keine Haftung. Hinweise auf mögliche Rechtsverstöße können jederzeit gemeldet werden und werden nach Prüfung umgehend bearbeitet.
Ansprechpartner/in: Privat von Sandra S.
0177 5016324
OM PropTech GmbH
Humboldtstraße 25a, 21509 Glinde
0177 5016324

Weitere Angebote in Oberursel