PROVISIONSFREI: Charmantes EFH in zentraler, ruhiger Anliegerstraße

21337 Lüneburg, Niedersachsen
Frei ab: sofort
749.000 € Kaufpreis
Wohnfläche
195 m²
Zimmer
7
Einbauküche
Balkon
Terrasse
Garten
Keller
Stellplatz

Kaufpreis

Kaufpreis 749.000 €
Maklerprovisionkeine Provision, courtagefrei

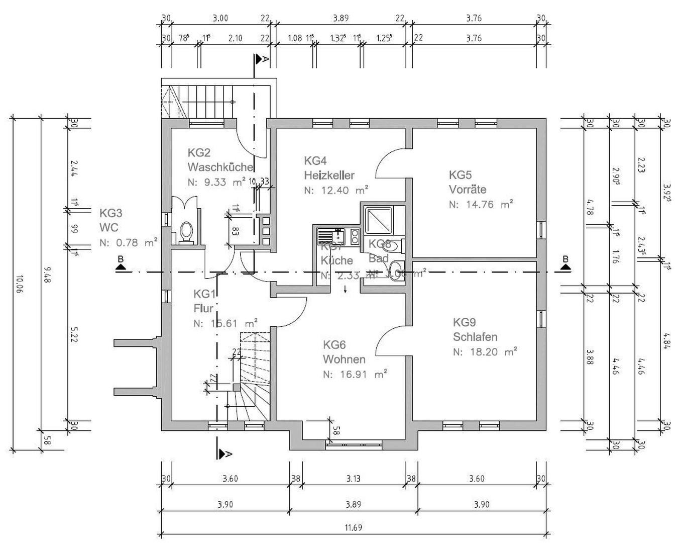
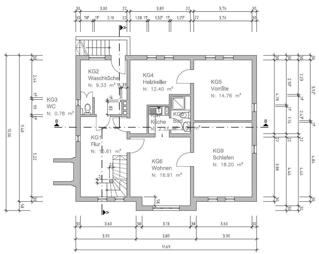
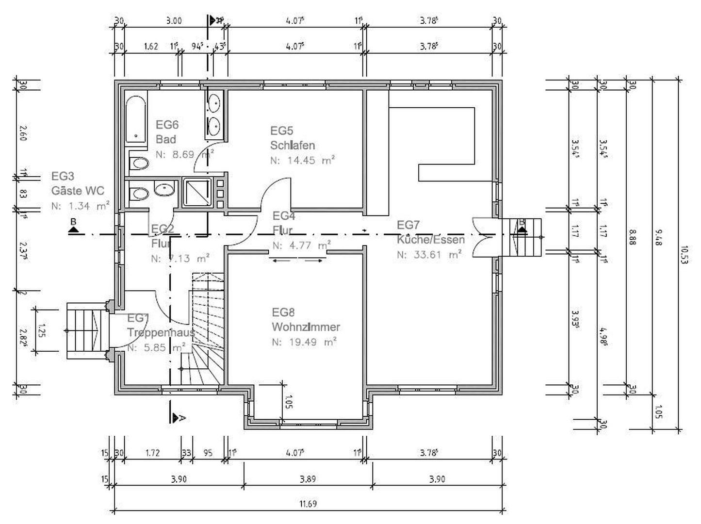
Wohnfläche, Grundstück & Bausubstanz

Wohnfläche195 m²
Grundstücksfläche603 m²
Zimmer7
Etagen3
Baujahr1928
Verfügbar ab sofort
ZustandModernisiert

Beschreibung der Immobilie

Einfamilienhaus in ruhiger, zentraler Lage auf Eigentumsgrundstück 603 m² zu verkaufen.

Das im Jahr 1928 errichtete Wohnhaus wurde etwa ab 1990 in mehreren Abschnitten umgebaut und modernisiert, hierbei wurden sämtliche Installationen erneuert und neue Fenster eingebaut (Merantiholz, Ug=1,3 W/m²k).

Die Außenwände bestehen aus 2-schaligem Ziegel-Sichtmauerwerk, in die 7 cm dicke Schalenfuge wurde eine Kerndämmung eingeblasen.

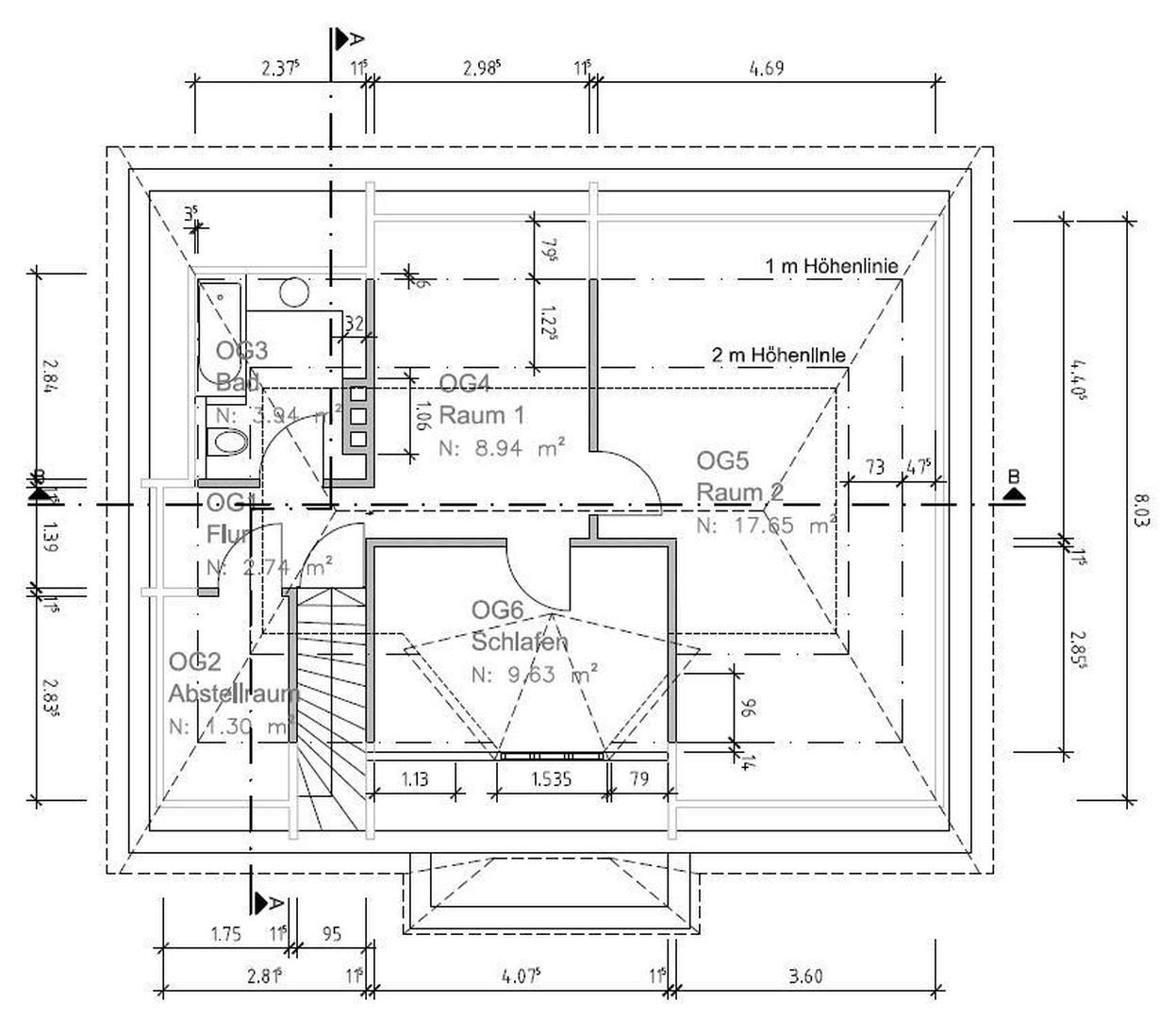
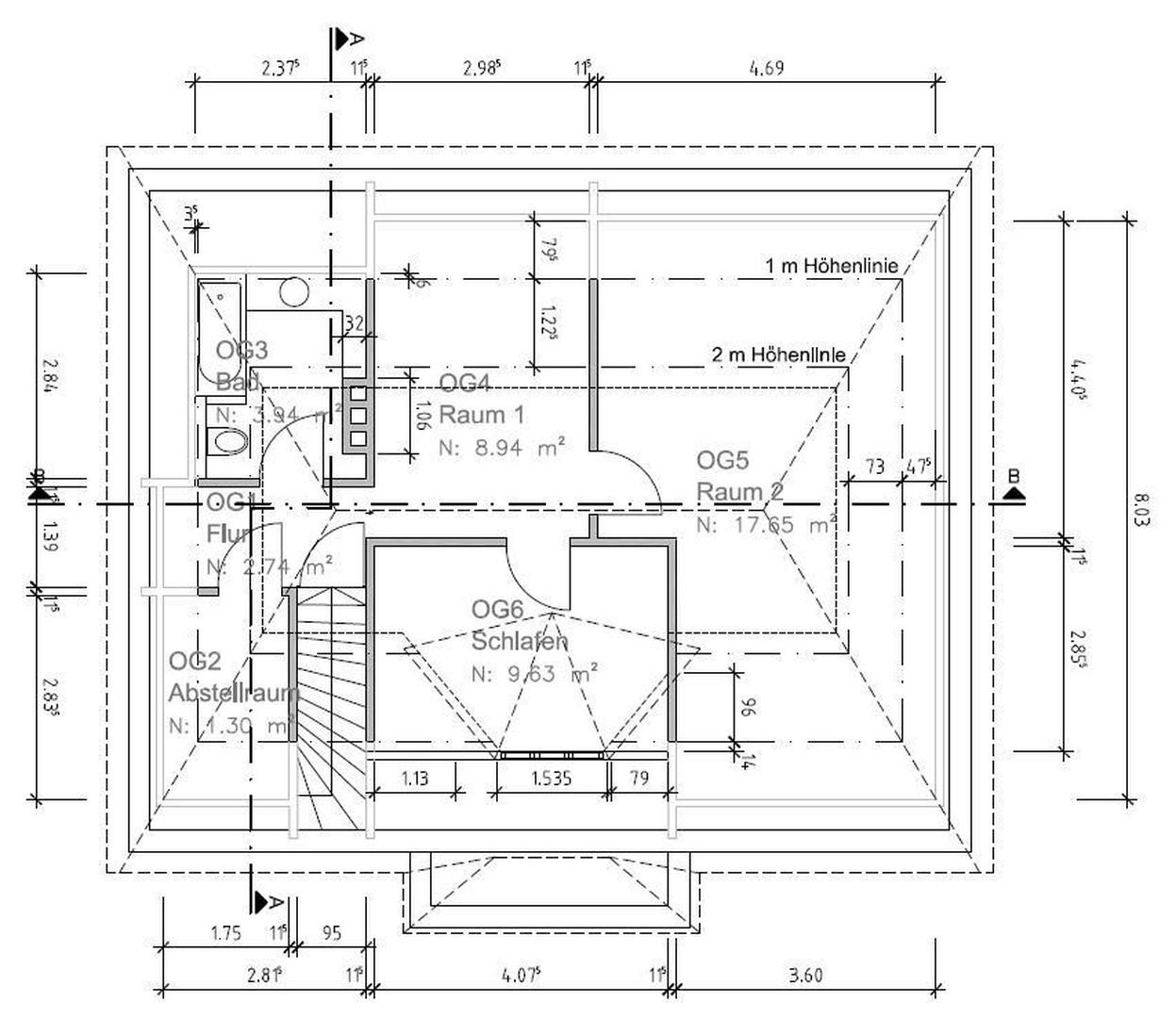
Das mit Ziegel-Hohlpfannen eingedeckte Dach wurde mit 10+4 cm Mineralwolle gedämmt, der gesamte Dachraum hierbei neu ausgebaut. Im DG befindet sich außer den Wohnräumen ein Badezimmer, außerdem sind Anschlüsse für eine Küche vorhanden. Vor wenigen Jahren wurde im DG ein Vinylfußboden verlegt. Der südseitige Wohnraum ist über eine Kletterkonstruktion (für Kinder) mit dem kleinen Spitzboden verbunden.

Im EG (Hochparterre) ist der Küchen-/ Eßbereich über eine Außentreppe mit der Terrasse verbunden. Das Badezimmer ist direkt vom Schlafzimmer aus zugänglich, ein Gäste-WC vom Flur aus. In der Küche ist ein hochwertiger Granitfußboden verlegt, der Eßbereich ist mit hochwertigen Eichenmassivdielen (amerikanische Eiche) ausgestattet. Der Fliesenspiegel der EBK ist aus gleichem Material wir der Fußboden. Im Durchgangsflur und den Wohnräumen liegt ein abgenutzter Sisal-Teppichboden. Die Wände sind z.T. verputzt, gespachtelt und gestrichen, z.T. mit strukturiertem Glasfasergewebe tapeziert. Die Decken sind glatt verputzt und gestrichen.

Der Keller ist sowohl über die Innen- als auch eine auf der Gebäuderückseite liegende Außentreppe erreichbar. 2 bereits ursprünglich im Keller liegende Aufenthaltsräume wurden um eine Pantryküche und ein Duschbad ergänzt. In der Waschküche ist ein weiteres WC vorhanden. Im Vorratskeller, dem Heizraum, der Waschküche und dem Kellerflur gibt es Feuchtigkeitserscheinungen infolge unzureichender Abdichtung der Kelleraußenwände.

Direkt an der Straße liegend befindet sich eine in den Hang gebaute einfache Garage (nur für Kleinwagen), deren Stahlbetondach als Terrasse nutzbar ist.

Der Garten mit großen Obstbäumen sowie an der Südseite des Hauses wachsenden Weinreben braucht aufgrund des längeren Leerstandes des Hauses etwas Zuwendung.

Dateien


Ausstattungsmerkmale

KücheEinbauküche
Bad3
Bad (Ausstattung)Wanne
BodenFliesen, Teppich, Parkett, Laminat, Kunststoff
Balkone0
Terrassen1
GartenJa
KellerJa
Garage/Stellplätze1
Terrasse, Garten, Keller, Vollbad, Einbauküche, Gäste-WC, Parkett, Laminat, Teppichboden, Fliesen

Bemerkungen:
HINWEIS: Das schlechte Ergebnis des Energieausweises ist darauf zurückzuführen, daß der Aufsteller ein stark vereinfachtes Verfahren angewendet und den gesamten Keller in die Berechnung einbezogen hat. Bei einer Vergleichsberechnung und Betrachtung lediglich des Erd- und des Dachgeschosses ergibt sich ein Primärenergiebedarf von 135,50 kwh/(m²a) und ein Endenergiebedarf von 122,10 kwh/(m²a).

Energie

G
Energieeffizienzklasse G · 204 kWh/(m²*a)
EnergieausweistypBedarfsausweis
EnergieeffizienzklasseG
Endenergiebedarf204
Heizungsart Zentralheizung
Energieträger/Befeuerung Gas

Karte wird geladen...
21337 Lüneburg – Niedersachsen

Lage & Infrastruktur

Das Haus liegt zentral in einer sehr ruhigen und grünen Anliegerstraße. Der Bahnhof ist fußläufig in 10 Minuten zu erreichen, die Entfernung zur Ostumgehung beträgt ca. 1.300 m.
Sämtliche Einkäufe und Arztbesuche können zu Fuß erfolgen.
Infrastruktur (im Umkreis von 5 km):
Apotheke, Lebensmittel-Discount, Allgemeinmediziner, Kindergarten, Grundschule, Hauptschule, Realschule, Gymnasium, Gesamtschule, Öffentliche Verkehrsmittel

Sonstige Informationen

Heizungsart: Zentralheizung
Energieträger: Gas

Die angebotene Immobilie ist, abgesehen von etwaigen Maler- und Bodenbelagsarbeiten, sofort bezugsfähig. Es wird darauf hingewiesen, daß dennoch diverse "Kleinigkeiten" zu erledigen sind, die stets liegen geblieben sind, die Wohn-Nutzung aber nicht beeinträchtigt haben (einzelne Fußleisten unbefestigt, verschiedene Schalterabdeckungen und Heizleitungsrosetten sind nicht montiert...).

Da die Immobilie kurzfristig veräußert werden soll, werden nur Anfragen von Interessenten erbeten, deren Finanzierung bereits gesichert ist.

Makleranfragen nicht erwünscht. Nach § 7 UWG sind unaufgeforderte Kontaktaufnahmen durch Makler ohne ausdrückliche Einwilligung des Empfängers verboten!

ohne-makler (OM) ist weder Anbieter noch Vermittler der Immobilie. OM betreibt eine Plattform für Immobilieneigentümer, die unter anderem die gleichzeitige Veröffentlichung einzelner Inserate auf mehreren Immobilienportalen ermöglicht. Die Inhalte dieser Inserate werden ausschließlich von Dritten verantwortet. Für die Richtigkeit, Vollständigkeit oder Rechtmäßigkeit der Angaben übernimmt OM keine Haftung. Hinweise auf mögliche Rechtsverstöße können jederzeit gemeldet werden und werden nach Prüfung umgehend bearbeitet.
Ansprechpartner/in: Privat vom Eigentümer
OM PropTech GmbH
Humboldtstraße 25a, 21509 Glinde

Weitere Angebote in Lüneburg