Naturnahes Paradies mit zwei Häusern & vielseitigen Nutzungsmöglichkeiten

14612 Falkensee
499.000 € Kaufpreis
Wohnfläche
175 m²
Zimmer
4
Einbauküche
Garten

Kaufpreis

Kaufpreis 499.000 €
Maklerprovision3,57% inkl. 19.00% MwSt.

Wohnfläche, Grundstück & Bausubstanz

Wohnfläche175 m²
Gesamtfläche1.032 m²
Grundstücksfläche1.032 m²
Zimmer4
Baujahr2000
Verfügbar ab Keine Angabe

Beschreibung der Immobilie

Dieses liebevoll angelegte Grundstück begeistert mit mehreren Terrassen, idyllischen Teichen und ruhigen Rückzugsorten – ein echtes Refugium für Naturliebhaber. Hier erwarten Sie zwei voneinander unabhängige Häuser, ideal für Mehrgenerationen-Wohnen, zwei Familien oder zur Kombination von Eigennutzung und Vermietung.

Das Haupthaus aus dem Jahr 1986 bietet ca. 110 m² Wohnfläche und eröffnet mit etwas Modernisierungsaufwand großes Potenzial zur individuellen Gestaltung. Alternativ bietet sich die Möglichkeit eines Neubaus – währenddessen bleibt das zweite Haus weiterhin bewohnbar.

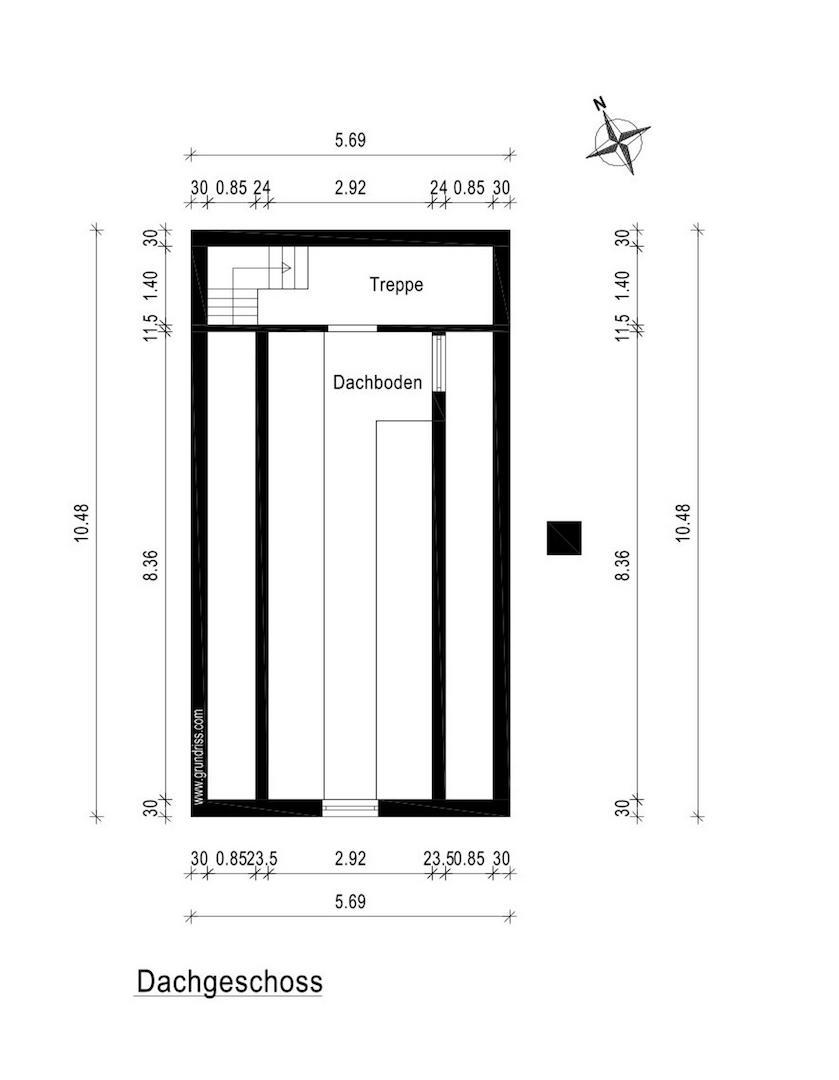
Das charmante zweite Haus in Holzbauweise (Baujahr 2001) verfügt über ca. 65 m² Wohnfläche mit zwei Schlafzimmern, Küche, Bad sowie einem großzügigen Wintergarten. Perfekt als separate Wohneinheit oder zur Vermietung.

Abgerundet wird das attraktive Angebot durch einen Pavillon, ein Gewächshaus, eine Werkstatt sowie ein Carport für drei Fahrzeuge (Baujahr 2022).

Ein vielseitiges Anwesen mit großem Potenzial in naturnaher Umgebung – ideal für individuelle Wohnkonzepte!

Ausstattungsmerkmale

KücheEinbauküche
BodenLaminat
GartenJa

Energie

F
Energieeffizienzklasse F · 171.6 kWh/(m²*a)
EnergieausweistypVerbrauch
Ausstellungsdatum21. 08. 2025
Gültig bis20/08/2035
Baujahr (laut Energieausweis)2000
EnergieeffizienzklasseF
Energieverbrauchkennwert171.6 kWh/(m²*a)
Wesentlicher EnergieträgerGas

Karte wird geladen...
14612 Falkensee

Lage & Infrastruktur

Falkensee bietet eine Kombination aus naturnahem Wohnen, guter Anbindung an Berlin und einer hohen Lebensqualität, was die Stadt besonders für Familien, Berufspendler und Naturliebhaber attraktiv macht. Es gibt viele Schulen, Kindergärten und Spielplätze, die die Stadt besonders für Familien attraktiv machen. Zudem ist das Freizeitangebot vielfältig und auf die Bedürfnisse von Kindern und Jugendlichen abgestimmt.
Falkensee hat eine gut ausgebaute Infrastruktur mit Einkaufsmöglichkeiten, Ärzten, Restaurants und kulturellen Angeboten. Auch der öffentliche Nahverkehr ist gut organisiert, was das tägliche Leben erleichtert.

• Entfernung Bushaltestelle: 450 m
• Entfernung Bahnhof Falkensee: 1,7 km
Ansprechpartner/in: Brigitte Knecht
Golden Home Ltd & Co KG
Unter den Linden 10, 10117 Berlin

Weitere Angebote in Falkensee