Refugium in Ortsrandlage

24790 Ostenfeld, Schleswig-Holstein
Frei ab: nach Absprache
545.000 € Kaufpreis
Wohnfläche
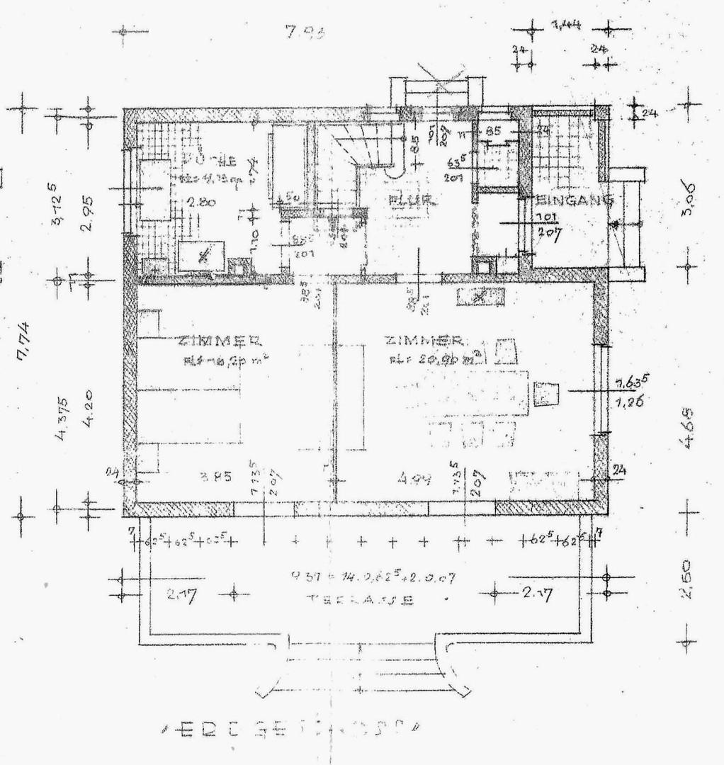
88 m²
Zimmer
3,5
Keller
Stellplatz

Kaufpreis

Kaufpreis 545.000 €
Maklerprovisionkeine Provision, courtagefrei

Wohnfläche, Grundstück & Bausubstanz

Wohnfläche88 m²
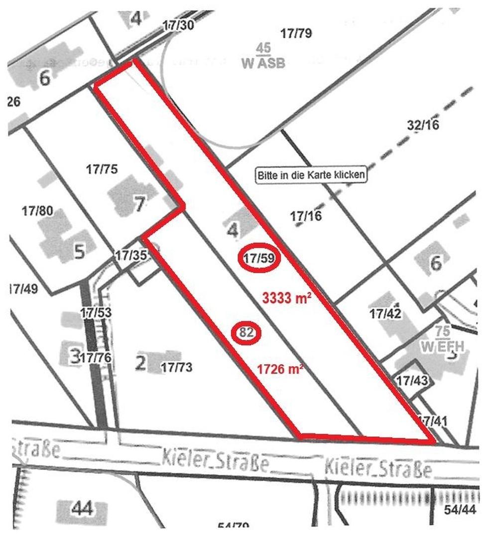
Grundstücksfläche5.059 m²
Zimmer3,5
Etagen2
Baujahr1953
Verfügbar ab nach Absprache
ZustandTeil Vollrenovierungsbed

Beschreibung der Immobilie

Dieses Haus wurde 1953 erbaut und durch den Eigentümr ständig modernisiert und den jeweiligen Anforderungen angepasst. Es hat einen Teilkeller und im Dachgeschoss wurden nachträglich große Gauben erstellt, sowie ein kleines Zimmer und ein Bad ausgebaut.
Für heutige Wohnbedürfnisse wären energetische Verbesserungen sowie Modernisierung von Küche und Bad erforderlich.

Dateien


Ausstattungsmerkmale

Bad1
BodenFliesen, Teppich, Parkett
KellerJa
Garage/Stellplätze1
Keller, Gäste-WC, Parkett, Teppichboden, Fliesen

Bemerkungen:
Die Fenster wurden größtenteils eneuert. Neben dem Niedertemperaturölkessel von 2009 besteht die Möglichkeit mit einem vorhandenen Feststoffkessel zu heizen.

Energie

H
Energieeffizienzklasse H · 320 kWh/(m²*a)
EnergieausweistypBedarfsausweis
EnergieeffizienzklasseH
Endenergiebedarf320
Heizungsart Zentralheizung
Energieträger/Befeuerung Öl

Karte wird geladen...
24790 Ostenfeld – Schleswig-Holstein

Lage & Infrastruktur

Das Grundstück in ruhiger Ortsrandlage setzt sich aus 2 Flurstücken zusammen und wäre gegebenenfalls für weiteres Bauland aufteilbar.
An der Landstraße 47 zwischen Rendsburg und Kiel verkehrsgünstig gelegen, präsentiert sich Ostenfeld als ein altes Bauerndorf mit drei räumlich voneinander getrennten Wohngebieten: dem Neubaugebiet Mühlenkoppel, dem Grellkamp, der sich in den 50er Jahren infolge des Zweiten Weltkrieges durch den Zuzug von Flüchtlingen entwickelte und dem alten noch heute durch die Landwirtschaft geprägten Ortskern, dessen erste urkundliche Erwähnung auf die zweite Hälfte des 13. Jahrhunderts zurückzuführen ist. Drei aus Lehm gestampfte Häuser, die im Sommer 1945 erbaut wurden, sind durch den Tausch von Lebensmitteln gegen Baumaterialien noch heute bei älteren Mitbürgern als Mehl- und Zuckerhäuser bekannt. Sie befinden sich in der Nähe der Kirche St. Jacobi. Den Mittelpunkt der Gemeinde bildet die 1915 erbaute Alte Schule. Ursprünglich als Schule in Betrieb und bis in die späten 60er Jahre auch als solche genutzt wurde sie 2003 zum Gemeindezentrum mit Saal und Versammlungsraum ausgebaut. Die angebotenen Räumlichkeiten werden von den Vereinen und Verbänden als auch für private Veranstaltungen rege genutzt. Darüber hinaus befindet sich in der Alten Schule eine Kindertagesstätte. Einkäufe für den täglichen Bedarf sowie die ärztliche Versorgung wird durch die Nachbargemeinden Schacht-Audorf und Osterrönfeld gewährleistet, in 5 Minuten mit dem Auto erreichbar. Ein ausgeprägtes Vereinsleben fördert das kulturelle Miteinander in der Gemeinde.
Infrastruktur (im Umkreis von 5 km):
Apotheke, Lebensmittel-Discount, Allgemeinmediziner, Kindergarten, Grundschule, Realschule, Öffentliche Verkehrsmittel

Sonstige Informationen

Heizungsart: Zentralheizung
Energieträger: Öl

Das Haus steht leer und wäre kurzfristig verfügbar.

Makleranfragen nicht erwünscht. Nach § 7 UWG sind unaufgeforderte Kontaktaufnahmen durch Makler ohne ausdrückliche Einwilligung des Empfängers verboten!

ohne-makler (OM) ist weder Anbieter noch Vermittler der Immobilie. OM betreibt eine Plattform für Immobilieneigentümer, die unter anderem die gleichzeitige Veröffentlichung einzelner Inserate auf mehreren Immobilienportalen ermöglicht. Die Inhalte dieser Inserate werden ausschließlich von Dritten verantwortet. Für die Richtigkeit, Vollständigkeit oder Rechtmäßigkeit der Angaben übernimmt OM keine Haftung. Hinweise auf mögliche Rechtsverstöße können jederzeit gemeldet werden und werden nach Prüfung umgehend bearbeitet.
Ansprechpartner/in: Privat vom Eigentümer
OM PropTech GmbH
Humboldtstraße 25a, 21509 Glinde

Weitere Angebote in Haßmoor