Erstbezug nach Sanierung - Attraktive 4,5-Zimmer-Wohnung (94 m²) in Ludwigsburg

Moldaustr.8 71638 Ludwigsburg, Baden-Württemberg
Frei ab: nach Absprache
1.450 € Kaltmiete
15,43 € Preis/m² ca.
Wohnfläche
94 m²
Zimmer
4,5
Etage
1
Einbauküche
Balkon
Terrasse

Mietpreis & Nebenkosten

Kaltmiete (netto)1.450 €
Nebenkosten 250 €
Heizkosten enthaltenJa
Kaution 4.500 €

Wohnfläche, Grundstück & Bausubstanz

Wohnfläche94 m²
Zimmer4,5
Etagen9
Stockwerk1
Baujahr1968
Verfügbar ab nach Absprache
ZustandTeil Vollsaniert

Beschreibung der Immobilie

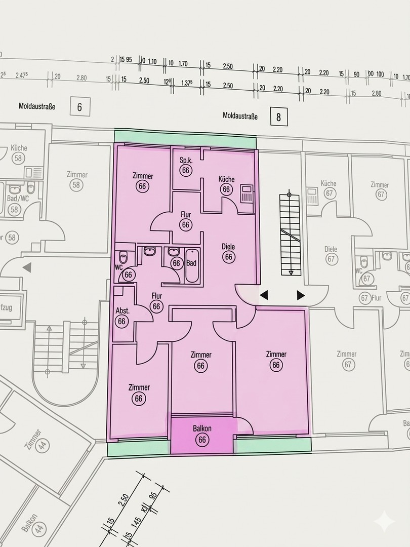
Die Wohnung befindet sich im 1. Obergeschoss eines gepflegten Mehrfamilienhauses und wurde kürzlich umfassend saniert. Durch den Eingang mit lediglich vier Wohneinheiten bietet das Objekt ein ruhiges und angenehmes Wohnumfeld sowie einen komfortablen, leicht zugänglichen Zugang zur Wohnung. Der gut durchdachte Grundriss sorgt für ein helles und offenes Wohngefühl und trägt gleichzeitig zu einem geringen Heizenergieverbrauch bei. Ein besonderes Highlight sind die zwei Balkone, die zusätzlichen Freiraum bieten und den Wohnkomfort deutlich erhöhen. Die Wohnung ist ab sofort bezugsfrei, ein Mietvertragsbeginn ist flexibel zum 01.05. oder 01.06. möglich.

Objektzustand: Erstbezug nach Sanierung

Ausstattungsmerkmale

KücheEinbauküche
Bad1
Bad (Ausstattung)Wanne
BodenFliesen, Kunststoff
Balkone1
Terrassen0
Balkon, Vollbad, Einbauküche, Fliesen

Bemerkungen:
Die Wohnung verfügt über hochwertige Materialien und eine moderne Ausstattung. In den Wohnräumen wurde strapazierfähiger Vinylboden verlegt, ergänzt durch elegante Granitflächen, die der Wohnung ein zeitloses Erscheinungsbild verleihen. Das Badezimmer ist modern gestaltet und mit einer Badewanne ausgestattet. Eine Einbauküche ist bereits vorhanden und ermöglicht einen sofortigen Einzug ohne zusätzlichen Aufwand. Die Heizkörper werden zusätzlich erneuert, was den Wohnkomfort weiter steigert. Insgesamt überzeugt die Wohnung durch ihre moderne Sanierung, den funktionalen Schnitt und die hochwertige Ausstattung.

Energie

D
Energieeffizienzklasse D · 125 kWh/(m²*a)
EnergieausweistypBedarfsausweis
EnergieeffizienzklasseD
Endenergiebedarf125
Heizungsart Zentralheizung
Energieträger/Befeuerung Gas

Karte wird geladen...
Moldaustr.8
71638 Ludwigsburg – Baden-Württemberg

Lage & Infrastruktur

Der Stadtteil Grünbühl überzeugt durch eine attraktive Kombination aus naturnahem Wohnen und urbaner Nähe. Bewohner genießen eine grüne Umgebung direkt vor der Haustür, während das Ludwigsburger Stadtzentrum nur rund zwei Kilometer entfernt liegt und mit dem Fahrrad oder dem öffentlichen Nahverkehr in etwa zehn Minuten bequem erreichbar ist.
Zahlreiche Einkaufsmöglichkeiten, Schulen, medizinische Versorgung sowie Geschäfte des täglichen Bedarfs befinden sich in unmittelbarer Umgebung. Ludwigsburg bietet darüber hinaus eine hervorragende Infrastruktur mit vielfältigen Restaurants, Ärzten und kulturellen Angeboten. Die sehr gute Anbindung an Bus- und Bahnlinien ermöglicht schnelle Wege in die Innenstadt sowie in umliegende Stadtteile. Ergänzt wird das Angebot durch nahegelegene Parks und vielfältige Freizeitmöglichkeiten, die zu hoher Lebensqualität beitragen.
Infrastruktur (im Umkreis von 5 km):
Apotheke, Lebensmittel-Discount, Allgemeinmediziner, Kindergarten, Grundschule, Öffentliche Verkehrsmittel

Sonstige Informationen

Heizungsart: Zentralheizung
Energieträger: Gas


Makleranfragen nicht erwünscht. Nach § 7 UWG sind unaufgeforderte Kontaktaufnahmen durch Makler ohne ausdrückliche Einwilligung des Empfängers verboten!

ohne-makler (OM) ist weder Anbieter noch Vermittler der Immobilie. OM betreibt eine Plattform für Immobilieneigentümer, die unter anderem die gleichzeitige Veröffentlichung einzelner Inserate auf mehreren Immobilienportalen ermöglicht. Die Inhalte dieser Inserate werden ausschließlich von Dritten verantwortet. Für die Richtigkeit, Vollständigkeit oder Rechtmäßigkeit der Angaben übernimmt OM keine Haftung. Hinweise auf mögliche Rechtsverstöße können jederzeit gemeldet werden und werden nach Prüfung umgehend bearbeitet.
Ansprechpartner/in: Privat von Ertan Yildirim
OM PropTech GmbH
Humboldtstraße 25a, 21509 Glinde

Weitere Angebote in Ludwigsburg