Modernes Design - nachhaltige Bauweise - Inkl. Grundstückservice

56767 Kaperich
470.860 € Kaufpreis
Wohnfläche
125,27 m²
Zimmer
4

Kaufpreis

Kaufpreis 470.860 €

Wohnfläche, Grundstück & Bausubstanz

Wohnfläche125,27 m²
Nutzfläche125 m²
Grundstücksfläche730 m²
Zimmer4
Etagen2
Baujahr2027
Verfügbar ab Keine Angabe
ZustandProjektiert

Beschreibung der Immobilie

Exklusive Stadtvilla mit flexiblen Raumkonzepten - modernes Wohnen auf zwei Ebenen
Willkommen in einer Stadtvilla, die modernen Lifestyle, architektonische Eleganz und individuelle Planungsfreiheit perfekt vereint!
Die City L von STREIF begeistert auf ca. 125 m² Netto-Raumfläche mit einer klaren, zeitlosen Gestaltung und flexiblen Wohnmöglichkeiten.
Ein Highlight dieser exklusiven Stadtvilla ist die Wahl zwischen drei unterschiedlichen Treppenvarianten:
Ob gradläufig, viertelgewendelt oder doppelt gewendelt - jede Treppenform schafft ein einzigartiges Raumgefühl und eröffnet individuelle Wohnkonzepte, perfekt zugeschnitten auf Ihre Bedürfnisse.
Im Erdgeschoss bieten sich auf Wunsch zusätzliche Optionen:
Ein Gästezimmer lässt sich problemlos integrieren, ebenso ein praktischer Abstellraum direkt an der Küche - ideal für zusätzlichen Stauraum und kurze Wege.
Der offen gestaltete Wohn-/Ess- und Küchenbereich wird durch zahlreiche bodentiefe Fenster lichtdurchflutet und schafft eine harmonische Verbindung zwischen Innen- und Außenbereich.
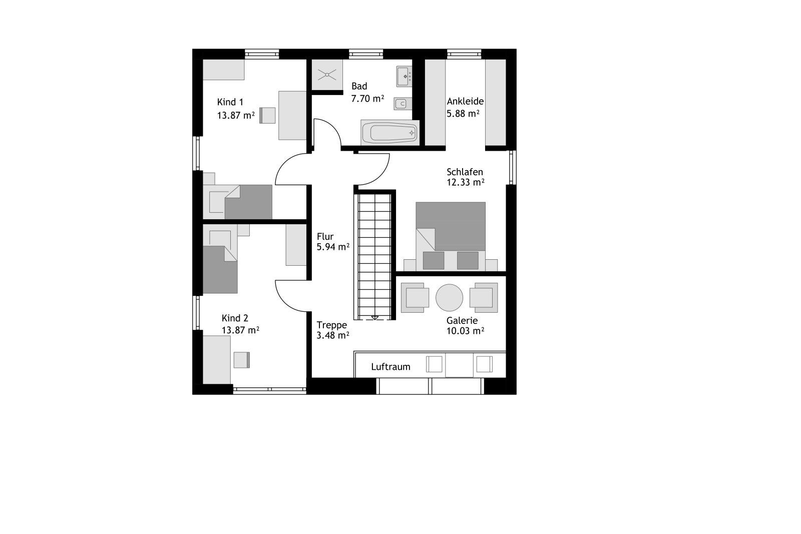
Im Obergeschoss sorgt die klare Raumaufteilung für optimal nutzbare Flächen.
Ein Ankleidebereich am Elternschlafzimmer kann auf Wunsch ebenfalls realisiert werden - für noch mehr Wohnkomfort.
Zwei Vollgeschosse ohne Dachschrägen garantieren eine optimale Raumausnutzung und ermöglichen vielseitige Nutzungsmöglichkeiten für jede Lebensphase.
Ihre Vorteile auf einen Blick:
Ca. 125 m² moderne Netto-Raumfläche
Drei Treppenvarianten zur Wahl für individuelle Raumkonzepte
Option auf Gästezimmer oder Abstellraum im Erdgeschoss
Offener Wohn-/Ess-/Küchenbereich mit vielen bodentiefen Fenstern
Möglichkeit für Ankleidebereich im Obergeschoss
Zwei Vollgeschosse ohne Dachschrägen
Exklusive Architektur mit klarer Linienführung
Energieeffiziente Haustechnik für nachhaltiges Wohnen
Erleben Sie modernes Stadtleben auf höchstem Niveau - mit Ihrer exklusiven STREIF City L.

Ausstattungsmerkmale

Bad1
Bad (Ausstattung)Dusche, Wanne, Fenster
BodenFliesen, Laminat
Das Streif City Haus wird im Standard KFW 40 PLUS ausgeführt. Innenausstattung aus dem STREIF-Programm in der Ausbaustufe FF+ inklusive Fundamentplatte.

■ Rohbau (geschlossene Gebäudehülle) mit Fenstern, Haustür1 inkl. Dacheindeckung
■ Außenfassade inkl. Außenputz, vor Ort komplett fertiggestellt
■ Komplette Blechner-/Spenglerarbeiten
■ lnnen-/Außenwände wärme- und schallgedämmt und mit Rigidur Gipsfaserplatten geschlossen
■ Geschosstreppe (außer Bungalow)
■ Decken wärme- und schallgedämmt und mit Gipskartonbau platten geschlossen
■ Elektroinstallation, einschließlich erforderlichem Zählerschrank und Inbetriebnahme
■ Heizungsanlage inkl. Inbetriebnahme
■ Innenfensterbänke Kunststeinbänke (Gussmarmorbänke) inkl. Einbau
■ Estrich
■ Sanitärräume mit Wand- und Bodenfliesen
■ Sanitärräume mit Sanitärobjekten
■ 6,23 kWP Photovoltaikanlage und 7,7 kWh Batteriespeicher

Die Innentüren sowie Wand-, Decken- und Bodenbeläge der übrigen Räume sind Eigenleistungen des Bauherren.

STREIF Frischluft-Wärmepumpen-Technologie - inklusive
- Heizen mit frischer Außenluft
- Kein Gasanschluss, kein Öl- oder Pelletlagerraum
- Keine Heizkörper
- Wärmetauscher mit bis zu 85% Wärmerückgewinnung

Die dargestellten Bilder können Sonderausstattungen beinhalten, die nicht im Preis enthalten sind!

zzgl. Ortüblicher Baunebenkosten

Selbstverständlich können wir Ihr Haus auch schlüsselfertig / bezugsfertig errichten.
■ Bodenbeläge, Sockel leisten verlegt
■ Maler- und Tapezierarbeiten
■ Innentüren inkl. Einbau

Energie

Energietyp KfW-40
Energieträger/Befeuerung Luft-Wärme-Pumpe

Karte wird geladen...
56767 Kaperich

Lage & Infrastruktur

Unsere Grundstücke befinden sich in attraktiven Lagen und bieten die ideale Basis für Ihr zukünftiges Zuhause.
Bitte haben Sie Verständnis dafür, dass wir aus Datenschutz- und Vertraulichkeitsgründen telefonisch keine Grundstücksdaten herausgeben können.

Sonstige Informationen

- zuzüglich Baunebenkosten
- Keller ist möglich
- der Grundriss oder die Hausgröße können noch verändert werden
- Vorverkauf und Irrtümer sind vorbehalten
Ansprechpartner/in: Herr Markus Stemmler
STREIF Haus GmbH
Josef-Streif-Straße 1, 54595 Weinsheim

Weitere Angebote in Gunderath