Großzügiges Mehrzweckgebäude mit zwei getrennten Gebäudeteilen und vielseitigem Nutzungspotenzial

35114 Haina (Kloster)
Frei ab: ab sofort
150.000 € Kaufpreis
Wohnfläche
220 m²
Zimmer
13

Kaufpreis

Kaufpreis 150.000 €
Maklerprovision3,57 %

Wohnfläche, Grundstück & Bausubstanz

Wohnfläche220 m²
Grundstücksfläche1.167 m²
Zimmer13
Etagen2
Baujahr1925
Letzte ModernisierungKernsanierung 1985 , Ausbau Scheune 1991, Umbau Gaststätte 2008
Verfügbar ab ab sofort
ZustandSanierungsbeduerftig

Beschreibung der Immobilie

Großzügiges Mehrzweckgebäude mit zwei getrennten Gebäudeteilen und vielseitigem Nutzungspotenzial
Zum Verkauf steht ein weitläufiges Mehrzweckgebäude mit zwei klar voneinander getrennten Bereichen unter einem Dach, jeweils mit eigenem Eingang und eigener Raumstruktur. Diese besondere Aufteilung ermöglicht zahlreiche Nutzungsmöglichkeiten – von gewerblichen Konzepten über Mischnutzungen bis hin zu individuellen Wohn- oder Projektideen. Trotz des Modernisierungsbedarfs bietet das Objekt großes Potenzial für eine Neugestaltung nach eigenen Vorstellungen.

Linker Gebäudeteil – Gewerbe- und Aufenthaltsflächen über drei Ebenen

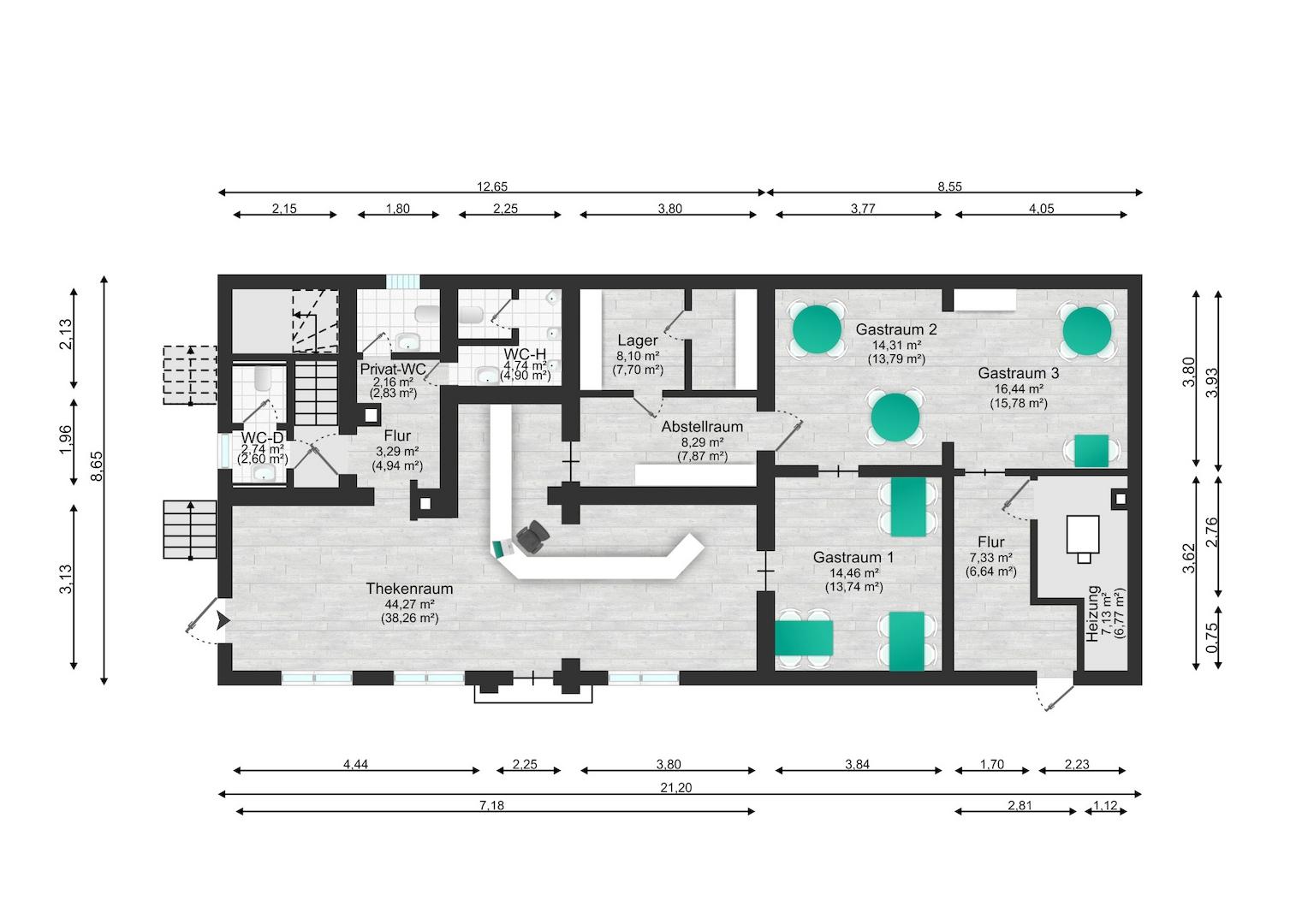
Der linke Gebäudeteil umfasst den früheren Bewirtungs- und Aufenthaltsbereich und erstreckt sich über drei Etagen. Im Erdgeschoss befindet sich ein großzügiger Hauptraum, ehemals als Bar bzw. Wirtschaft genutzt, ergänzt durch Sanitärräume, eine funktionale Küche, einen zentralen Flur sowie weitere Gasträume. Die Raumstruktur eignet sich ideal für gastronomische Konzepte wie Café, Wirtschaft oder Bar, aber auch für alternative Nutzungen.
Im Obergeschoss stehen weitere Zimmer und Funktionsräume zur Verfügung, nutzbar für Personal, Gäste, Büro- oder Projektbereiche. Das Dachgeschoss bietet zusätzliche Aufenthalts- und Wohnflächen mit mehreren Schlaf- bzw. Ruheräumen, einer Küche und Sanitärbereichen. Im obersten Geschoss befindet sich zudem eine Sauna aus der früheren Nutzung, die optional in neue Konzepte integriert werden kann.

Rechter Gebäudeteil – Separater Wohntrakt mit zwei Etagen
Der rechte Gebäudeteil wirkt wie ein eigenständiger Reihenhausabschnitt und verfügt über zwei vollwertige Wohnebenen mit jeweils großer Wohnküche, Schlafzimmer und Badezimmer. Die Räume sind hell, gut geschnitten und in einem deutlich besseren Zustand als im linken Gebäudeteil. Durch die klare Trennung beider Bereiche lassen sich Wohnen und Gewerbe sinnvoll kombinieren oder mehrere Nutzungskonzepte parallel realisieren.

Außenflächen, Scheune und Grundstückspotenzial
Das großzügige Grundstück bietet vielfältige Gestaltungsmöglichkeiten. Im oberen Bereich befindet sich eine Scheune, die sich als Lagerfläche, Werkstatt, Hobbyraum oder für weitere Nutzungsideen eignet. Zudem besteht die Möglichkeit, eine weitläufige Gartenanlage zu gestalten oder Außenflächen für gewerbliche Zwecke zu nutzen. Die Kombination aus großem Gebäude und umfangreicher Außenfläche eröffnet ein breites Spektrum an Entwicklungsmöglichkeiten.

Fazit:
Das Objekt überzeugt durch seine solide Grundstruktur, das außergewöhnlich große Raumangebot und die klare Trennung in zwei eigenständige Gebäudeteile. Der Modernisierungsbedarf bietet die Chance, das Gebäude individuell zu gestalten und vielfältige Nutzungskonzepte umzusetzen. In Verbindung mit dem großzügigen Grundstück und der vorhandenen Scheune stellt die Immobilie eine seltene Gelegenheit für kreative und zukunftsorientierte Projekte dar.

Ausstattungsmerkmale

Bad4

Energie

H
Energieeffizienzklasse H · 269.1 kWh/(m²*a)
EnergieausweistypBedarfsausweis
Ausstellungsdatum16. 10. 2023
Gültig bis08.11.2035
EnergieeffizienzklasseH
Endenergiebedarf269.1
Wesentlicher EnergieträgerÖl
Energieträger/Befeuerung Öl

Karte wird geladen...
35114 Haina (Kloster)

Lage & Infrastruktur

Die Lage an der Hauptstraße bietet insbesondere für gewerbliche oder gastronomische Nutzungskonzepte einen Vorteil durch gute Sichtbarkeit und Erreichbarkeit. Gleichzeitig lässt sich die Immobilie auch für private oder gemischte Nutzung attraktiv gestalten, ohne dass die Lage als störend empfunden werden muss. Die Nord-/Süd-Ausrichtung des Grundstücks ist vorteilhaft für Lichtverhältnisse und Außenflächenplanung.

Sonstige Informationen

Renovierungs- und Modernisierungsbedarf

Das Gebäude bietet eine solide Grundlage für eine umfassende Modernisierung und damit vielfältige Möglichkeiten für eine zeitgemäße Neugestaltung. Oberflächen wie Böden, Wände und Decken können nach eigenen Vorstellungen erneuert, Sanitärbereiche modernisiert und die Elektro- sowie Haustechnik aktualisiert werden. Auch einzelne Fenster und Türen lassen sich im Zuge der Sanierung austauschen. Darüber hinaus besteht Potenzial für energetische Verbesserungen und Anpassungen an aktuelle technische und sicherheitsrelevante Anforderungen. Es kann sinnvoll sein, denkmalbezogene oder energetische Förderprogramme zu prüfen, um die Modernisierung wirtschaftlich zu unterstützen.

Nutzungskonzepte, die das Objekt ermöglicht
• Gastronomische Nutzung: Durch den früheren Bewirtungsbereich im Erdgeschoss des linken Gebäudeteils sind Café, Bar, Wirtschaft, Bistro realisierbar.
• Event- und Gemeinschaftsnutzung: Die großen Aufenthaltsräume über mehrere Ebenen eignen sich für Vereinsräume, Seminare, Workshops, Kurse, Kulturveranstaltungen oder soziale Einrichtungen.
• Mehrgenerationen- oder Gemeinschaftswohnen: Zwei getrennte Gebäudeteile mit eigenen Eingängen und Küchen bieten ideale Voraussetzungen für gemeinschaftliche Wohnformen oder getrennte Wohneinheiten.
• Vermietung mehrerer Einheiten: Der rechte Gebäudeteil mit zwei vollwertigen Wohnebenen kann als eigenständige Mietwohnung oder als zwei separate Einheiten genutzt werden.
• Kombination aus Wohnen und Gewerbe: Die klare Trennung der Gebäudeteile ermöglicht es, Wohnen und Gewerbe unter einem Dach zu verbinden, ohne sich gegenseitig zu beeinträchtigen.
• Personal- oder Gästebereich Die oberen Etagen des linken Gebäudeteils bieten flexible Möglichkeiten für Personalunterkünfte, Gästezimmer oder projektbezogene Nutzung.
• Kreativ- und Ateliernutzung: Große Räume und separate Bereiche eignen sich für Atelier, Studio, Werkstatt oder kreative Projekte.
Ansprechpartner/in: Herrn Bernd Engelbach
Engelbach Immobilien
Im Ortsgrund 38, 35066 Frankenberg (Eder)

Weitere Angebote in Haina