exklusive Doppelhaushälfte inkl. Grundstück in Vellmar

34246 Vellmar
467.000 € Kaufpreis
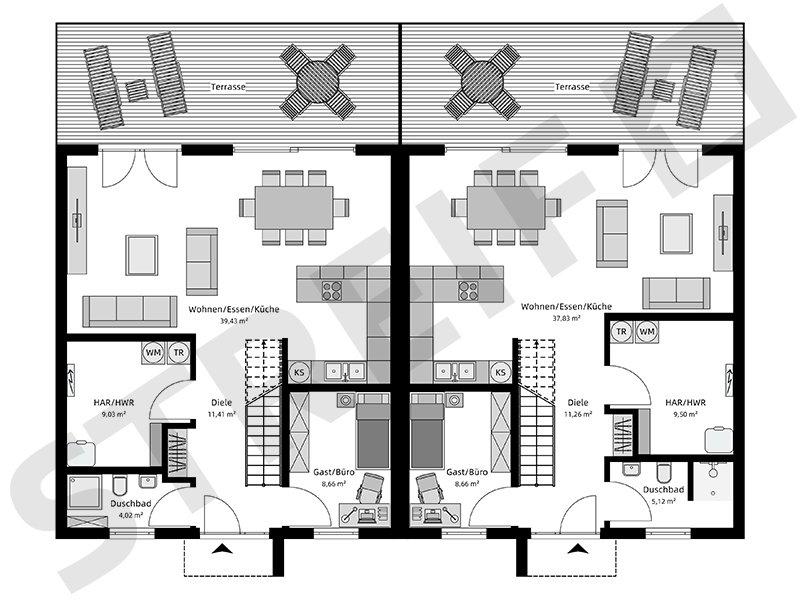
Wohnfläche
142 m²
Zimmer
5
Offene Küche
Terrasse
Barrierefrei

Kaufpreis

Kaufpreis 467.000 €
Maklerprovision3%

Wohnfläche, Grundstück & Bausubstanz

Wohnfläche142 m²
Grundstücksfläche500 m²
Zimmer5
Etagen2
Baujahr2027
Verfügbar ab Keine Angabe
ZustandErstbezug

Beschreibung der Immobilie

Das hier angebotene Haus hat eine Netto-Raumfläche von insgesamt ca. 142 m², Effizienzhaus-Klasse 40 plus, inkl. Photovoltaikanlage und Batteriespeicher.
Der Haustyp DOPPELHAUS - so baut man heute.
In vielen Neubaugebieten werden vermehrt Grundstücke für eine Doppelhausbebauung ausgeschrieben. Damit Sie hier die vollen Synergien nutzen können, planen und bauen wir für Sie Ihr Doppelhaus ganz nach Ihren Wünschen und Vorstellungen - auf kleinstem Raum mit größtmöglicher Platzausnutzung. Sie haben für den Bau Ihrer Doppelhaushälfte eine große Auswahl an Möglichkeiten, wie der Stil Ihres Hauses innen und außen gestaltet sein soll.
STREIF-Energiespar-Häuser sind für die Effizienzhaus-Klasse 40 plus ausgestattet. Auf Wunsch erstellen wir eine Ökobilanz (KFWG), die bescheinigt, dass Ihr STREIF-Haus den neuen KfW-Förderrichtlinien für den Klimafreundlichen Neubau (KFN) entspricht. So sichern Sie sich bis zu 100.000,00 EUR zinsgünstiges Darlehen. Ergänzend kann auch die Nachhaltigkeitszertifizierung nach QNG (KFWG-Q) (bei Ausbaustufe fast fertig plus und schlüsselfertig) angeboten werden.
Die abgebildeten Hausentwürfe sind Gestaltungsvorschläge. Eine Vielzahl individueller Anpassungen wie z. B. Hausgröße, Dachgeometrie, Fenstergrößen und deren Position sind möglich. Änderungen und Irrtümer vorbehalten.
Wir beraten Sie gerne beim Hauskauf!

Ausstattungsmerkmale

KücheOffene Küche
Bad2
Bad (Ausstattung)Dusche, Wanne, Fenster
Terrassen1
BarrierefreiJa
STREIF-Häuser erfüllen bereits im Standard die Effizienzhaus-Klasse KfW40PLUS.

Die STREIF-Passiv-Haus-Wände, eine effiziente Heiztechnik mit integrierter Wohnraumlüftung und Wärmerückgewinnung garantieren einen geringen Energieverbrauch und ein fantastisches Raumklima, das insbesondere Allergiker aufatmen lässt.

STREIF Leistungen sind MEHR WERT - schon im Grundpreis enthalten!

- 16-monatige Festpreisgarantie
- inkl. individuelle Grundrissgestaltung und Raumaufteilung
- inkl. gedämmte Fundamentplatte
- inkl. Photovoltaikanlage inkl. Batteriespeicher
- inkl. Wärmepumpen-Technologie mit integrierter
Lüftungsanlage mit Wärmerückgewinnung
- inkl. Haustür von KERA und Fenster von Porta/Kömmerling
- inkl. Massivholz-Geschosstreppe aus eigener Produktion
- inkl. Sanitärobjekte von Markenherstellern
- inkl. Elektroinstallation
- inkl. Gütesiegel vom TÜV Rheinland- (schadstoffgeprüfte Materialien)
- inkl.. KfW-Berechnungen, Nachweise & Anträge

Was wir Ihnen sonst noch bieten:
- Kostenlose Bauberatung inkl. Grundrissplanung
- Ermittlung der Gesamt-Investition Ihres Bauvorhabens
- Finanzierungs - & Fördermittelberatung

Die hohe Wertigkeit und Langlebigkeit eines STREIF-Energiespar-Hauses wird durch zahlreiche Auszeichnungen, Qualitäts- und Gütesiegel unabhängiger Institute und Verbände dokumentiert.

Der Angebotspreis ist inklusive Grundstück und bezieht sich auf die Standard-Ausbaustufe Fast-Fertig-Plus (Technikfertig inkl. Bäder). Somit wären Ihre Eigenleistungen: Malerarbeiten, Bodenbeläge und die Innentüren. Selbstverständlich können wir Ihr Haus auch schlüsselfertig / bezugsfertig errichten.

Wir beraten Sie gerne beim Hauskauf! Sprechen Sie uns an: 0176-34990349

Energie

Energietyp Niedrigenergie, KfW-40
Heizungsart Zentralheizung, Fußbodenheizung
Energieträger/Befeuerung Luft-Wärme-Pumpe

Karte wird geladen...
34246 Vellmar

Lage & Infrastruktur

Tolles Baugrundstück mit Süd-/Westausrichtung in 34246 Vellmar. Das Grundstück hat eine Größe von ca. 500qm und befindet sich in einem reinen Wohngebiet.

Wer es ruhig, beschaulich und mit viel Natur mag, ist in Vellmar super aufgehoben. Vellmar besticht durch eine gute Infrastruktur und schneller Erreichung der Stadt Kassel. Neben Einkaufsmöglichkeiten, Arzt, Kindergarten, Grundschule und diversen Vereinsaktivitäten hat Vellmar viel zu bieten und ist ein gefragter Ort, besonders für junge Familien.

Sie besitzen bereits ein Grundstück?

Gerne realisieren wir Ihr Wunschhaus auch auf Ihrem Grundstück.

Sie suchen noch Ihr Wunschgrundstück?

Mithilfe unserer starken regionalen Vernetzung finden sicherlich auch Sie für Ihr Bauvorhaben das passende Grundstück. Die Grundstücksakquise wird durch unsere Netzwerkpartner übernommen und ist ein Service, der nur unseren Auftragskunden zur Verfügung steht. Wir bitten um Verständnis dafür, dass Informationen zu den vorhandenen Bauplätzen erst nach Bestätigung der Widerrufsbelehrung erfolgen dürfen.

Die von uns gemachten Informationen beruhen auf Angaben des Verkäufers bzw. der Verkäuferin. Für die Richtigkeit und Vollständigkeit der Angaben kann keine Gewähr bzw. Haftung übernommen werden. Ein Zwischenverkauf und Irrtümer sind vorbehalten.

Sonstige Informationen

Sie brauchen einen kompetenten und verlässlichen Baupartner? Wir stehen Ihnen von Anfang an zur Seite & begleiten Sie auf dem Weg in Ihr Eigenheim:

Mit großem Engagement, Persönlichkeit und einer Fachfirma STREIF mit immensen Bau-Know-how, die seit 1929 auf über 85.000 realisierte Wohnträume zurückblicken kann.

Jedes Haus von STREIF wird individuell als Energiesparhaus geplant und gebaut. Eine nachhaltige, ökologische und wohngesunde Bauweise, eine zertifizierte Ausführungsqualität und eine kurze Bauzeit, dafür stehen wir.

Gerne beraten wir Sie nach Vereinbarung in unserem Musterhaus in Kassel/Fuldabrück und erstellen Ihnen ein Angebot mit einer detaillierten & realistisch ermittelten Aufstellung der Gesamt-Investition.

Wir freuen uns auf Ihren Anruf / Nachricht!

Ihr STREIF Fachberater, Björn Kipphen
www.dr-haus-kassel.de
Mobil: 0176-34990349
E-Mail: bjoern.kipphen@streif.de


Hinweis:
Vorverkauf und Irrtümer vorbehalten.Bilder können Sonderbauteile darstellen, die im Preis nicht enthalten sind und abweichend von textlichen Inhalten sein.
zzgl. Baunebenkosten.
Der Grundstückserwerb stellt keine STREIF Leistung dar.
Hinweis zu den gesetzlichen Pflichtangaben gemäß der EnEV 2016: Bei dem hier angebotenen Haus handelt es sich um ein Neubauprojekt.
Wir weisen darauf hin, dass zu diesem projektierten Haus noch kein Energieausweis vorliegt. Der Energieausweis wird Ihnen spätestens im Rahmen der Erstellung des Objektes ausgehändigt
Ansprechpartner/in: Herr Björn Kipphen
STREIF Haus GmbH
Josef-Streif-Straße 1, 54595 Weinsheim

Weitere Angebote in Hof Mondschirm