Wohnung zu klein? Jetzt mit STREIF Haus ins eigene KfW 40PLUS-Familienhaus durchstarten!

01796 Sachsen - Pirna
599.550 € Kaufpreis
Wohnfläche
144 m²
Zimmer
5
Offene Küche
Terrasse

Kaufpreis

Kaufpreis 599.550 €

Wohnfläche, Grundstück & Bausubstanz

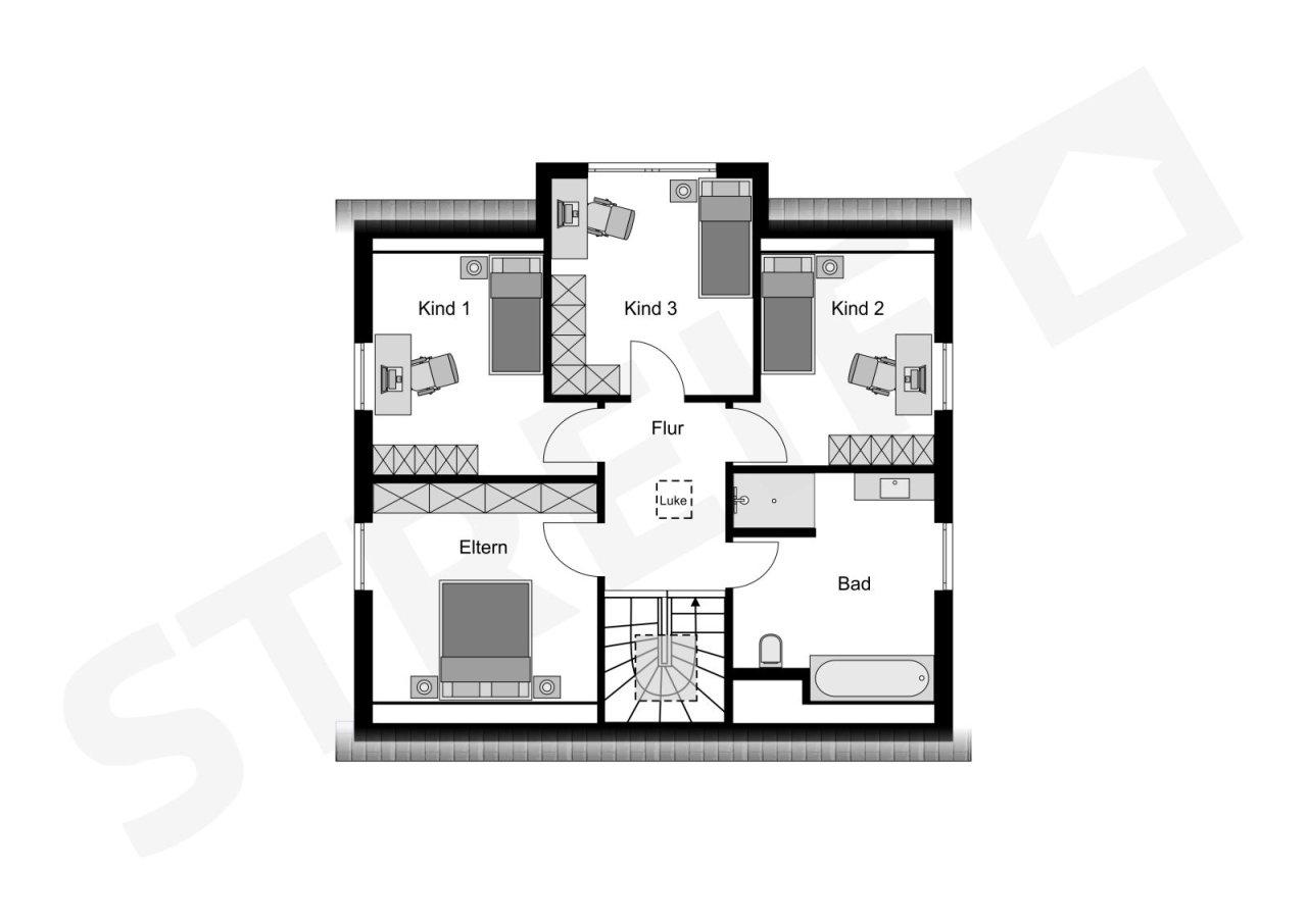
Wohnfläche144 m²
Grundstücksfläche479 m²
Zimmer5
Etagen2
Verfügbar ab Keine Angabe
ZustandErstbezug

Beschreibung der Immobilie

Das hier angebotene Haus hat eine Netto-Raumfläche von insgesamt ca. 144 m², Effizienzhaus-Klasse 40 plus, inkl. Photovoltaikanlage und Batteriespeicher.

Haustyp FAMILY - Maßgeschneiderte Klassiker zum Wohlfühlen.
Wenn Sie sich den Traum vom Einfamilienhaus erfüllen möchten, dann ist die Hausserie FAMILY genau das Richtige. Diese Familiendomizile überzeugen mit einer klassischen Architektur, mit einer kompakten und gut strukturierten Grundrissplanung. Mit Leidenschaft und hohem Verantwortungsgefühl für Ihre Investition bauen wir Ihr Einfamilienhaus.

Wir realisieren für Sie frei geplante Häuser zuverlässig und qualitativ hochwertig, passend zum Budget und nach all Ihren Vorgaben und Wünschen.

Die abgebildeten Hausentwürfe sind Gestaltungsvorschläge.

Eine Vielzahl individueller Anpassungen wie z. B. Hausgröße, Dachgeometrie, Fenstergrößen und deren Position sind möglich.

STREIF-Energiespar-Häuser sind für die Effizienzhaus-Klasse 40 plus ausgestattet. Gerne stellen wir für Ihr Haus eine Ökobilanz (KFWG) aus.

Dies bescheinigt, dass Ihr STREIF-Haus den neuen KfW-Förderrichtlinien für den Klimafreundlichen Neubau (KFN) entspricht. So sichern Sie sich zinsgünstige Darlehen. Ergänzend mit unserer Nachhaltigkeitszertifizierung nach QNG (KFWG-Q) kann sich Ihr subventionierter Darlehensanspruch mit attraktiven Zinssätzen erweitern.

Wir beraten Sie gerne! Sprechen Sie uns an www.zobelhausgemacht.de

Ausstattungsmerkmale

KücheOffene Küche
Bad2
Bad (Ausstattung)Dusche, Wanne, Fenster
Terrassen1
STREIF-Häuser erfüllen bereits im Standard die Effizienzhaus-Klasse KfW40PLUS.

Die STREIF-Passiv-Haus-Wände, eine effiziente Heiztechnik mit integrierter Wohnraumlüftung und Wärmerückgewinnung garantieren einen geringen Energieverbrauch und ein fantastisches Raumklima, das insbesondere Allergiker aufatmen lässt.

STREIF Leistungen sind MEHR WERT - schon im Grundpreis enthalten!

- 20-monatiger Fair- & Festpreisgarantie
- individuelle Grundrissgestaltung und Raumaufteilung
- gedämmte Fundamentplatte
- Photovoltaikanlage und Batteriespeicher
- Wärmepumpen-Technologie mit integrierter
Lüftungsanlage mit Wärmerückgewinnung
- Haustür von KERA und Fenster von Porta/Kömmerling
- Massivholz-Geschosstreppe aus eigener Produktion
- Sanitärobjekte von Markenherstellern
- Elektroinstallation
- Gütesiegel vom TÜV Rheinland- (schadstoffgeprüfte Materialien)
- KfW-Berechnungen, Nachweise & Anträge

Was wir Ihnen sonst noch bieten:
- individuelle und kostenlose Bauberatung inkl. Planungsvorschlag (Grundriss & Hauspreis)
- Baubegleitung
- Ermittlung der Gesamt-Investition Ihres Bauvorhabens (Baunebenkosten)
- Finanzierungs - & Fördermittelberatung

Die hohe Wertigkeit und Langlebigkeit eines STREIF-Energiespar-Hauses wird durch zahlreiche Auszeichnungen, Qualitäts- und Gütesiegel unabhängiger Institute und Verbände dokumentiert.

Angebotspreis ist
- inklusive Grundstück und Provision
- inklusive Haus in der Ausbaustufe Fast-Fertig-Plus (Technikfertig inkl. Bäder).

Ihre Eigenleistungen:
- Malerarbeiten
- Bodenbeläge
- Innentüren.

Selbstverständlich können wir Ihr Haus auch schlüsselfertig / bezugsfertig errichten.

Wir beraten Sie gerne beim Hauskauf! Sprechen Sie uns an: info@zobelhausgemacht.de

Energie

Energietyp Niedrigenergie, KfW-40
Heizungsart Zentralheizung
Energieträger/Befeuerung Luft-Wärme-Pumpe

Karte wird geladen...
01796 Sachsen - Pirna

Lage & Infrastruktur

Sie besitzen bereits ein Grundstück?
Gerne realisieren wir Ihr Wunschhaus auch auf Ihrem Grundstück.

Oder suchen Sie noch Ihr Wunschgrundstück?

Hier können wir mit unserem Grundstücksservice und unserer starken regionalen Vernetzung sicherlich auch für Ihr Bauvorhaben das passende Grundstück finden.

Diese Grundstücksakquise wird durch unsere Netzwerkpartner übernommen und ist ein Service, der nur unseren Auftragskunden zur Verfügung steht.

Wir bitten um Verständnis dafür, dass Informationen zu den vorhandenen Bauplätzen erst nach Bestätigung der Widerrufsbelehrung erfolgen dürfen.

Die von uns gemachten Informationen zum Grundstück und der Lage beruhen auf Angaben des Verkäufers bzw. der Verkäuferin. Für die Richtigkeit und Vollständigkeit der Angaben kann keine Gewähr bzw. Haftung übernommen werden. Ein Zwischenverkauf und Irrtümer sind vorbehalten.

Sonstige Informationen

Sie wünschen Bauplanung und Begleitung aus einer Hand? Dann sind wir Ihr Baupartner! Wir stehen Ihnen von Anfang an zur Seite und führen Sie auf dem Weg in Ihr neues perfektes Zuhause!

Mit STREIF haben Sie einen Baupartner mit Bau-Know-how, der seit 1929 auf fast 100 Jahre und 100.000 realisierte Wohnträume zurückblicken kann.

Jedes Haus von STREIF wird individuell als Energiesparhaus geplant und gebaut. Eine nachhaltige, ökologische und wohngesunde Bauweise, eine zertifizierte Ausführungsqualität und eine kurze Bauzeit, dafür stehen wir.

Gerne beraten wir Sie nach Vereinbarung in unserem STREIF-Beratungsbüro in Hamburg oder besuchen Sie auch gerne nach Feierabend und am Wochenende!

Im Anschluss der gemeinsamen Bedarfsermittlung erstellen wir Ihnen Ihren individuellen Planungsvorschlag mit einer detaillierten & realistisch ermittelten Aufstellung der Gesamt-Investition.

Wir freuen uns auf Ihren Anruf / Nachricht:

Ihr STREIF-Hausberater
Frank Zobel
www.zobelhausgemacht.de
Tel.: 040/22 89 70 55 00
E-Mail: termin@zobelhausgemacht.de

Ansprechpartner/in: Herr Frank Strobel
STREIF Haus GmbH
Josef-Streif-Straße 1, 54595 Weinsheim

Weitere Angebote in Dohma