**Villen-Vision: Modernes Wohnen in einem Kunstwerk der Architektur und mit Klinkeraktion**

31020 Salzhemmendorf
Frei ab: 2026
663.306 € Kaufpreis
Wohnfläche
183,88 m²
Zimmer
6
Offene Küche
Terrasse

Kaufpreis

Kaufpreis 663.306 €

Wohnfläche, Grundstück & Bausubstanz

Wohnfläche183,88 m²
Nutzfläche25 m²
Grundstücksfläche491 m²
Zimmer6
Etagen2
Baujahr2026
Verfügbar ab 2026
ZustandProjektiert

Beschreibung der Immobilie

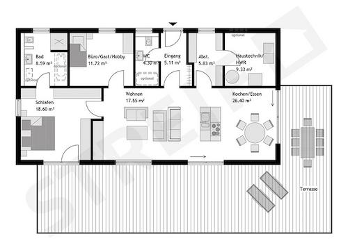
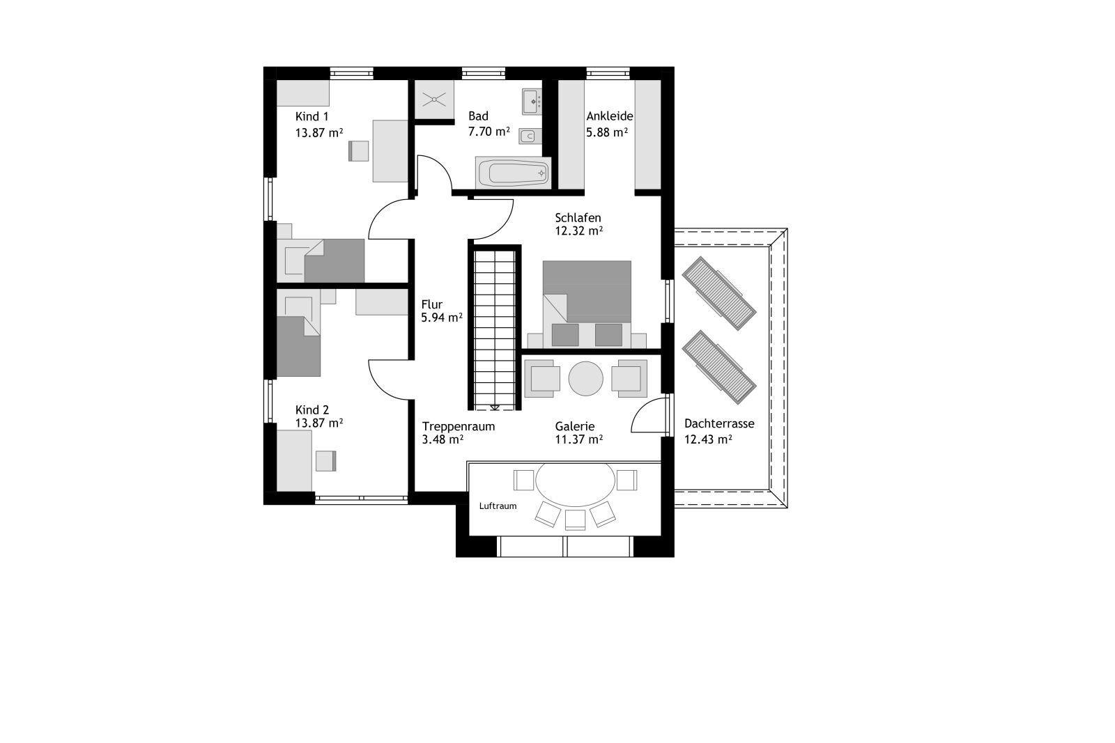
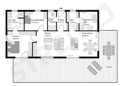
Erfüllen Sie sich den Traum von einer modernen Stadtvilla, die ganz nach Ihren Wünschen und Bedürfnissen gestaltet wird. Dieses beeindruckende Projekt umfasst eine Wohnfläche von 183,88 m², verteilt auf zwei Etagen und sechs großzügigen Zimmern. Das Herz dieses Hauses sind die drei Schlafzimmer und die zwei luxuriös ausgestatteten Badezimmer, die mit Dusche, Wanne und Fenstern für viel Tageslicht ausgestattet sind. Ein zusätzliches Gäste-WC sorgt für Komfort im Alltag. Die Villa steht auf einem 491 m² großen Grundstück in einem attraktiven Wohngebiet von Salzhemmendorf, das Ihnen sowohl Ruhe als auch hervorragende Anbindungen bietet.

Ausstattungsmerkmale

KücheOffene Küche
Bad2
Bad (Ausstattung)Dusche, Wanne, Fenster
BodenFliesen
Terrassen1
Die Luxusausstattung dieser Stadtvilla lässt keine Wünsche offen: Hochwertige Fliesenböden sorgen für ein elegantes Ambiente und können nach Ihren individuellen Vorlieben ergänzt werden. Die moderne Wärmepumpe als Befeuerungsart garantiert nicht nur umweltfreundliches Heizen, sondern auch niedrige Betriebskosten. Zudem erfüllt das Haus den KFW40 Standard, was Ihnen einen hohen energetischen Nutzen bietet. Diese Premium-Ausstattung wird Ihr Leben komfortabel und effizient gestalten.

Energie

Energietyp KfW-40
Heizungsart Zentralheizung
Energieträger/Befeuerung Luft-Wärme-Pumpe

Karte wird geladen...
31020 Salzhemmendorf

Lage & Infrastruktur

Salzhemmendorf bietet Ihnen eine ideale Wohnlage mit bester Infrastruktur. In der nahen Umgebung finden Sie alles für den täglichen Bedarf: Apotheken, Einkaufsmöglichkeiten, Kindergärten sowie Grund- und weiterführende Schulen sind schnell erreichbar. Auch der Anschluss an öffentliche Verkehrsmittel wie Busse und Bahnen ist hervorragend, was Ihnen Flexibilität im Alltag garantiert. Freizeitmöglichkeiten wie Spielplätze machen diesen Standort besonders attraktiv für Familien.

Sonstige Informationen

Achtung: Klinkeraktion ist verlängert!

STREIF Haus - der Pionier der deutschen Fertighausbranche
Die langjährige Firmentradition des Unternehmens reicht bis in das Jahr 1929 zurück. In den 50er und 60er Jahren wurde in Deutschland schnell und viel Wohnraum für Familien benötigt, seitdem konzentrierte sich das Unternehmen auf die Entwicklung und Produktion von Fertighaustypen, die im Werk in großen Stückzahlen hergestellt werden konnten. So kann das Unternehmen auf 90.000 gebaute Hausobjekte zurückblicken und sich zu Recht als Pionier der deutschen Fertighausbranche bezeichnen.

Die neuen Energiesparhäuser - So baut man heute.
Unser Anspruch ist es, in enger Partnerschaft mit unseren Kunden langlebige Häuser zu bauen, mit einer hohen architektonischen Qualität, individuell geplant und dabei energieeffizient und ressourcenschonend. Jedes STREIF-Haus ist einzigartig und wird speziell für jeden Kunden "maßgeschneidert" und gebaut. Passend zu den persönlichen Wünschen, dem vorgegebenen Budget und dem vorhandenen Grundstück planen und bauen wir jedes Haus mit viel Liebe zum Detail.
Ansprechpartner/in: Herr Andreas Maurer
06551 12 00
STREIF Haus GmbH
Josef-Streif-Straße 1, 54595 Weinsheim
06551 12 00

Weitere Angebote in Salzhemmendorf