MFH mit Wertsteigerungspotenzial: 3 WE + Balkone geplant (ohne Provision)

34277 Fuldabrück-Dörnhagen, Hessen
Frei ab: sofort
299.900 € Kaufpreis
Wohnfläche
192 m²
Zimmer
12
Garten
Keller
Stellplatz

Kaufpreis

Kaufpreis 299.900 €
Maklerprovisionkeine Provision, courtagefrei

Wohnfläche, Grundstück & Bausubstanz

Wohnfläche192 m²
Grundstücksfläche440 m²
Zimmer12
Etagen3
Baujahr1938
Verfügbar ab sofort
ZustandTeil Vollrenovierungsbed

Beschreibung der Immobilie

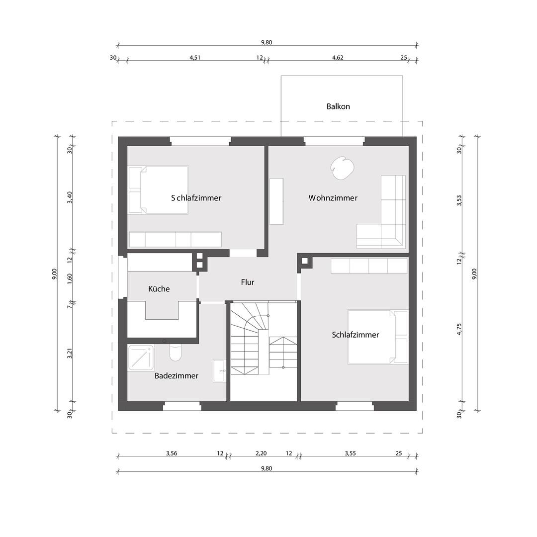
Zum Verkauf steht ein attraktives Mehrfamilienhaus mit vorbereiteter Projektierung zur Erweiterung auf 3 Wohneinheiten inklusive Balkonanbau in Fuldabrück bei Kassel.

Die Planung wurde bereits durch ein erfahrenes Architekturbüro erstellt, baulich geprüft sowie mit den relevanten Stellen abgestimmt und eingereicht.

Damit bietet das Objekt eine klare und realistische Entwicklungsbasis, ideal für Investoren und Projektentwickler, die ein Projekt nach eigenen Vorstellungen umsetzen möchten, ohne bei null starten zu müssen.

Der aktuelle Bestand umfasst zwei Wohneinheiten sowie ein sehr gut nutzbares Dachgeschoss, das für den Ausbau zur dritten Einheit vorgesehen ist.

Ausstattungsmerkmale

BodenFliesen, Parkett, Laminat
GartenJa
KellerJa
Garage/Stellplätze1
Garten, Keller, Parkett, Laminat, Fliesen

Bemerkungen:
Bestand aus 2 bestehenden Wohneinheiten + Dachgeschoss mit bereits teilweisem Ausbau
Dachgeschoss wurde bereits als Wohnraum genutzt (gute Grundlage für weitere Entwicklung)
Gesamtpotenzial von ca. 200 m² Wohnfläche nach Umsetzung des Projekts
Grundrisse durch erfahrenes Architekturbüro entwickelt (Spezialisierung: Bauen im Bestand)
Planung für Aufteilung in 3 Wohneinheiten inkl. Balkone ausgearbeitet
Bauantrag abgestimmt und aktuell bereits erste Maßnahmen zur Aufteilung in Einreichung.

Energie

F
Energieeffizienzklasse F · 188 kWh/(m²*a)
EnergieausweistypBedarfsausweis
EnergieeffizienzklasseF
Endenergiebedarf188
Energieträger/Befeuerung Elektro

Karte wird geladen...
34277 Fuldabrück-Dörnhagen – Hessen

Lage & Infrastruktur

Die Immobilie befindet sich in Fuldabrück, einer beliebten Wohnlage im direkten Einzugsgebiet von Kassel.

Die Umgebung bietet eine gute Kombination aus ruhigem Wohnen und guter Infrastruktur. Einkaufsmöglichkeiten, Schulen, Kindergärten sowie öffentliche Verkehrsmittel sind schnell erreichbar.

Die Kasseler Innenstadt sowie die Autobahn A7 sind in kurzer Zeit erreichbar und machen den Standort besonders attraktiv für Pendler im Raum Nordhessen.
Infrastruktur (im Umkreis von 5 km):
Apotheke, Lebensmittel-Discount, Allgemeinmediziner, Kindergarten, Grundschule, Öffentliche Verkehrsmittel

Sonstige Informationen

Heizungsart: Sonstiges (s. Text)
Energieträger: Strom


Makleranfragen nicht erwünscht. Nach § 7 UWG sind unaufgeforderte Kontaktaufnahmen durch Makler ohne ausdrückliche Einwilligung des Empfängers verboten!

ohne-makler (OM) ist weder Anbieter noch Vermittler der Immobilie. OM betreibt eine Plattform für Immobilieneigentümer, die unter anderem die gleichzeitige Veröffentlichung einzelner Inserate auf mehreren Immobilienportalen ermöglicht. Die Inhalte dieser Inserate werden ausschließlich von Dritten verantwortet. Für die Richtigkeit, Vollständigkeit oder Rechtmäßigkeit der Angaben übernimmt OM keine Haftung. Hinweise auf mögliche Rechtsverstöße können jederzeit gemeldet werden und werden nach Prüfung umgehend bearbeitet.
Ansprechpartner/in: Privat von Leonie Sommer
OM PropTech GmbH
Humboldtstraße 25a, 21509 Glinde

Weitere Angebote in Fuldabrück