Gut aufgeteilte 4 Zimmerwohnung in gefragter Lage Am Trimmelter Hof Nähe Uni mit guter Infrastruktur

54296 Trier
Frei ab: kurzfristig beziehbar
260.000 € Kaufpreis
Wohnfläche
93,3 m²
Zimmer
4
Einbauküche
Keller

Kaufpreis

Kaufpreis 260.000 €
Hausgeld250 €
Maklerprovision3,57 % incl. MwSt

Wohnfläche, Grundstück & Bausubstanz

Wohnfläche93,3 m²
Fläche teilbar ab93,3 m²
Zimmer4
Baujahr1983
Verfügbar ab kurzfristig beziehbar
ZustandGepflegt

Beschreibung der Immobilie

Gut aufgeteilte 4- Zimmerwohnung mit optionaler Garage in gefragter Wohnlage Trier, Am Trimmelter Hof - Trier Nähe Universität.
Die Wohnung befindet sich im 3. Obergeschoß (oberstes Geschoß) ohne Aufzug eines Mehrfamilienhauses mit 8 Wohnungen.Die Eigentümergemeinschaft besteht aus mehreren Hauseingängen-
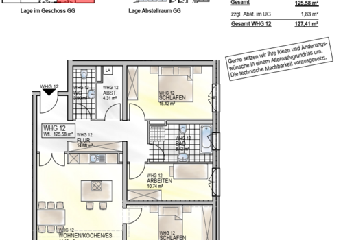
Die Wohnung besteht aus einem hellen Wohnraum von ca. 28 m² mit Zugang zum sonnigen Balkon. Von der zentralen Diele gelangen Sie in die geräumige Küche von ca 9 m², das Wannenbad mit Fenster, ein,separates WC sowie das großzügige Elternschlafzimmer von ca. 17 m². Ebenso sind das Kinderzimmer von ca. 12 m² sowie das Büro von ca. 9 m² von der Diele zugänglich.
Die Gesamtwohnfläche beträgt ca. 94 m².
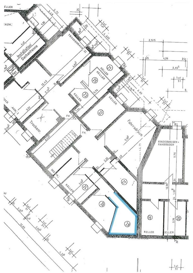
Zur Wohnung gehört ein geräumiger Kellerraum. Ebenso ist ein Fahrradraum zur gemeinschaftlichen Nutzung vorhanden.
Die Wohnung ist kurzfristig beziehbar.

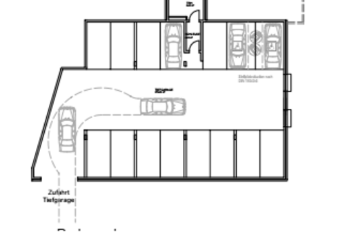
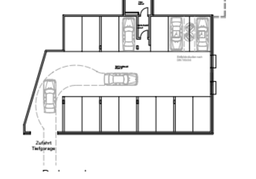
Es besteht die Möglichkeit eine Garage mit Vorplatz für 15.000 EUR zusätzlich zu erwerben.

Ausstattungsmerkmale

KücheEinbauküche
Bad1
Bad (Ausstattung)Wanne, Fenster
BodenFliesen, Laminat
KellerJa
Gut aufgeteilte 4- Zimmerwohnung mit optionaler Garage in gefragter Wohnlage Trier Am Trimmelter Hof - Nähe Universität.
Die Wohnung befindet sich im 3. Obergeschoß (oberstes Geschoß) ohne Aufzug eines Mehrfamilienhauses mit 8 Wohnungen.Die Eigentümergemeinschaft besteht aus mehreren Hauseingängen.
Die Wohnung besteht aus einem hellen Wohnraum von ca. 28 m² mit Zugang zum sonnigen Balkon. Von der zentralen Diele gelangen Sie in die geräumige Küche von ca 9 m², das Wannenbad mit Fenster, ein,separates WC sowie das großzügige Elternschlafzimmer von ca. 17 m². Ebenso sind das Kinderzimmer von ca. 12 m² sowie das Büro von ca. 9 m² von der Diele zugänglich.
Die Gesamtwohnfläche beträgt ca. 94 m².
Zur Wohnung gehört ein geräumiger Kellerraum. Ebenso ist ein Fahrradraum zur gemeinschaftlichen Nutzung vorhanden.
Die Wohnung ist kurzfristig beziehbar.

Es besteht die Möglichkeit eine Garage mit Vorplatz für 15.000 EUR zusätzlich zu erwerben.

Energie

B
Energieeffizienzklasse B · 68,90 kWh/(m²*a)
EnergieausweistypVerbrauch
Ausstellungsdatum27. 11. 2018
Gültig bis26.11.2028
Baujahr (laut Energieausweis)1983
EnergieeffizienzklasseB
Energieverbrauchkennwert68,90 kWh/(m²*a)
Wesentlicher EnergieträgerStrom
Energieträger/Befeuerung Elektro

Karte wird geladen...
54296 Trier

Lage & Infrastruktur

Wohngebiet Trier, Am Trimmelter Hof. Gefragte Wohnlage in der Nähe der Universität. Alle Einrichtungen des täglichen Bedarfs erreichen Sie in kurzen Wegen. Insbesondere sind diverse Einkaufsmöglichkeiten durch ein modernes Einkaufszentrum in fußläufiger Entfernung gegeben.
Ebenso ist eine gute Verkehrsanbindung sowohl mit öffentlichen Verkehrsmitteln als auch für den Individualverkehr in alle Richtungen gegeben..
Das Haus befindet sich am Ende einer Sackgasse in herrlich ruhiger Lage. Der Bereich grenzt an eine öffentliche Grünfläche an.

Sonstige Informationen

Vereinbaren Sie einen Besichtigungstermin !

Der Energieausweis liegt vor. Dieser wird dem Interessenten vor dem Besichtigungstermin mit dem Exposé zur Verfügung gestellt.

Gerne sind wir Ihnen in Zusammenarbeit mit einem Finanzierungsvermittler bei der Gestaltung Ihrer Finanzierung behilflich. Die Zinsen können z.B. auf die Dauer von 10 oder 15 Jahren fesgeschrieben werden. Hierdurch können sich Ihre monatlichen Raten nicht verändern. Sonderzahlungen sind möglich!

Familien mit Kindern haben die Möglichkeit günstige öffentliche Darlehen über die ISB Rheinland-Pfalz zu erhalten.
Infos finden Sie unter: https://isb.rlp.de/wohnen/selbstnutzung.html. Hier sind Darlehen mit einer Zinsbindung von 35 Jahren zu günstigen Zinsen von 3,55 % sowie ein Tilgungszuschuß von bis zu 7,5 % möglich.
Lassen Sie sich beraten !

weitere interessante Kauf- oder Mietangebote finden Sie unter www.scherf-immobilien.de

Unsere Nachweis/Vermittlungsgebühr beträgt 3,57 % incl. MwSt, berechnet vom Kaufpreis.
Entsprechend der aktuellen Gesetzgebung zahlt ein Verbraucher beim Erwerb einer Eigentumswohnung oder eines Einfamilienhauses eine Maklergebühr in Höhe der Gebühr, die auch der Verkäufer für diese Vermittlung zahlt, im konkreten Fall 3,57 % des Kaufpreises incl. MwSt.

Widerrufsrecht für Verbraucher: Sie können als Verbraucher Ihre Erklärung innerhalb von 14 Tagen ohne Angabe von Gründen in Textform ( z. B. Brief, E-Mail) widerrufen. Zur Wahrung der Widerrufsfrist genügt die rechtzeitige Absendung des Widerrufs oder die Rückgabe der Sache. Der Widerruf ist zu richten an: Firma Scherf Profi Immobilien Service GmbH, Paulinstraße 104, 54292 Trier, Telefon: 0651 - 978 78 0, Email: Info@scherf-immobilien.de

Einwilligung zur Nutzung und Übermittlung vorhabensbezogener Daten gem. Art 7 DSGVO:
Mit der Angebotsanfrage willigen Sie ein, dass die Firma Scherf Profi Immobilien Service GmbH, mit dem Sitz in Trier, Ihre personenbezogenen Daten zum Zweck der Übermittlung von Angeboten und Kaufverhandlungen mit Zusendung von weiteren Informationen aus dem Immobilienbüro verarbeitet und Ihnen diese Informationen zusendet bzw. Sie anruft. Sie werden hiermit ausdrückllich darüber informiert, dass Sie diese Einwilligung jederzeit und ohne Angaben von Gründen gegenüber dem Immobilienbüro widerrufen können ( per Post oder Email ).





Weitere interessante Kauf- oder Mietangebote finden Sie unter www.scherf-immobilien.de
Ansprechpartner/in: Herr Norbert Scherf
0651 97878-0
Scherf Profi Immobilienservice GmbH
Paulinstraße 104, 54292 Trier
0651 97878-0

Weitere Angebote in Trier