Vollvermietete Kapitalanlage in Oberhausen Bermensfeld- nahe Centro

46047 Oberhausen, Nordrhein-Westfalen
450.000 € Kaufpreis
Wohnfläche
380 m²
Zimmer
18
Garten
Keller

Kaufpreis

Kaufpreis 450.000 €
Kaufpreis pro m²1184,21 €
Maklerprovision4,76 % inkl. MwSt vom not. Kaufpreis

Wohnfläche, Grundstück & Bausubstanz

Wohnfläche380 m²
Grundstücksfläche449 m²
Zimmer18
Baujahr1962
Verfügbar ab Keine Angabe
ZustandTeil Vollrenoviert

Beschreibung der Immobilie

Zum Verkauf steht ein freistehendes Mehrfamilienhaus in attraktiver Lage von Oberhausen-Bermensfeld, unweit des beliebten Westfield Centro Oberhausen. Die Immobilie wurde 1962 in massiver Bauweise errichtet und bietet insgesamt sechs Wohneinheiten mit einem soliden und gut vermietbaren Wohnungszuschnitt.

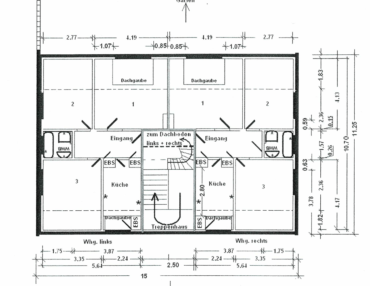
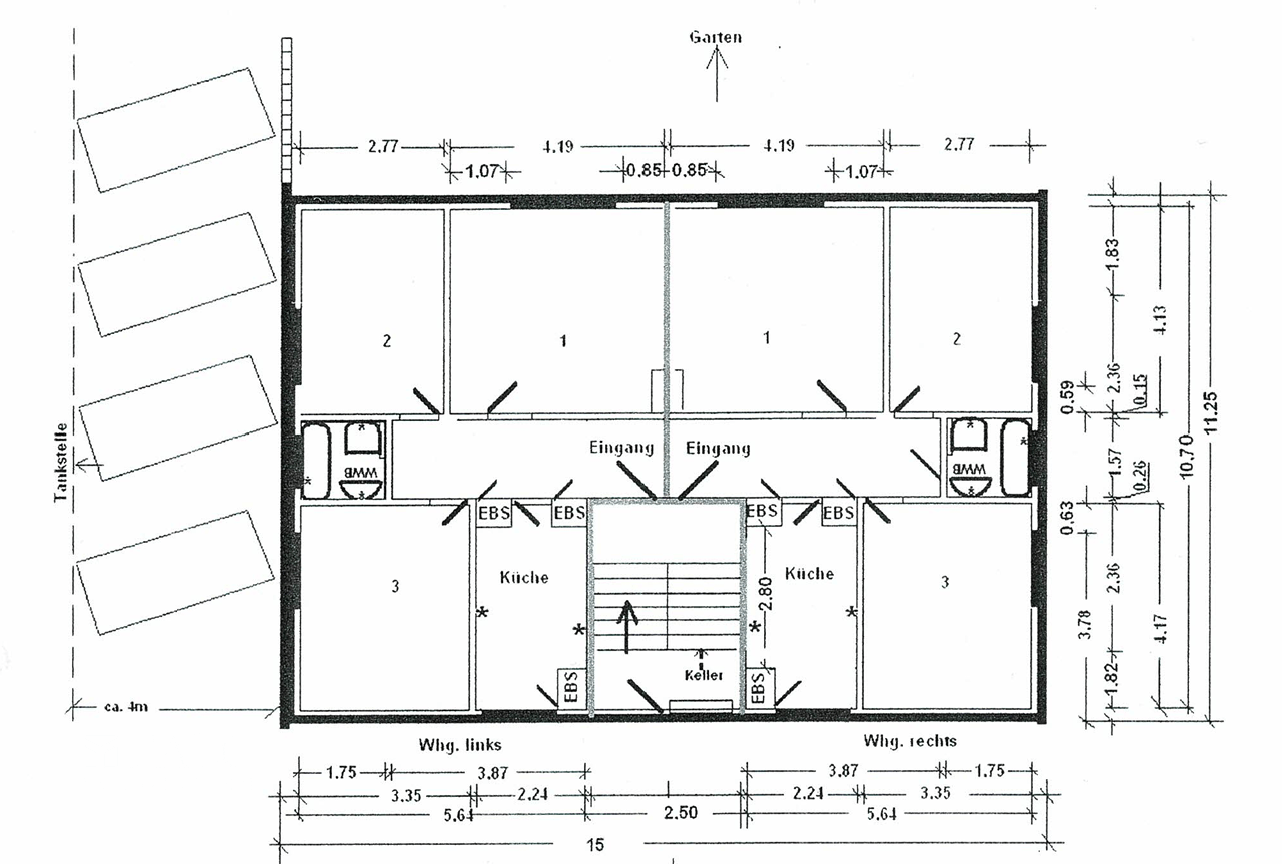
Das Gebäude verfügt über zwei Vollgeschosse zuzüglich einem Dachgeschoss mit jeweils zwei Wohnungen pro Etage. Sämtliche Wohnungen sind als praktische 3-Zimmer-Wohnungen mit separater Küche und Tageslichtbad ausgeführt – ein Grundriss, der sowohl bei Singles, Paaren als auch kleinen Familien dauerhaft gefragt ist.

Die Wohnflächen verteilen sich wie folgt:
• Erdgeschoss: 2 Wohnungen mit jeweils ca. 64 m²
• 1. Obergeschoss: 2 Wohnungen mit jeweils ca. 64 m²
• Dachgeschoss: 2 Wohnungen mit jeweils ca. 62 m²

Alle Einheiten verfügen zusätzlich über einen eigenen Kellerraum. Darüber hinaus steht insbesondere für die Dachgeschosswohnungen ein großzügiger Trockenraum im Dachgeschoss zur Verfügung.

Das Haus ist voll unterkellert und bietet mit sechs Außenstellplätzen direkt am Gebäude einen weiteren Pluspunkt für Mieter und Kapitalanleger. Ergänzt wird das Angebot durch einen gemeinschaftlich nutzbaren Gartenbereich.

Die Immobilie befindet sich in einem einfachen, insgesamt gepflegten Zustand. Innerhalb des Hauses zeigt sich ein gemischter Ausstattungsstandard: Einige Wohnungen bzw. Bäder wurden bereits modernisiert, andere befinden sich noch in einem eher ursprünglichen Zustand. Dadurch ergibt sich für Kapitalanleger zusätzliches Wertsteigerungs- und Entwicklungspotenzial.

Beheizt wird das Gebäude über eine Gaszentralheizung aus dem Jahr 1992.

Die Immobilie ist als klassisches Mehrfamilienhaus mit gut vermietbaren Wohnungsgrößen und Grundrissen interessant für Kapitalanleger.

Die aktuelle Ist-Jahresnettokaltmiete beträgt derzeit:
22.200 € p.a.

Durch bereits durchgeführte Mietanpassungen um 20 % erhöht sich die Soll-Jahresnettokaltmiete ab dem 01.06. auf:
26.640 € p.a.

Trotz der Mietanpassungen liegt das Mietniveau weiterhin unterhalb des örtlichen Mietspiegels, sodass für den Erwerber auch künftig noch weiteres Entwicklungspotenzial vorhanden sein kann.

Dieses freistehende Mehrfamilienhaus mit 6 Wohneinheiten bietet eine interessante Gelegenheit für Kapitalanleger, die eine solide Bestandsimmobilie in gefragter Lage von Oberhausen suchen.

Ausstattungsmerkmale

BodenFliesen, Teppich, Laminat, Kunststoff
GartenJa
KellerJa
• Freistehendes Mehrfamilienhaus
• 6 Wohneinheiten
• Alle Wohnungen als 3-Zimmer-Wohnungen
• Tageslichtbäder
• Teilweise modernisierte Bäder
• Doppelt verglaste Kunststofffenster
• Massive Bauweise
• Betondecken
• Voll unterkellert
• Je Wohnung eigener Kellerraum
• Großer Trockenraum
• 6 Außenstellplätze
• Gemeinschaftsgarten
• Bodenbeläge je nach Wohnung: Fliesen, Laminat, PVC oder Teppich

Energie

G
Energieeffizienzklasse G · 206 kWh/(m²*a)
EnergieausweistypVerbrauch
Ausstellungsdatum04. 01. 2021
Gültig bis03.01.2031
EnergieeffizienzklasseG
Energieverbrauchkennwert206 kWh/(m²*a)
Wesentlicher EnergieträgerGas
Energieträger/Befeuerung Gas

Karte wird geladen...
46047 Oberhausen – Nordrhein-Westfalen

Sonstige Informationen

Der Energieausweis liegt zur Besichtigung vor.

Gerne vereinbaren wir einen persönlichen Besichtigungstermin mit Ihnen.
Bei Interesse geben Sie bitte immer Ihre vollständigen Kontaktdaten an.

Die Objektbeschreibung beruht ganz oder zum Teil auf Angaben des Eigentümers. Für die Richtigkeit oder Vollständigkeit übernehmen wir keine Gewähr.

Sie überlegen Ihre Immobilie zu verkaufen? Als regionaler und erfahrener Immobilienexperte bieten wir Ihnen unseren kompletten Service und unterstützen Sie gerne beim Immobilienverkauf.

Gerne beraten wir Sie auch persönlich in unserem Büro in:
50127 Bergheim
Köln-Aachener-Straße 114
kostenlose Hotline: 0800 646 0 646
Ansprechpartner/in: Herr Tim Gladbach
FALC Immobilien GmbH & Co. KG
Humperdickstr. 3, 53773 Hennef (Sieg)