Exklusive 2‑Zimmer‑Wohnung mit schließbarer Loggia, Parkett & Designküche – Erstbezug Darmstdt‑Mitte

Eschollbrücker Straße 12 64295 Darmstadt, Hessen
Frei ab: nach Absprache
1.350 € Kaltmiete
19,62 € Preis/m² ca.
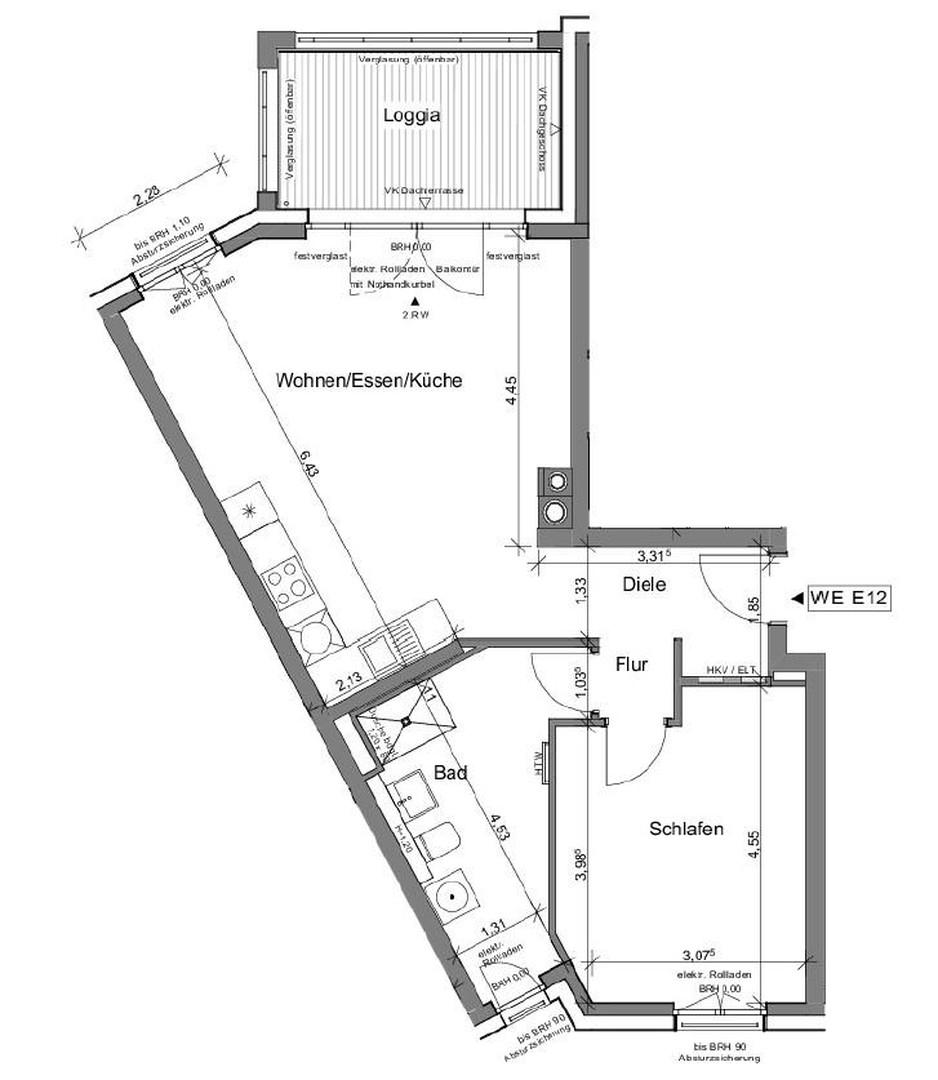
Wohnfläche
68,82 m²
Zimmer
2
Etage
4
Einbauküche
Balkon
Terrasse
Fahrstuhl
Keller

Mietpreis & Nebenkosten

Kaltmiete (netto)1.350 €
Nebenkosten 200 €
Kaution 4.050 €
Stellplatz Tiefgarage Miete120 €

Wohnfläche, Grundstück & Bausubstanz

Wohnfläche68,82 m²
Zimmer2
Etagen5
Stockwerk4
Baujahr2025
Verfügbar ab nach Absprache
ZustandErstbezug

Beschreibung der Immobilie

Diese exklusive 2‑Zimmer‑Wohnung befindet sich im 4. Obergeschoss des Neubauensembles HERZOGHÖFE im beliebten Darmstädter Verlegerviertel. Der Erstbezug bietet Ihnen ein modernes, energieeffizientes Zuhause mit hochwertiger Ausstattung, Aufzug, Tiefgarage und einer geschützten West‑Loggia, die sich dank bodentiefer Schiebeelemente vollständig öffnen oder schließen lässt – ideal für ganzjährige Nutzung.

Der großzügige Wohn‑ und Essbereich mit halboffener Küche, das helle Schlafzimmer sowie das komfortable Tageslichtbad schaffen ein stilvolles Wohnambiente. Die Wohnung überzeugt durch klare Linien, hochwertige Materialien und eine moderne Gebäudetechnik nach Effizienzhaus‑55‑Standard.

Ausstattungsmerkmale

KücheEinbauküche
Bad1
Bad (Ausstattung)Dusche
BodenFliesen, Parkett
Balkone1
Terrassen0
Fahrstuhl
KellerJa
Balkon, Keller, Fahrstuhl, Duschbad, Einbauküche, Parkett, Fliesen

Bemerkungen:
Erstbezug im hochwertigen Neubauensemble HERZOGHÖFE

Große West‑Loggia, komplett schließbar durch bodentiefe Fenster – perfekt für Übergangszeiten

Parkettboden in allen Wohnräumen mit angenehmer Fußbodenheizung

Hochwertige Einbauküche

Tageslichtbad mit bodengleicher Dusche, Markenkeramik & Waschmaschinenanschluss

Modernes Blockheizkraftwerk & effiziente Dämmung (Effizienzhaus 55)

Elektrische Rollläden an allen Fenstern

Video‑Gegensprechanlage

Aufzug bis in alle Etagen

Tiefgaragenstellplatz (Einzelstellplatz)

Kellerraum inklusive

Energie

B
Energieeffizienzklasse B · 54 kWh/(m²*a)
EnergieausweistypBedarfsausweis
EnergieeffizienzklasseB
Endenergiebedarf54
Heizungsart Fußbodenheizung
Energieträger/Befeuerung Gas

Karte wird geladen...
Eschollbrücker Straße 12
64295 Darmstadt – Hessen

Lage & Infrastruktur

Die Wohnung liegt im begehrten Verlegerviertel im Herzen von Darmstadt – zentral, urban und dennoch angenehm ruhig. Die Innenstadt, Alt‑Bessungen und der Hauptbahnhof sind in wenigen Minuten erreichbar. Einkaufsmöglichkeiten, Restaurants, Cafés und der ÖPNV befinden sich in unmittelbarer Nähe.

1,5 km zum Luisenplatz / Stadtzentrum

3 Minuten zu Fuß zur Albert‑Schweitzer‑Anlage

10 Minuten zu Fuß zum Prinz‑Emil‑Garten

Ideale Anbindung an A5 & A67

Kurze Wege zur Technischen Hochschule Darmstadt und zum Frankfurter Flughafen

Die Lage verbindet urbanes Leben mit hoher Wohnqualität – perfekt für Berufstätige, Paare und Pendler.
Infrastruktur (im Umkreis von 5 km):
Apotheke, Lebensmittel-Discount, Allgemeinmediziner, Kindergarten, Grundschule, Hauptschule, Realschule, Gymnasium, Gesamtschule, Öffentliche Verkehrsmittel

Sonstige Informationen

Heizungsart: Fußbodenheizung
Energieträger: Gas

Die Wohnung wird erstmals vermietet.

Haustiere nach Absprache.

Mindestmietdauer: 24 Monate

Nichtraucherwohnung.

Makleranfragen nicht erwünscht. Nach § 7 UWG sind unaufgeforderte Kontaktaufnahmen durch Makler ohne ausdrückliche Einwilligung des Empfängers verboten!

ohne-makler (OM) ist weder Anbieter noch Vermittler der Immobilie. OM betreibt eine Plattform für Immobilieneigentümer, die unter anderem die gleichzeitige Veröffentlichung einzelner Inserate auf mehreren Immobilienportalen ermöglicht. Die Inhalte dieser Inserate werden ausschließlich von Dritten verantwortet. Für die Richtigkeit, Vollständigkeit oder Rechtmäßigkeit der Angaben übernimmt OM keine Haftung. Hinweise auf mögliche Rechtsverstöße können jederzeit gemeldet werden und werden nach Prüfung umgehend bearbeitet.
Ansprechpartner/in: Privat von Jürgen Schwenk
OM PropTech GmbH
Humboldtstraße 25a, 21509 Glinde

Weitere Angebote in Darmstadt