Exklusive Dachwohnung mit Blick auf den Main in ruhiger Lage – VB

97845 Erlach am Main, Bayern
Frei ab: nach Absprache
289.000 € Kaufpreis
Wohnfläche
92 m²
Zimmer
3,5
Etage
2
Einbauküche
Garten
Keller

Kaufpreis

Kaufpreis 289.000 €
Hausgeld150 €
Maklerprovisionkeine Provision, courtagefrei

Wohnfläche, Grundstück & Bausubstanz

Wohnfläche92 m²
Zimmer3,5
Etagen3
Stockwerk2
Baujahr2000
Verfügbar ab nach Absprache
ZustandTeil Vollsaniert

Beschreibung der Immobilie

Sie suchen das Besondere?

Diese charmante Dachgeschosswohnung ist ein echtes Unikat – in jeder Hinsicht.
Wohnen wie im Urlaub, aber jeden Tag. Ob als Rückzugsort vom Großstadttrubel, gemütliches Familiennest oder stilvolles Anlageobjekt - ob zur Vollvermietung oder für die Vermietung an Feriengäste (z. B. AirBnB).

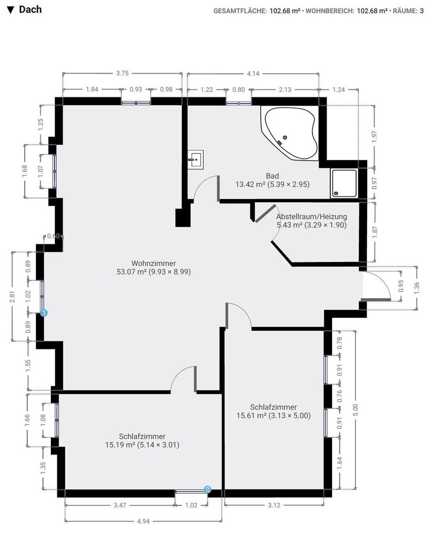
Die gesamte Grundfläche (inkl. aller Flächen unter Dachschrägen, Abstellräume etc.) beträgt 102 m². Die Wohnfläche nach WoFlV beträgt 92 m² .

Lage & Ausblick
Während Sie in Ihrer modernen Küche kochen, beobachten Sie die Lastkähne, wie sie gemächlich dem Horizont entgegenziehen! Die Wohnung befindet sich im obersten Geschoss eines massiv gebauten 3-Parteien-Hauses (Baujahr 2000, umfassend und hochwertig saniert 2022-2026).

Der Mainuferweg ist nur einen Steinwurf entfernt – perfekt für Motorboot, Stand-up-Paddling, Fahrradtouren oder entspannte Spaziergänge.

Raumaufteilung & Ausstattung
Der durchdachte Grundriss bietet Ihnen einen großzügigen, offenen Wohn-Ess-Kochbereich mit viel Licht und Charme. Zwei ruhige Schlafzimmer – darunter ein komplett ausgestattetes Kinderzimmer mit Stockbett – sowie ein modernes Bad mit großer Wohlfühlbadewanne und separater Dusche bieten Komfort für jede Lebenssituation. Ein geräumiger Technik- und Abstellraum ergänzt die Wohnfläche praktisch und funktional.

Die Wohnung befindet sich im Dachgeschoss (2. OG) – nicht barrierefrei. Der Aufstieg lohnt sich aber: Sie werden täglich mit Ruhe, Licht und herrlichem Blick auf den Main und ins Grüne belohnt.


Außenbereiche & Freizeitwert
Zwar gibt es (noch) keinen Balkon, dafür aber einen großen Gemeinschaftsgarten mit überdachten Sitzgelegenheiten und privatem Zugang zu einem öffentlichen Spielplatz – ideal für Familien.

An zwei Seiten der Wohnung sind bereits Balkontüren vorhanden. Dadurch besteht die Option, auf der Süd- oder Westseite einen Balkon nachträglich anzubauen. Die Umsetzung erfolgt nach Absprache und unter Einhaltung der erforderlichen Genehmigungen sowie Beschlüsse der WEG.

Die Region ist ein echtes Eldorado für Outdoor-Fans:

Rennradfahrer finden auf dem gut ausgebauten Mainradweg perfekte Bedingungen für ausgedehnte Touren.

Mountainbike-Enthusiasten kommen auf den Spessart-Trails voll auf ihre Kosten – abwechslungsreiche Routen mit Natur pur, direkt vor der Haustür.

Der Main lockt für sommerliche Abkühlung und alle Arten von Wassersport.

Technik & Komfort
Voll möbliert und mit vollständigem Inventar – so gelingt der entspannte Einzug oder die sofortige Vermietung.

Flexibel heizen: Gasetagenheizung, Holzofen und eine leistungsstarke Wärmepumpe/Klimaanlage, die die Wohnung selbst an Hochsommertagen in eine kühle Wohlfühloase verwandelt.
Sie entscheiden selbst, wie Sie heizen möchten: klassisch mit Gas, modern mit Strom über die Wärmepumpe – oder ganz gemütlich mit dem Holzofen.

Dank moderner 3-fach-Verglasung, isoliertem Dach und der hervorragenden Dämmung durch die massive Porenbetonbauweise bleiben die Nebenkosten angenehm niedrig.

Moderne Design-Einbauküche mit Thermomix, umfassend ausgestattet mit Geschirr, Gläsern und Küchenutensilien.

Komfortausstattung: Smarte Steuerung von Heizung und Klimaanlage via Internet, Waschtrockner, Staubsaugerroboter, elektrisch betriebene und solarunterstützte Dachrollos sowie eine NUKI-fähige Gegensprechanlage, um Feriengästen schlüsselfreien Zugang zu gewähren. DECT 301 Heizungsregler in allen Räumen.

Ausstattungsmerkmale

KücheEinbauküche
Bad1
Bad (Ausstattung)Dusche
BodenFliesen
GartenJa
KellerJa
Garten, Keller, Duschbad, Einbauküche, Kamin, Fliesen

Bemerkungen:
Zusammenfassung auf einen Blick:

•Lage: Dachgeschoss (2. OG)
•Grundfläche 102m². Wohnfläche nach WoFlV: 92 m²
•Zimmer: 3.5 (2 Schlafzimmer + großer Wohn-/Essbereich)
•Eigentumswohnung: (Teil einer 3-Parteien-WEG)
•Bad: geräumige 13 m² - mit hochwertiger Wohlfühlbadewanne sowie separater Dusche
•Baujahr: 2000, umfassend saniert 2022-2026 (Fenster, Böden, Klima, Elektrik, Küche, Bad...)
•Heizung/Klimatisierung: Gasetagenheizung, Holzofen sowie eine leistungsstarke Klimaanlage, die im Winter auch als Wärmepumpe genutzt werden kann – heizen mit Strom!
•Fenster: 3-fach-Verglasung
•Internet: leistungsfähiger Internetanschluss (DSL)
•Dämmung: sehr gut (Porenbeton + isoliertes Dach), niedrige Nebenkosten
•Keller: großer Gemeinschaftskeller (für Fahrräder etc.) sowie Sandstein-Gewölbekeller
•Ausstattung: Voll möbliert inkl. Design-Küche, Küchenutensilien, Bettwaren, Waschtrockner, Staubsaugerroboter
•Technik: Siedle Gegensprechanlage (NUKI-ready), solarbetriebene Dachrollos, Smarte Heizungs- und Klimaanlagensteuerung via Internet
•Außenbereich: Gemeinschaftsgarten mit überdachten Sitzgelegenheiten & privatem Zugang zum öffentlichen Spielplatz
•Parkplatz: Außenstellplätze auf dem Grundstück vorhanden, Garagenbau denkbar.
•Barrierefreiheit: nein – Wohnung ist nicht barrierefrei, Zugang nur über Treppe
• Gemeinschaftskonto (WEG) mit Rücklagen für die nächsten Investitionen vorhanden


Fazit:
Ob Hauptwohnsitz, Zweitwohnsitz oder Investition – diese Wohnung ist "ready-to-go".

Stil trifft Substanz – mitten im wunderschönen Spessart.

Das Mainufer und der traumhafte Ausblick warten schon auf Sie!

Energie

A
Energieeffizienzklasse A · 43 kWh/(m²*a)
EnergieausweistypVerbrauch
EnergieeffizienzklasseA
Energieverbrauchkennwert43 kWh/(m²*a)
Heizungsart Etagenheizung
Energieträger/Befeuerung Gas

Karte wird geladen...
97845 Erlach am Main – Bayern

Lage & Infrastruktur

Willkommen in Erlach am Main, einem charmanten Dörfchen im Herzen des Spessarts – ruhig, ursprünglich, naturnah – und doch nicht ab vom Schuss.

Die zwei nächstgelegenen Städte, Marktheidenfeld und Lohr am Main (jeweils ca. 12.000 Einwohner), sind perfekt erreichbar – mit dem Fahrrad brauchen Sie nur rund 25 Minuten auf dem wunderbar ausgebauten Mainradweg.

Zwei große Arbeitgeber-Cluster (u. a. Bosch, Warema) machen die Region auch beruflich attraktiv.

Einkaufsmöglichkeiten? Der nächste Supermarkt ist in 10 Autominuten erreichbar, zur Autobahn sind es ca. 20 Minuten.

Vor Ort gibt es Natur vom Feinsten: Frische Luft, idyllische Mainwiesen, Vogelgezwitscher und ein sternenklarer Himmel, wie man ihn anderswo nur noch aus Kindheitserinnerungen kennt.

Der Spessart – Bayerns größtes zusammenhängendes Waldgebiet – liegt direkt vor der Tür und lädt zu ausgedehnten Spaziergängen, Wanderungen oder Fahrradtouren ein.

Wer es kulinarisch reizvoll mag: Direkt im Ort erwarten Sie der Maintalbauernhof, der mit regionaler Küche aufwartet. Ein idyllischer Wanderweg führt vom Main hinauf zum fürstlichen Forsthaus Aurora mit malerischem Biergarten.
Infrastruktur (im Umkreis von 5 km):
Kindergarten, Öffentliche Verkehrsmittel

Sonstige Informationen

Heizungsart: Etagenheizung
Energieträger: Gas

Besonderheit & Verkauf:

Dieses Objekt ist so besonders, dass es in dieser Form kaum ein zweites Mal zu finden ist. Wer hier einzieht, bekommt nicht nur vier Wände mit Dach – sondern ein maßgeschneidertes Lebensgefühl: entspannt, entschleunigt, naturnah. Ideal zum Einziehen & Durchatmen oder als renditestarke Vermietung.

Eine Übernahme der Wohnung ist nach Vereinbarung flexibel und kurzfristig möglich.

Der Verkauf erfolgt ausschließlich inklusive Inventar– das bringt nicht nur Komfort, sondern auch potenzielle steuerliche Vorteile (Grunderwerbsteuerreduktion durch separate Inventarliste).

Der Preis ist marktgerecht kalkuliert und orientiert sich an der aktuellen Nachfrage vergleichbarer Objekte in der Region. Aufgrund der hohen Energieeffizient, hochwertigen Sanierung und Vollmöblierung bietet das Objekt ein ausgezeichnetes Preis-Leistungs-Verhältnis. Eine Verhandlung im fairen Rahmen ist selbstverständlich möglich.

Bei ernsthaftem Interesse melden Sie sich bitte mit vollständigen Kontaktdaten:

- vollständiger Name
- vollständige Wohnadresse
- Telefonnummer
- E-Mail
- gewünschte Nutzungsart der Wohnung

Wir bitten um Verständnis, dass wir nur Anfragen mit vollständigen Kontaktdaten beantworten können.

Diskretion, Seriosität und echtes Interesse sind erwünscht.

#####################################

Makleranfragen zur Vermittlung qualifizierter Interessenten sind willkommen. Bitte beachten Sie: Es wird kein Makler-Alleinauftrag erteilt. Grundlage ist ein von uns formulierter, nicht-exklusiver Provisionsvertrag, der ausschließlich im Erfolgsfall (nach notarieller Beurkundung des Kaufvertrags) wirksam wird.



#####################################


Alle Angaben in diesem Exposé wurden nach bestem Wissen erstellt, eine Haftung für die Richtigkeit und Vollständigkeit kann jedoch nicht übernommen werden.

ohne-makler (OM) ist weder Anbieter noch Vermittler der Immobilie. OM betreibt eine Plattform für Immobilieneigentümer, die unter anderem die gleichzeitige Veröffentlichung einzelner Inserate auf mehreren Immobilienportalen ermöglicht. Die Inhalte dieser Inserate werden ausschließlich von Dritten verantwortet. Für die Richtigkeit, Vollständigkeit oder Rechtmäßigkeit der Angaben übernimmt OM keine Haftung. Hinweise auf mögliche Rechtsverstöße können jederzeit gemeldet werden und werden nach Prüfung umgehend bearbeitet.
Ansprechpartner/in: Privat vom Eigentümer
OM PropTech GmbH
Humboldtstraße 25a, 21509 Glinde

Weitere Angebote in Neustadt