Kleines Familiendomizil in Feucht

90537 Feucht
835.676 € Kaufpreis
Wohnfläche
118 m²
Zimmer
4
Offene Küche

Kaufpreis

Kaufpreis 835.676 €

Wohnfläche, Grundstück & Bausubstanz

Wohnfläche118 m²
Grundstücksfläche580 m²
Zimmer4
Etagen1
Baujahr2027
Verfügbar ab Keine Angabe
ZustandProjektiert

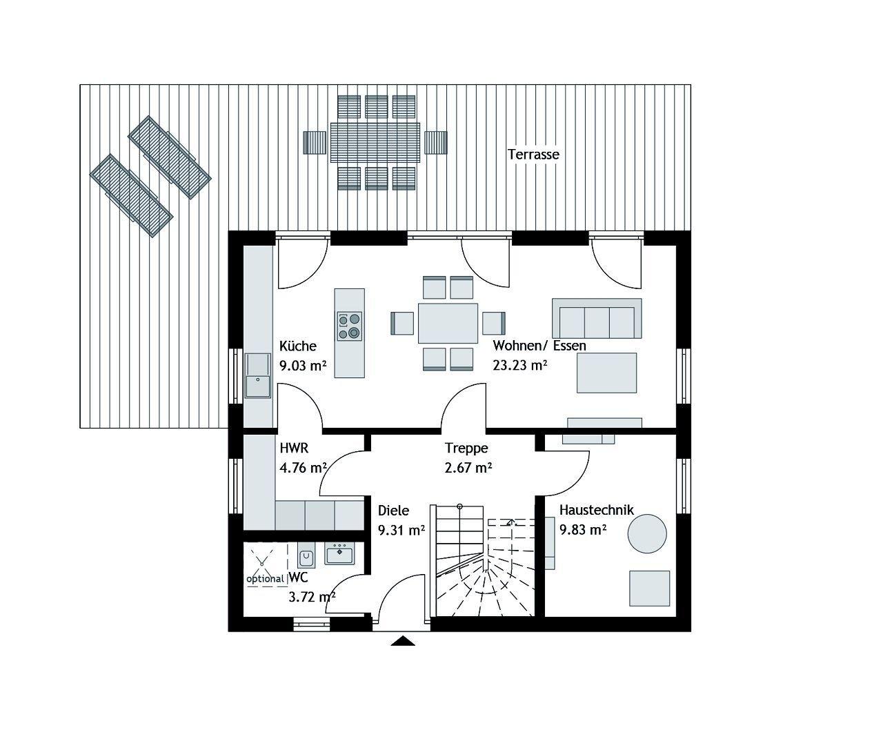
Beschreibung der Immobilie

Dieses durchdacht geplante Einfamilienhaus mit klassischem Satteldach bietet alles, was Familien brauchen:

✓ Lichtdurchfluteter, offener Wohn-/Ess-/Kochbereich
✓ Praktischer Hauswirtschaftsraum direkt neben der Küche
✓ Gäste-WC (optional als Duschbad)
✓ Eingangsbereich und Haustechnikraum
✓ 2 helle Kinderzimmer
✓ Großzügiges Elternschlafzimmer
✓ Modernes Familienbad

Ihre Vorteile:
- Kurze Bauzeit
- Einzigartige STREIF Services
- Umfangreiche Inklusiv-Leistungen
- Komplette Gestaltungsfreiheit
- Bewährte Qualität

Die hohe Wertigkeit und Langlebigkeit eines STREIF-Energiespar-Hauses wird durch zahlreiche Auszeichnungen, Qualitätssiegel und Gütesiegel unabhängiger Institute und Verbände dokumentiert.

Der Angebotspreis bezieht sich auf die Standard-Ausbaustufe "Fast-Fertig +". Spachtel-, Tapezier- und Malerarbeiten, Bodenbeläge sowie Innentüren sind in diesem Fall nicht enthalten, können jedoch auf Wunsch von STREIF ausgeführt oder als Eigenleistung erbracht werden.

Sie sind interessiert? Kontaktieren Sie mich unter 0173/3678139 für weitere Informationen!

Ausstattungsmerkmale

KücheOffene Küche
Bad1
Bad (Ausstattung)Dusche, Wanne, Fenster
STREIF-Häuser sind Energiesparhäuser mit Außenwänden im Passivhausstandard und einer effizienten Heiztechnik, die eine integrierte Wohnraumlüftung und Wärmerückgewinnung bietet. Dies gewährleistet nicht nur einen geringen Energieverbrauch, sondern auch ein fantastisches Raumklima.

Die Leistungen von STREIF sind umfangreich und bereits im Grundpreis enthalten:
- 20-monatige Festpreisgarantie
- Energieeffizienzhaus KfW 40 EE im Standard
- Individuelle Grundrissgestaltung und Raumaufteilung inklusive
- Fundamentplatte inklusive
- STREIF-Luft-Luft-Wärmepumpe mit integrierter Lüftungsanlage und Wärmerückgewinnung
- Haustür von KERA und Fenster von Porta/Kömmerling
- Massivholz-Geschosstreppe aus eigener Produktion
- uvm.

Energie

Energietyp KfW-40
Heizungsart Zentralheizung
Energieträger/Befeuerung Luft-Wärme-Pumpe

Karte wird geladen...
90537 Feucht

Lage & Infrastruktur

Feucht: Wo Abenteuer im Wald und City-Life zusammenpassen

Suchen Sie den perfekten Ort, an dem Ihre Kinder sicher aufwachsen können, ohne dass Sie auf die Vorzüge der Großstadt verzichten müssen? Willkommen in Feucht - Ihrer modernen Kleinstadt mit Herz im Nürnberger Land.

Natur pur direkt vor der Haustür: Eingebettet im Lorenzer Reichswald wird der Sonntagsausflug zum Heimspiel. Ob Baumhäuser bauen, Radfahren oder Entdecken - Naturliebhaber finden hier ihr Paradies.

Geschichte zum Anfassen: Vom Zeidlerschloss aus dem 16. Jahrhundert bis zur süßen Tradition der Honiggewinnung für die Nürnberger Lebkuchen - hier wachsen Kinder in einem geschichtsträchtigen und charmanten Umfeld auf.

In Rekordzeit in der City: Dank der drei S-Bahn-Haltepunkte sind Sie in nur 9 bis 15 Minuten am Nürnberger Hauptbahnhof. Perfekt für Pendler, die abends schnell wieder bei ihren Lieben sein wollen. Auch die B8 und A9 halten Sie maximal flexibel.

Alles da für den Familienalltag: Kurze Wege sind Gold wert. Feucht bietet Ihnen eine lückenlose Nahversorgung mit Supermärkten und Fachgeschäften sowie eine erstklassige Auswahl an Kindergärten, Grund- und weiterführenden Schulen.

Die perfekte Balance: Mit rund 14.000 Einwohnern genießen Sie hier eine gewachsene Gemeinschaft und eine hervorragende Infrastruktur, kombiniert mit einer Wohnqualität, die Raum zum Atmen lässt.

In Feucht schlagen Sie Wurzeln an einem Standort, der heute alles bietet und auch in Zukunft mit Ihren Plänen Schritt hält.

Hinweis:
Der Weg zu Ihrem Traumhaus beginnt mit dem richtigen Grundstück. Damit ich Sie bestmöglich und individuell beraten kann, erhalten Sie Informationen zu verfügbaren Grundstücken nach einem persönlichen Gespräch. So stellen wir gemeinsam sicher, dass alles perfekt zu Ihren Vorstellungen und Ihrem Bauvorhaben passt.

Lassen Sie uns gemeinsam den ersten Schritt gehen: Ich freue mich auf Ihren Anruf unter 0173 / 3678139 für ein unverbindliches Kennenlernen. Zusammen finden wir heraus, ob dieses Grundstück die Basis für Ihr zukünftiges Zuhause werden kann - oder ob es noch passendere Möglichkeiten für Sie gibt.

Sonstige Informationen

Angegebene Grundstücke (Grundstückspreis ist im Gesamtpreis enthalten) werden von Dritten angeboten und separat erworben. Zusätzliche Erwerbs- und Baunebenkosten müssen noch hinzugerechnet werden, hierüber beraten wir gerne.

Die Hausabbildungen und die Bilder der Inneneinrichtung zeigen Extras, die nicht im angegebenen Kaufpreis inbegriffen sind.

Interessiert? Kontaktieren Sie mich und vereinbaren ein erstes Gespräch unter 0173/3678139.
Ansprechpartner/in: Herr Frank Bohnert
06551-12 0
STREIF Haus GmbH
Josef-Streif-Straße 1, 54595 Weinsheim

Weitere Angebote in Feucht