Architektenhaus in Berlin-Wilhelmshagen

12589 Berlin, Berlin
Frei ab: nach Absprache
925.000 € Kaufpreis
Wohnfläche
200 m²
Zimmer
6
Einbauküche
Balkon
Terrasse
Garten

Kaufpreis

Kaufpreis 925.000 €
Maklerprovisionkeine Provision, courtagefrei

Wohnfläche, Grundstück & Bausubstanz

Wohnfläche200 m²
Grundstücksfläche668 m²
Zimmer6
Etagen2
Baujahr2002
Verfügbar ab nach Absprache
ZustandGepflegt

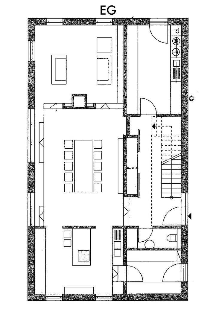
Beschreibung der Immobilie

Das Haus ist hell und klar gegliedert. Hervorzuheben ist der große, offene Wohnbereich mit Küche, großzügigem Essplatz und Wohnzimmer. Zwischen Essbereich und Wohnzimmer befindet sich ein zweiseitiger Kamin. Die Deckenhöhe im Essbereich und in der Küche beträgt 3m.
Das Gründach unterstützt das Haus, eine klimatisch angenehme Atmosphäre zu schaffen.

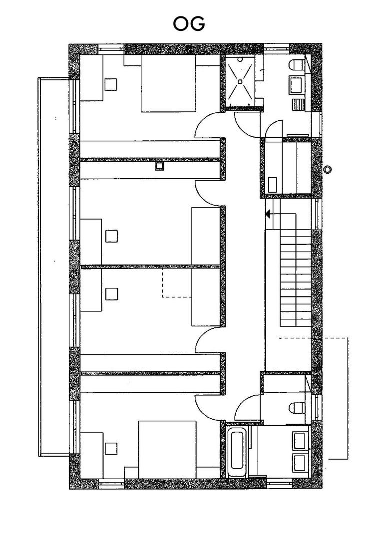
Im OG befinden sich ebenfalls sehr helle Zimmer mit bodentiefen Fenstern. Jedes Zimmer hat direkten Zugang zum Balkon. Ebenfalls im OG sind die Badezimmer untergebracht. Eines mit gefliester Dusche, das andere mit Badewanne.

Auf dem Grundstück gibt es mehrere hochwertige Schuppen sowie ein Fahrradport. Eine Wallbox ist in Betrieb. Zwei großzügige Terrassen laden zum Verweilen ein.

Ausstattungsmerkmale

KücheEinbauküche
Bad2
Bad (Ausstattung)Dusche, Wanne
BodenFliesen
Balkone1
Terrassen1
GartenJa
Balkon, Terrasse, Garten, Vollbad, Duschbad, Einbauküche, Gäste-WC, Kamin, Fliesen, Sonstiges (s. Text)

Bemerkungen:
Die Böden im Erdgeschoss sind aufwändig gefliest. Die Treppe, Flur und die Zimmer im OG sind mit Linoleum belegt. Die Badezimmer im OG sind gefliest.

Energie

B
Energieeffizienzklasse B · 63 kWh/(m²*a)
EnergieausweistypVerbrauch
EnergieeffizienzklasseB
Energieverbrauchkennwert63 kWh/(m²*a)
Heizungsart Zentralheizung
Energieträger/Befeuerung Gas

Karte wird geladen...
12589 Berlin – Berlin

Lage & Infrastruktur

Das Haus im Südosten Berlins steht in ruhiger Lage, jeweils 10 min zu Fuß vom S-Bahnhof Wilhelmshagen und der Grundschule mit Kindergarten entfernt. Supermärkte und Apotheke sowie Ärzte befinden sich innerhalb 1 km Umkreis. Das Strandbad Müggelsee ist 10 min mit dem Fahrrad entfernt. Hinter dem Haus beginnt das Naturschutzgebiet Püttberge - im Winter ein beliebter Rodelberg.
Infrastruktur (im Umkreis von 5 km):
Apotheke, Lebensmittel-Discount, Allgemeinmediziner, Kindergarten, Grundschule, Öffentliche Verkehrsmittel

Sonstige Informationen

Heizungsart: Zentralheizung
Energieträger: Gas


Makleranfragen nicht erwünscht. Nach § 7 UWG sind unaufgeforderte Kontaktaufnahmen durch Makler ohne ausdrückliche Einwilligung des Empfängers verboten!

ohne-makler (OM) ist weder Anbieter noch Vermittler der Immobilie. OM betreibt eine Plattform für Immobilieneigentümer, die unter anderem die gleichzeitige Veröffentlichung einzelner Inserate auf mehreren Immobilienportalen ermöglicht. Die Inhalte dieser Inserate werden ausschließlich von Dritten verantwortet. Für die Richtigkeit, Vollständigkeit oder Rechtmäßigkeit der Angaben übernimmt OM keine Haftung. Hinweise auf mögliche Rechtsverstöße können jederzeit gemeldet werden und werden nach Prüfung umgehend bearbeitet.
Ansprechpartner/in: Privat vom Eigentümer
OM PropTech GmbH
Humboldtstraße 25a, 21509 Glinde

Weitere Angebote in Berlin