Der optimale Weg zum richtigen Grundstück !

66780 Rehlingen-Siersburg
Frei ab: nach Vereinbarung
467.000 € Kaufpreis
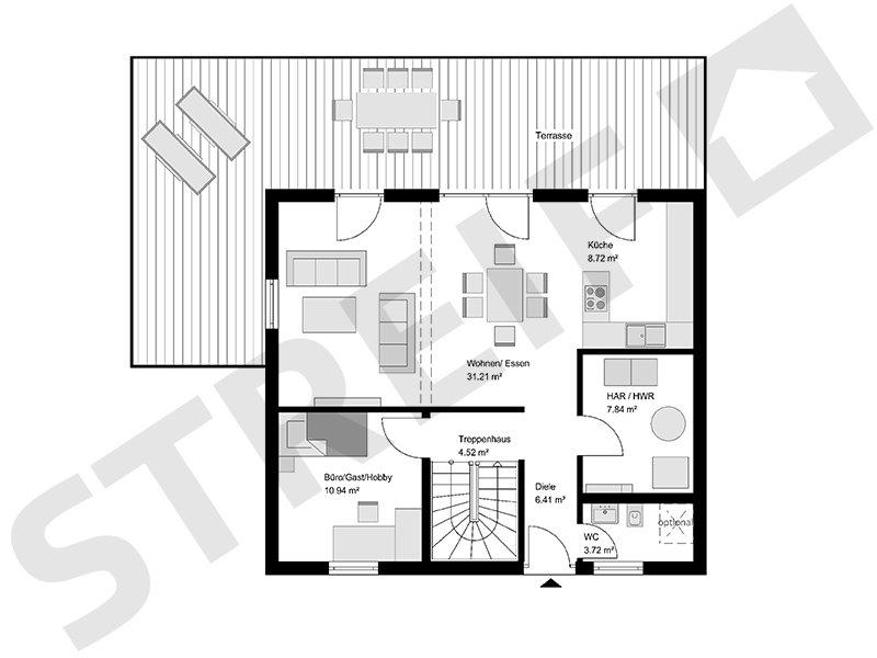
Wohnfläche
152 m²
Zimmer
5
Offene Küche
Terrasse
Stellplatz

Kaufpreis

Kaufpreis 467.000 €
Stellplatz Garage Kaufpreis9.000 €

Wohnfläche, Grundstück & Bausubstanz

Wohnfläche152 m²
Grundstücksfläche750 m²
Zimmer5
Etagen2
Baujahr2027
Verfügbar ab nach Vereinbarung
ZustandErstbezug

Beschreibung der Immobilie

Der Stellenwert des Grundstücks für Ihr Zuhause

Zweifellos spielen die Beschaffenheit und Lage des Grundstücks eine ausschlaggebende Rolle bei der Planung ihres zukünftigen Zuhauses. Angefangen bei der Infrastruktur über die Erreichbarkeit der Bildungseinrichtungen bis zum wichtigsten Aspekt Wohlfühlumgebung spielen ganz individuelle Anforderungen für Sie eine ausschlaggebende Rolle bei der Entscheidung wo Sie Ihre Zukunft verbringen wollen.

Ihr Haus können wir planen und bauen, wie Sie es wollen, das passende Grundstück hingegen muss da verfügbar sein, wo die Rahmenbedingungen mit Ihren Vorstellungen übereinstimmen. Und nicht zuletzt muss immer der finanzielle Rahmen im Blick bleiben.

Und genau an dieser Stelle profitieren Sie von unserer Erfahrung in Verbindung mit dem daraus entstandenen Netzwerk bei der Auswahl Ihres Grundstücks.

Wir versprechen nichts, was wir nicht halten können, aber wir können viel bieten, sprechen Sie mich darauf an und ich erläutere Ihnen gerne, wie wir Ihnen behilflich sein können.

Thomas Heitz 0160/7038141 oder thomas.heitz@streif.de

Ausstattungsmerkmale

KücheOffene Küche
Bad1
Bad (Ausstattung)Dusche, Wanne, Fenster
BodenFliesen, Stein, Teppich, Parkett, Fertigparkett, Laminat, Kunststoff, Linoleum, Marmor, Granit
Terrassen1
Garage/Stellplätze1
STREIF-Häuser sind Energiesparhäuser. Die Außenwände im Passiv-Haus-Standard und eine sparsame Heiztechnik mit integrierter Wohnraumlüftung und Wärmerückgewinnung, garantieren einen geringen Energieverbrauch und ein fantastisches Raumklima, das insbesondere Allergiker aufatmen lässt.

STREIF Leistungen sind MEHR WERT - schon im Grundpreis enthalten!
- 20-monatige Festpreisgarantie
- Energieeffizienzhaus KfW 40 EE im Standard
- Inkl. individuelle Grundrissgestaltung und Raumaufteilung
- Inkl. Fundamentplatte
- Inkl. STREIF-Luft-Luft-Wärmepumpe mit integrierter
Lüftungsanlage mit Wärmerückgewinnung
- Inkl. Haustür von KERA und Fenster von Porta/Kömmerling
- Inkl. Massivholz-Geschosstreppe aus eigener Produktion
- Inkl. Sanitärobjekte von Markenherstellern
- Inkl. Elektroinstallation
- Inkl. Baubetreuung u.v.m.
Die hohe Wertigkeit und Langlebigkeit eines STREIF-Energiespar-Hauses wird durch zahlreiche Auszeichnungen, Qualitäts- und Gütesiegel unabhängiger Institute und Verbände dokumentiert.

Der Angebotspreis ist excl. Grundstück und bezieht sich auf die Standard-Ausbaustufe Fast-Fertig-Plus. Ihre Eigenleistungen: Spachtel-,Tapezier- und Malerarbeiten, Bodenbeläge, Innentüren.
Baunebenkosten fallen zuzüglich an.
Der Verkauf des Grundstücks erfolgt über einen unserer Netzwerkpartner.

Bilder können evtl. Anbauteile, Carports, Balkone, Gauben usw. zeigen, die nicht im Angebotspreis enthalten sind. Änderungen und Irrtümer vorbehalten.

Thomas Heitz 0160 7038141 oder thomas.heitz@streif.de

Energie

A+
Energieeffizienzklasse A+ · 33.00 kWh/(m²*a)
EnergieausweistypVerbrauch
Baujahr (laut Energieausweis)2027
EnergieeffizienzklasseA+
Energietyp Niedrigenergie, Neubaustandard, KfW-40
Energieverbrauchkennwert33.00 kWh/(m²*a)
Heizungsart Zentralheizung
Wesentlicher EnergieträgerStrom
Energieträger/Befeuerung Luft-Wärme-Pumpe

Karte wird geladen...
66780 Rehlingen-Siersburg

Lage & Infrastruktur

Das Grundstück liegt in einer wunderbaren Wohngegend in Hemmersdorf.
Das Haus ist auf einem realen Baugrundstück geplant oder auf einem Grundstück in einer Planungsphase. Das Grundstück erwerben Sie über den beauftragten Immobilienmakler direkt vom Eigentümer. Der Preis des Grundstücks ist im Angebotspreis bereits eingerechnet.

Bitte haben Sie Verständnis dafür, dass wir ohne ein persönliches Gespräch keine Grundstücksdaten weiterleiten können.

Gern sind wir bei der Wahl Ihres Traumgrundstückes behilflich!

Natürlich können wir ihren Haustraum auch auf einem anderen Grundstück realisieren, lassen Sie sich dazu in einem unverbindlichen Gespräch zu Ihrem Bauvorhaben beraten.

Thomas Heitz 0160 7038141 oder thomas.heitz@streif.de

Sonstige Informationen

Modernstes Heizsystem !

Heizen, Lüften und Warmwasser mit einem System

- STREIF-Luft-Luft-Wärmepumpen-Technologe (Basissystem), mit bis zu 85 Prozent Wärmerückgewinnung

- Integrierte Be- und Entlüftungsanlage

- Separate Trinkwasserwärmepumpe mit 300 L Warmwasserspeicher

- G4-Frischluftfilter zur Reduzierung von Staub und Pollen

Vorteile:

- Keine störenden Heizkörper

- Keine fossilen Brennstoffe wie Öl und Gas

- Kein Gasanschluss, kein Öl- oder Pelletslager

- Keine Erdbohrung

Thomas Heitz 0160 7038141 oder thomas.heitz@streif.de
Ansprechpartner/in: Herr Thomas Heitz
STREIF Haus GmbH
Josef-Streif-Straße 1, 54595 Weinsheim

Weitere Angebote in Rehlingen-Siersburg