Perfektes Einfamilienhaus in Bruchhof !

66424 Homburg
Frei ab: nach Vereinbarung
451.000 € Kaufpreis
Wohnfläche
167,22 m²
Zimmer
5
Offene Küche
Terrasse
Stellplatz

Kaufpreis

Kaufpreis 451.000 €
Stellplatz Garage Kaufpreis9.000 €

Wohnfläche, Grundstück & Bausubstanz

Wohnfläche167,22 m²
Grundstücksfläche700 m²
Zimmer5
Etagen2
Baujahr2027
Verfügbar ab nach Vereinbarung
ZustandErstbezug

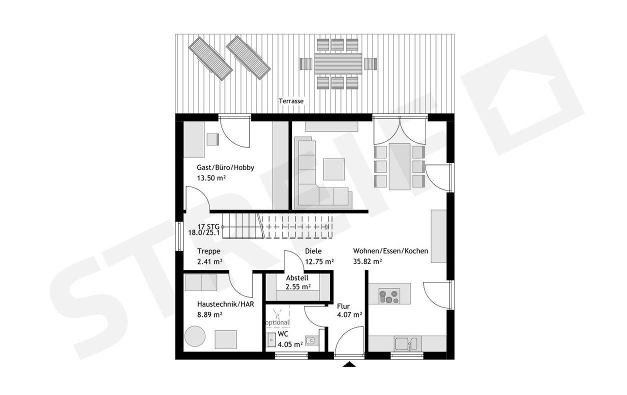
Beschreibung der Immobilie

Das behagliche Haus mit Satteldach punktet mit einem gut durchdachten Grundriss. Der offen gestaltete Wohn-/Ess- und Kochbereich ist lichtdurchflutet. Ein praktischer Hauswirtschaftsraum ist direkt neben der Küche platziert. Komplettiert wird das Raumangebot im Erdgeschoss mit einem Gäste-WC, das optional auch als Duschbad ausgeführt werden kann, einer Diele und einem Haustechnikraum.
Im Dachgeschoss des Hauses sind zwei schöne Kinderzimmer, ein Elternschlafzimmer, ein Flur und ein Familienbad untergebracht. Die Lage der Treppe und des Haustechnikraumes sind fixiert.
Objektart: Einfamilienhaus, 1,5-geschossig
Dachform: Satteldach
Kniestock: 1,25m

Ausstattungsmerkmale

KücheOffene Küche
Bad1
Bad (Ausstattung)Dusche, Wanne, Fenster
BodenFliesen, Stein, Teppich, Parkett, Fertigparkett, Laminat, Dielen, Kunststoff, Linoleum, Marmor, Granit
Terrassen1
Garage/Stellplätze1
Erstklassige Materialien warten darauf, Ihr Eigen zu werden. Wir verbauen für Sie ausschließlich Produkte von namhaften Herstellern in bester Qualität. Und das Beste, Sie haben die Möglichkeit, durch Eigenleistung beim Innenausbau die Finanzierungsquote zu verbessern und dadurch eine Finanzierung gestalten zu können, die es Ihnen in Zukunft leicht macht, anstatt Miete in Ihr eigenes Haus zu investieren. Fragen Sie uns einfach nach unseren Möglichkeiten im Finanzierungsbereich.
Das Haus wird in Niedrigenergiebauweise KfW 40 gebaut.
Die niedrigen Heizkosten inklusive Warmwasseraufbereitung erreichen wir durch eine Wärmepumpe in Verbindung mit einer kontrollierten Be-und Entlüftungsanlage mit Wärmerückgewinnung.
Sämtliche für den Innenausbau erforderlichen Materialien in Handwerkerqualität sind im Preis enthalten.
Sie können den Innenausbau teilweise selbst durchführen und dadurch zusätzliches Eigenkapital bilden oder die Arbeiten stufenweise bis zur einzugsfertigen Erstellung bei uns beauftragen.
Die zum Einsatz kommenden Materialien beziehen wir ausschließlich von namhaften Herstellern.

Thomas Heitz 0160 7038141 oder thomas.heitz@streif.de

Energie

A+
Energieeffizienzklasse A+ · 43.00 kWh/(m²*a)
EnergieausweistypVerbrauch
Baujahr (laut Energieausweis)2027
EnergieeffizienzklasseA+
Energietyp Niedrigenergie, Neubaustandard, KfW-55
Energieverbrauchkennwert43.00 kWh/(m²*a)
Heizungsart Zentralheizung
Wesentlicher EnergieträgerStrom
Energieträger/Befeuerung Luft-Wärme-Pumpe

Karte wird geladen...
66424 Homburg

Lage & Infrastruktur

Das Grundstück liegt in sehr guter Wohnlage von Bruchhof.

Das Haus ist auf einem realen Baugrundstück geplant oder auf einem Grundstück in einer Planungsphase. Das Grundstück erwerben Sie direkt vom Eigentümer. Der Preis des Grundstücks ist im Angebotspreis bereits eingerechnet.

Bitte haben Sie Verständnis dafür, dass wir ohne ein persönliches Gespräch keine Grundstücksdaten weiterleiten können.

Gern sind wir bei der Wahl Ihres Traumgrundstückes behilflich!

Natürlich können wir ihren Haustraum auch auf einem anderen Grundstück realisieren, lassen Sie sich dazu in einem unverbindlichen Gespräch zu Ihrem Bauvorhaben beraten.

Thomas Heitz 0160/7038141 oder thomas.heitz@streif.de

Sonstige Informationen

Wahlweise kann Ihr Haus in den Ausbaustufen "AUSBAUFERTIG" oder "FASTFERTIG" oder FASTFERTIG PLUS" bis hin zu "SCHLÜSSELFERTIG" geplant werden.

Wir ermitteln in der Bedarfsanalyse gemeinsam mit Ihnen den gewünschten Fertigstellungsgrad und kalkulieren den entsprechenden Preis für Sie.

Abgesehen von den Ausbaustufen bestimmen Sie ebenso die technische und optische Ausstattung ganz nach Ihren Vorstellungen und Wünschen.

Diese ersten Gespräche und die Erstellung eines Angebotes sind für Sie kostenlos.

Ich freue mich schon jetzt auf unseren ersten gemeinsamen Termin damit wir mit den ersten Schritten beginnen können.

Thomas Heitz 0160 7038141 oder thomas.heitz@streif.de
Ansprechpartner/in: Herr Thomas Heitz
STREIF Haus GmbH
Josef-Streif-Straße 1, 54595 Weinsheim

Weitere Angebote in Homburg