***Erleben Sie urbanen Luxus mit Klinkeraktion***

38108 Braunschweig
Frei ab: 2026
595.099 € Kaufpreis
Wohnfläche
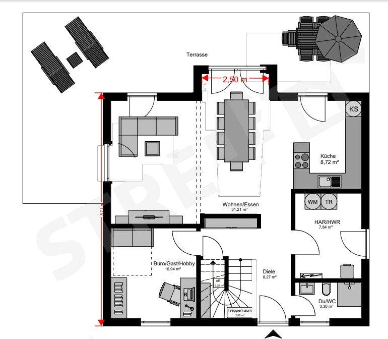
148,51 m²
Zimmer
6
Offene Küche
Terrasse

Kaufpreis

Kaufpreis 595.099 €

Wohnfläche, Grundstück & Bausubstanz

Wohnfläche148,51 m²
Nutzfläche25 m²
Grundstücksfläche532 m²
Zimmer6
Etagen1
Baujahr2026
Verfügbar ab 2026
ZustandProjektiert

Beschreibung der Immobilie

Erleben Sie Ihr Traumhaus mit STREIF - ein Einfamilienhaus, das nach Ihren individuellen Wünschen und Vorstellungen projektiert wird. Mit einer großzügigen Wohnfläche von 148,51 m² bietet dieses Haus in Braunschweig ausreichend Platz für Ihre Familie. Auf einem Grundstück von 532 m² erstreckt sich Ihr zukünftiges Heim über eine Etage mit insgesamt 6 Zimmern, darunter 3 Schlafzimmer und 2 Badezimmer. Die harmonische Raumaufteilung ermöglicht ein komfortables Wohnen für die ganze Familie.

Ausstattungsmerkmale

KücheOffene Küche
Bad2
Bad (Ausstattung)Dusche, Wanne, Fenster
BodenFliesen
Terrassen1
Die Ausstattung dieses Hauses ist gehoben und lässt keine Wünsche offen. Die beiden Badezimmer bieten sowohl eine Dusche als auch eine Badewanne und sind mit Fenstern versehen, die für ein angenehmes Tageslicht sorgen. Ein zusätzliches Gäste-WC vervollständigt das Angebot. Die Bodenbeläge bestehen aus hochwertigen Fliesen, die für ihre Langlebigkeit und Pflegeleichtigkeit bekannt sind, sowie Belägen nach Wunsch, die Ihnen individuelle Gestaltungsmöglichkeiten eröffnen. Die Beheizung erfolgt durch eine effiziente Wärmepumpe, die nicht nur umweltfreundlich ist, sondern auch Ihre Energiekosten senkt. Der KFW40 Standard garantiert Ihnen zudem höchste Energieeffizienz.

Energie

Energietyp KfW-40
Heizungsart Zentralheizung
Energieträger/Befeuerung Luft-Wärme-Pumpe

Karte wird geladen...
38108 Braunschweig

Lage & Infrastruktur

Das Bauprojekt befindet sich in einem attraktiven Wohngebiet in Braunschweig und bietet hervorragende Anbindungen an die Infrastruktur der Stadt. In unmittelbarer Nähe finden Sie alle notwendigen Einrichtungen des täglichen Bedarfs: Apotheke, Einkaufscenter sowie verschiedene Einkaufsmöglichkeiten sind schnell erreichbar. Für Familien mit Kindern stehen eine Grundschule sowie weiterführende Schulen zur Verfügung. Zudem profitieren Sie von der Nähe zu öffentlichen Verkehrsmitteln wie Bus und Bahnhof, was die Flexibilität im Alltag erhöht.

Sonstige Informationen

Achtung: Klinkeraktion ist verlängert.

STREIF Haus - der Pionier der deutschen Fertighausbranche
Die langjährige Firmentradition des Unternehmens reicht bis in das Jahr 1929 zurück. In den 50er und 60er Jahren wurde in Deutschland schnell und viel Wohnraum für Familien benötigt, seitdem konzentrierte sich das Unternehmen auf die Entwicklung und Produktion von Fertighaustypen, die im Werk in großen Stückzahlen hergestellt werden konnten. So kann das Unternehmen auf 90.000 gebaute Hausobjekte zurückblicken und sich zu Recht als Pionier der deutschen Fertighausbranche bezeichnen.

Die neuen Energiesparhäuser - So baut man heute.
Unser Anspruch ist es, in enger Partnerschaft mit unseren Kunden langlebige Häuser zu bauen, mit einer hohen architektonischen Qualität, individuell geplant und dabei energieeffizient und ressourcenschonend. Jedes STREIF-Haus ist einzigartig und wird speziell für jeden Kunden "maßgeschneidert" und gebaut. Passend zu den persönlichen Wünschen, dem vorgegebenen Budget und dem vorhandenen Grundstück planen und bauen wir jedes Haus mit viel Liebe zum Detail.
Ansprechpartner/in: Herr Andreas Maurer
06551 12 00
STREIF Haus GmbH
Josef-Streif-Straße 1, 54595 Weinsheim
06551 12 00

Weitere Angebote in Braunschweig