STREIF baut Euer perfektes Zuhause

74927 Eschelbronn
467.180 € Kaufpreis
Wohnfläche
113 m²
Zimmer
4
Terrasse
Barrierefrei

Kaufpreis

Kaufpreis 467.180 €

Wohnfläche, Grundstück & Bausubstanz

Wohnfläche113 m²
Grundstücksfläche245 m²
Zimmer4
Etagen1
Verfügbar ab Keine Angabe
ZustandErstbezug

Beschreibung der Immobilie

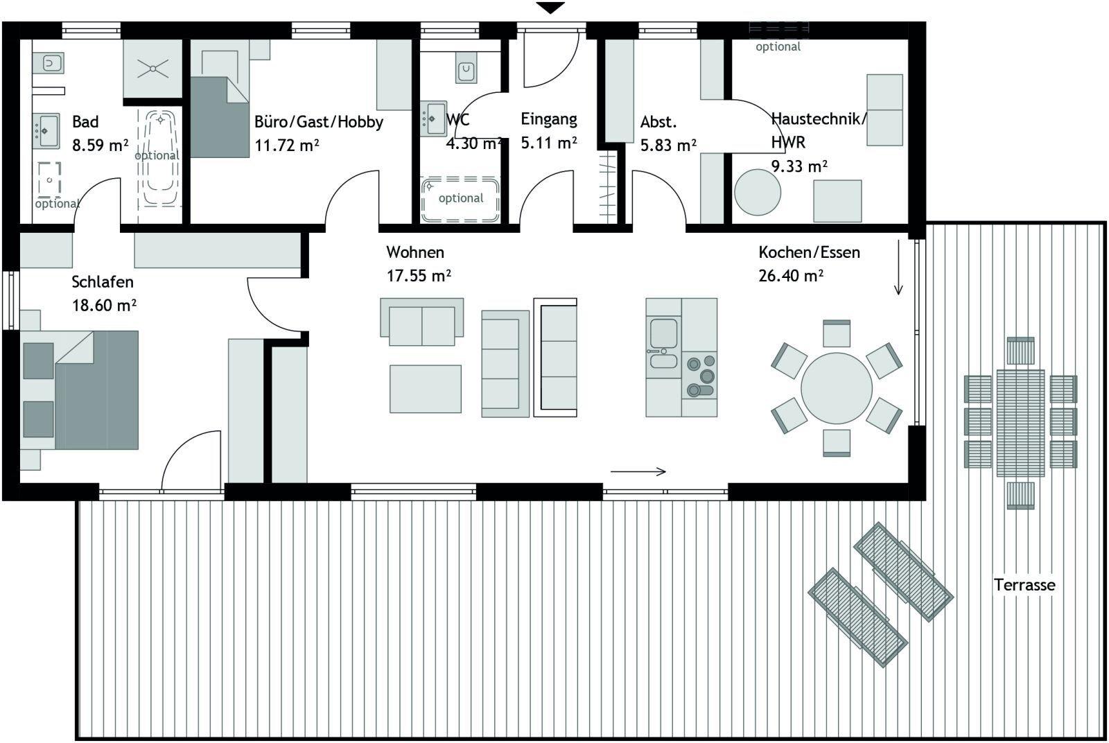
Bungalow mit Satteldach mit flexiblem Raumkonzept
Entdecken Sie die Möglichkeiten, Ihr Traumhaus als Bungalow mit einem Satteldach zu realisieren und erleben Sie eine zeitgemäße Architektur gepaart mit einem einzigartigen Raumkonzept. Der Wohn-/Ess- und Kochbereich erstreckt sich über großzügige 44 m² und bietet höchsten Komfort. Eine halbhohe Wand, die optional auch raumhoch sein kann, trennt geschickt den Koch- vom Wohnbereich und schafft so eine harmonische Balance zwischen gemeinsamen Beisammensein und klarer Struktur. Große Panoramafenster sowie eine geräumige Panorama-Hebeschiebetür sorgen für ein helles und offenes Ambiente, das Innen- und Außenbereich harmonisch miteinander verbindet. Der Schlafbereich überzeugt mit großzügiger Stellfläche für Schränke und einem direkten Zugang zum geräumigen Badezimmer. Ein zusätzlicher Raum, flexibel als Büro, Gäste- oder Hobbyraum nutzbar, sowie ein zweites Badezimmer mit optionaler Dusche, runden das Raumangebot ab. Auf Anfrage kann der Grundriss des Bungalows auch barrierefrei gestaltet werden, um allen individuellen Bedürfnissen gerecht zu werden.

Ausstattungsmerkmale

Bad1
Terrassen1
BarrierefreiJa
STREIF-Häuser sind Energiesparhäuser. Die Außenwände im Passiv-Haus-Standard und eine sparsame Heiztechnik mit integrierter Wohnraumlüftung und Wärmerückgewinnung, garantieren einen geringen Energieverbrauch und ein fantastisches Raumklima, das insbesondere Allergiker aufatmen lässt.

STREIF Leistungen sind MEHR WERT - schon im Grundpreis enthalten!
- 20-monatige Festpreisgarantie
- KfW-Energieeffizienzhaus 40 im Standard*
- Inkl. individueller Grundrissgestaltung und Raumaufteilung
- Inkl. gedämmter Fundamentplatte
- Inkl. STREIF-Luft-Luft-Wärmepumpen-Technologie mit integrierter Lüftungsanlage mit Wärmerückgewinnung
- Inkl. Haustür von KERA und Fenster von Porta/Kömmerling
- Inkl. Sanitärobjekte von Markenherstellern
- Inkl. Elektroinstallation
- Inkl. Photovoltaikanlage 7,12 KWP
- Inkl. Batteriespeicher mit 7,70 KWH
- Inkl. Baubetreuung u.v.m.

* In Abhängigkeit von Gebäudestandort, Gebäudeausrichtung, Fensterflächenanteile usw. können zusätzliche oder abweichende Leistungen erforderlich werden, die im Zuge der Bauantragsbewertung/-erstellung geprüft werden. Das Erreichen der Grenzwerte des QNG als Voraussetzung zum KFN ist bei einem Bungalow nur durch zusätzliche Maßnahmen (mehr Netto-Raumfläche = zusätzliches Geschoss und/oder Dachboden,
größere Photovoltaik-Anlage, ...) erreichbar. Hierzu ist im Vorfeld der Planung eine separate Beratung sowie zusätzlich die gemeinsame Festlegung der nachhaltigen Planungsziele erforderlich. Die Möglichkeit zur Erstellung der Ökobilanzierung durch STREIF muss separat je Bauvorhaben geprüft werden.

Die hohe Wertigkeit und Langlebigkeit eines STREIF-Energiespar-Hauses wird durch zahlreiche Auszeichnungen, Qualitäts- und Gütesiegel unabhängiger Institute und Verbände dokumentiert.

Der Angebotspreis ist inklusive Grundstück und bezieht sich auf die Standard-Ausbaustufe Fast-Fertig-Plus. Ihre Eigenleistungen: Spachtel-,Tapezier- und Malerarbeiten, Bodenbeläge, Innentüren.
Baunebenkosten fallen zuzüglich an.

Der Verkauf des Grundstücks erfolgt über einen unserer Netzwerkpartner.

Bilder können evtl. Anbauteile, Carports, Balkone, Gauben usw. zeigen, die nicht im Angebotspreis enthalten sind. Änderungen und Irrtümer vorbehalten.

Energie

Energietyp KfW-40
Heizungsart Zentralheizung
Energieträger/Befeuerung Luft-Wärme-Pumpe

Karte wird geladen...
74927 Eschelbronn

Lage & Infrastruktur

Eschelbronn ist eine charmante Gemeinde im Rhein-Neckar-Kreis in Baden-Württemberg. Gelegen im idyllischen Schwarzbachtal am Übergang vom Kraichgau zum Kleinen Odenwald, ist der Ort weit über die Region hinaus als das "Schreinerdorf" bekannt. Diese handwerkliche Tradition prägt bis heute das Gesicht und die Identität der Gemeinde, die sich gleichzeitig zu einem modernen Wohnort mit hoher Lebensqualität entwickelt hat.

Über die Landesstraßen ist man schnell auf der B45 oder der B292. Die Autobahn A6 (Anschlussstelle Sinsheim oder Wiesloch/Rauenberg) ist in ca. 15 Minuten erreichbar.
Ein großer Pluspunkt ist der Anschluss an die S-Bahn Rhein-Neckar (Linie S51). Die Schwarzbachtalbahn verbindet Eschelbronn im Stundentakt (in den Hauptverkehrszeiten öfter) direkt mit Meckesheim (Anschluss nach Heidelberg/Mannheim) und Aglasterhausen. Die Gemeinde bietet alles für den täglichen Bedarf: einen Supermarkt, Bäckereien, eine Metzgerei sowie eine Apotheke und Hausarztpraxen.

Eschelbronn verfügt über moderne Kindergärten mit flexiblen Betreuungszeiten und eine eigene Grundschule (Schloßwiesenschule). Weiterführende Schulen in Meckesheim, Waibstadt oder Sinsheim sind durch die S-Bahn-Anbindung zu erreichen.

Das überregional bekannte Schreinermuseum dokumentiert die Entwicklung des Dorfes vom armen Bauerndorf zum Zentrum der Möbelherstellung. Es ist ein lebendiges Denkmal der lokalen Handwerkskunst. Auch wenn die industrielle Massenfertigung zurückgegangen ist, gibt es in Eschelbronn nach wie vor zahlreiche Schreinereien und Möbelhäuser, die für Qualität und individuelles Design stehen. Im Ortskern finden sich liebevoll restaurierte Fachwerkhäuser, die dem Dorf ein gemütliches, authentisches Ambiente verleihen.

Das Schwarzbachtal bietet flache Wege entlang des Baches, während die umliegenden Wälder anspruchsvollere Routen für Wanderer und Mountainbiker bereithalten. Der nahegelegene Kallenberg bietet tolle Aussichtspunkte und ruhige Waldwege. Die Gemeinde hat ein sehr reges Vereinswesen. Die Eschelbronner Kerwe ist das gesellschaftliche Highlight im Jahr.

Handwerkliche Tradition, ein authentisches Dorfbild und die Infrastruktur machen Eschelbronn zu einer attraktiven Wohngemeinde.

Sonstige Informationen

Zur Realisierung des Bauvorhabens und zur Bezugsfertigkeit des Gebäudes kommen zzgl. noch Baunebenkosten und Fertigstellungskosten.
Ansprechpartner/in: Achim Machmeier
STREIF Haus GmbH
Josef-Streif-Straße 1, 54595 Weinsheim

Weitere Angebote in Eschelbronn