STREIF baut Euer perfektes Zuhause

74909 Meckesheim
682.414 € Kaufpreis
Wohnfläche
186 m²
Zimmer
10
Terrasse
Barrierefrei

Kaufpreis

Kaufpreis 682.414 €

Wohnfläche, Grundstück & Bausubstanz

Wohnfläche186 m²
Grundstücksfläche385 m²
Zimmer10
Etagen2
Verfügbar ab Keine Angabe
ZustandErstbezug

Beschreibung der Immobilie

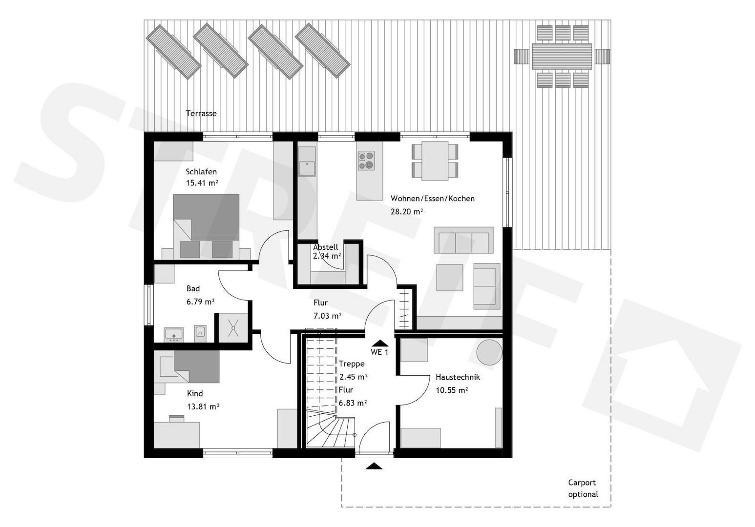
Das zweigeschossige Mehrfamilienhaus mit zwei Wohnungen überzeugt mit einer klassisch eleganten Architektur mit Walmdach und einer behaglichen Terrasse. Der Hausentwurf kann mit einem Carport und einer darüberliegenden Dachterrasse aufgewertet werden.

Die Grundrissgestaltung bietet im Entwurf optional vier verschiedene Varianten an Wohnungszuschnitten. Die Wohnungen im Erdgeschoss können je nach Anforderung und Bauvorschriften barrierearm oder barrierefrei geplant werden. Die Grundrisse sind für Singles, Paare oder eine Kleinfamilie konzipiert. Die Wohn-/Ess- und Kochbereiche sind in einer offenen Raumplanung angelegt. Je nach Wohneinheit/-größe kann ein Zusatzzimmer, das als Kinder-/Arbeits- oder Hobbyraum nutzbar ist, eingeplant werden. Die Haustechnik und ein Hauswirtschaftsraum befinden sich im Erdgeschoss. In jeder Wohnung ist jeweils ein Abstellraum eingeplant.

Auf Wunsch ist ein Aufzug, Balkone oder ein zusätzliches Kellergeschoss planbar.

Ausstattungsmerkmale

Bad2
Terrassen1
BarrierefreiJa
STREIF-Energiespar-Häuser sind für die Effizienzhaus-Klasse 40* vorbereitet. (*In Abhängigkeit von Gebäudestandort, Gebäudeausrichtung, Fensterflächenanteile, Haustechnik usw. können zusätzliche oder abweichende Leistungen erforderlich werden, die im Zuge der Bauantragsbewertung/-erstellung bewertet werden.)

Mit dem Erfüllen dieser und weiterer Anforderungen ist Ihr Haus QNG förderfähig, sofern das Gebäude gemäß den Richtlinien zur Förderung platziert wird.

Die Außenwände im Passiv-Haus-Standard und eine sparsame Heiztechnik mit integrierter Wohnraumlüftung und Wärmerückgewinnung, garantieren einen geringen Energieverbrauch und ein fantastisches Raumklima, das insbesondere Allergiker aufatmen lässt.

STREIF Leistungen sind MEHR WERT - schon im Grundpreis enthalten!
- 16-monatige Festpreisgarantie
- Inkl. individuelle Grundrissgestaltung und Raumaufteilung
- Inkl. Fundamentplatte
- Inkl. effizientem Luft-Wasser-Wärmepumpensystem (als Außeneinheit) mit Fußbodenheizung
- Inkl. Haustür und 3-fach verglaste Fenster
- Inkl. Innentüren - Smartline
- Inkl. Innenwände und Decken, tapeziert, weiß gestrichen
- Inkl. Sanitärobjekte von Markenherstellern - Smartline
- Inkl. Lüftungsgerät je Wohneinheit
- Inkl. Massivholztreppe
- Inkl. Vorbereitung zur Installation einer Photovoltaik-Anlage
- Inkl. Elektroinstallation
- Inkl. Photovoltaikanlage 7,12 KWP
- Inkl. Batteriespeicher mit 7,70 kWh
- Inkl. Bodenbeläge - Smartline
- Inkl. Baubetreuung u.v.m.

Die hohe Wertigkeit und Langlebigkeit eines STREIF-Energiespar-Hauses wird durch zahlreiche Auszeichnungen, Qualitäts- und Gütesiegel unabhängiger Institute und Verbände dokumentiert.

Der Angebotspreis ist inklusive Grundstück und bezieht sich auf die Ausbaustufe schlüsselfertig.
Baunebenkosten und Grundstücksnebenkosten fallen zuzüglich an.

Der Verkauf des Grundstücks erfolgt über einen unserer Netzwerkpartner.

Bilder können evtl. Anbauteile, Carports, Balkone, Gauben usw. zeigen, die nicht im Angebotspreis enthalten sind. Änderungen und Irrtümer vorbehalten.

Energie

Energietyp KfW-40
Heizungsart Zentralheizung
Energieträger/Befeuerung Luft-Wärme-Pumpe

Karte wird geladen...
74909 Meckesheim

Lage & Infrastruktur

Meckesheim ist eine Gemeinde im Rhein-Neckar-Kreis in Baden-Württemberg. Gelegen im Elsenztal, direkt an der Schnittstelle zwischen dem Kleinen Odenwald und dem Kraichgau, hat sich der Ort historisch als wichtiger Eisenbahnknotenpunkt entwickelt. Heute ist Meckesheim, zusammen mit seinem Ortsteil Mönchzell, ein gefragter Wohn- und Wirtschaftsstandort.
Der Hauptort Meckesheim liegt im Talboden an der Elsenz, während der Ortsteil Mönchzell idyllisch in einem Seitental eingebettet ist.

Die Gemeinde liegt direkt an der B45, die das Neckartal mit dem Kraichgau verbindet.
Meckesheim hat einen der wichtigsten Bahnhöfe der Region. Hier treffen sich die Elsenztalbahn (Heidelberg-Sinsheim) und die Schwarzbachtalbahn (Richtung Aglasterhausen). Mit den S-Bahn-Linien S5, S51 und RE10 ist man schnell am Heidelberger Hauptbahnhof.
Meckesheim fungiert als kleines Versorgungszentrum für die umliegenden Orte. Es gibt mehrere Supermärkte, Discounter, Bäckereien, eine Apotheke und diverse Arztpraxen direkt vor Ort.

Mehrere Kindergärten in beiden Ortsteilen bieten moderne Betreuungskonzepte an.
Meckesheim verfügt über eine Grundschule sowie eine Gemeinschaftsschule (Karl-Bühler-Schule). Gymnasien und Realschulen in den Nachbarorten Bammental, Sinsheim oder Neckargemünd sind durch die exzellente Bahnanbindung in wenigen Minuten erreichbar.

In den weitläufigen Gewerbegebieten am Ortsrand haben sich namhafte Unternehmen aus den Bereichen Maschinenbau, Logistik und Bauwesen niedergelassen (z. B. die Firma Herbold Meckesheim im Bereich Recyclingtechnik). Die Gemeinde bietet zahlreiche Arbeitsplätze vor Ort, ist aber gleichzeitig aufgrund der Schienenanbindung ein idealer Basispunkt für Pendler in Richtung Heidelberg, Mannheim oder Walldorf (SAP).

Die Hügel rund um Meckesheim und Mönchzell bieten tolle Wander- und Radwege mit weiten Ausblicken über den Kraichgau. Der Elsenztal-Radweg ist besonders bei Familien beliebt.
Die Meckesheimer Kerwe ist ein fester Termin im regionalen Kalender. Das Vereinsleben in den Bereichen Sport, Musik und Kleintierzucht ist sehr ausgeprägt.

Maximale Flexibilität durch den S-Bahn-Knotenpunkt und ein bodenständiges Umfeld mit aktiver Gemeinschaft machen Meckesheim zu einem praktischen, dynamischen und bestens vernetzten Zentrum im Elsenztal.

Sonstige Informationen

Zur Realisierung des Bauvorhabens und zur Bezugsfertigkeit des Gebäudes kommen zzgl. noch Baunebenkosten und Fertigstellungskosten.
Ansprechpartner/in: Achim Machmeier
STREIF Haus GmbH
Josef-Streif-Straße 1, 54595 Weinsheim

Weitere Angebote in Meckesheim