Attraktive 2-Zimmer-Wohnung im Erdgeschoss mit Balkon und moderner Ausstattung

61449 Steinbach, Hessen
Frei ab: 01.05.2026
950 € Kaltmiete
15,83 € Preis/m² ca.
Wohnfläche
60 m²
Zimmer
2
Etage
0
Einbauküche
Balkon
Terrasse
Fahrstuhl
Keller

Mietpreis & Nebenkosten

Kaltmiete (netto)950 €
Nebenkosten 200 €
Heizkosten enthaltenJa
Kaution 2.850 €

Wohnfläche, Grundstück & Bausubstanz

Wohnfläche60 m²
Zimmer2
Etagen10
Stockwerk0
Baujahr1970
Verfügbar ab 01.05.2026
ZustandTeil Vollsaniert

Beschreibung der Immobilie

Attraktive 2-Zimmer-Wohnung im Erdgeschoss mit Balkon und moderner Ausstattung
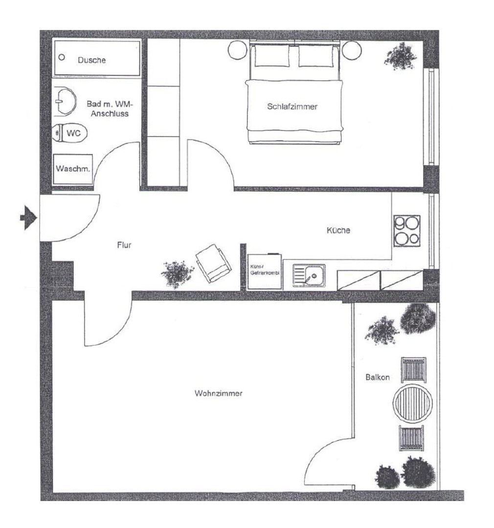
Diese gut geschnittene 2-Zimmer-Wohnung mit ca. 60 m² Wohnfläche überzeugt durch ihren durchdachten Grundriss, helle Räume und einen gepflegten, gehobenen Zustand.
Das Herzstück der Wohnung ist das großzügige Wohnzimmer mit direktem Zugang zum Balkon, der zusätzlichen Wohnkomfort bietet und zum Entspannen einlädt. Große Fenster sorgen in allen Räumen für eine angenehme Lichtdurchflutung.
Das Schlafzimmer bietet ausreichend Platz für ein Doppelbett sowie einen Kleiderschrank und schafft eine ruhige Rückzugsmöglichkeit.
Die separate Küche ist funktional geschnitten und mit einer Einbauküche ausgestattet, die genügend Stauraum und Arbeitsfläche bietet.
Das Badezimmer verfügt über eine Badewanne und ist hell gefliest. Ein Anschluss für eine Waschmaschine ist ebenfalls vorhanden.
Ein geräumiger Flur verbindet alle Räume miteinander und bietet zusätzlichen Platz für Garderobe oder Stauraum.
Ausstattungsmerkmale im Überblick:
•ca. 60 m² Wohnfläche
•2 Zimmer (Wohnzimmer & Schlafzimmer)
•Balkon mit Zugang vom Wohnzimmer
•Einbauküche
•Badezimmer mit Badewanne
•Waschmaschinenanschluss
•Hochwertiger Bodenbelag in Wohnräumen
•Gepflegter, gehobener Zustand
•Erdgeschosslage
Die Wohnung ist ab dem 01.05.2026 nach Absprache bezugsfrei und eignet sich ideal für Singles oder Paare.

Ausstattungsmerkmale

KücheEinbauküche
Bad1
Bad (Ausstattung)Dusche, Wanne
BodenFliesen, Laminat
Balkone1
Terrassen0
Fahrstuhl
KellerJa
Balkon, Keller, Fahrstuhl, Vollbad, Duschbad, Einbauküche, Laminat, Fliesen

Energie

D
Energieeffizienzklasse D · 130 kWh/(m²*a)
EnergieausweistypVerbrauch
EnergieeffizienzklasseD
Energieverbrauchkennwert130 kWh/(m²*a)
Heizungsart Zentralheizung
Energieträger/Befeuerung Gas

Karte wird geladen...
61449 Steinbach – Hessen

Lage & Infrastruktur

Die Wohnung befindet sich in bester Lage von Steinbach (Taunus) und überzeugt durch eine hervorragende Kombination aus ruhigem Wohnen und optimaler Anbindung an die Metropolregion Frankfurt.

Eine S-Bahn-Station ist in kurzer Zeit erreichbar und bietet eine schnelle und komfortable Verbindung in die Frankfurter Innenstadt sowie in die umliegenden Städte. Die Nähe zu Frankfurt macht den Standort besonders attraktiv für Berufspendler.

In Steinbach selbst finden sich zahlreiche Einkaufsmöglichkeiten für den täglichen Bedarf, darunter Supermärkte, Bäckereien und weitere Geschäfte. Auch Ärzte, Apotheken sowie gastronomische Angebote sind bequem erreichbar.

Die Lage vereint die Vorteile eines ruhigen Wohnumfelds mit der unmittelbaren Nähe zur Großstadt – ideal für alle, die in Steinbach wohnen und gleichzeitig die Vorzüge von Frankfurt nutzen möchten.
Infrastruktur (im Umkreis von 5 km):
Apotheke, Lebensmittel-Discount, Allgemeinmediziner, Kindergarten, Grundschule, Hauptschule, Realschule, Gymnasium, Gesamtschule, Öffentliche Verkehrsmittel

Sonstige Informationen

Heizungsart: Zentralheizung
Energieträger: Gas

Die Wohnung ist ab dem 01.05.2026 nach Absprache bezugsfrei.

Bitte senden Sie bei Interesse eine kurze Vorstellung Ihrer Person sowie relevante Unterlagen (z. B. Einkommensnachweise und Schufa-Auskunft).

Die Wohnung eignet sich ideal für Singles oder Paare. Haustiere sind nach Vereinbarung möglich.

Makleranfragen nicht erwünscht. Nach § 7 UWG sind unaufgeforderte Kontaktaufnahmen durch Makler ohne ausdrückliche Einwilligung des Empfängers verboten!

ohne-makler (OM) ist weder Anbieter noch Vermittler der Immobilie. OM betreibt eine Plattform für Immobilieneigentümer, die unter anderem die gleichzeitige Veröffentlichung einzelner Inserate auf mehreren Immobilienportalen ermöglicht. Die Inhalte dieser Inserate werden ausschließlich von Dritten verantwortet. Für die Richtigkeit, Vollständigkeit oder Rechtmäßigkeit der Angaben übernimmt OM keine Haftung. Hinweise auf mögliche Rechtsverstöße können jederzeit gemeldet werden und werden nach Prüfung umgehend bearbeitet.
Ansprechpartner/in: Privat von Eric Tsague
OM PropTech GmbH
Humboldtstraße 25a, 21509 Glinde

Weitere Angebote in Steinbach