Einfamilienhaus mit großem Garten im Nürnberg-Eberhartshof (ruhig gelegen)

90431 Nürnberg, Bayern
Frei ab: sofort
470.000 € Kaufpreis
Wohnfläche
210 m²
Zimmer
12
Balkon
Terrasse
Garten
Keller
Stellplatz

Kaufpreis

Kaufpreis 470.000 €
Maklerprovisionkeine Provision, courtagefrei

Wohnfläche, Grundstück & Bausubstanz

Wohnfläche210 m²
Grundstücksfläche358 m²
Zimmer12
Etagen3
Baujahr1938
Verfügbar ab sofort
ZustandTeil Vollrenovierungsbed

Beschreibung der Immobilie

Großes Einfamilienhaus mit Garten in Nürnberg-Eberhardshof – ruhig gelegen und ideal für Familien & Mehrgenerationenwohnen

In ruhiger und gewachsener Lage im Nürnberger Stadtteil Eberhardshof steht dieses großzügige Einfamilienhaus aus dem Baujahr 1938 zum Verkauf. Das Haus bietet viel Platz, Substanz und Potenzial – perfekt für große Familien, Mehrgenerationenwohnen oder alle, die sich den Traum vom eigenen Haus mit Garten in Stadtnähe erfüllen möchten.

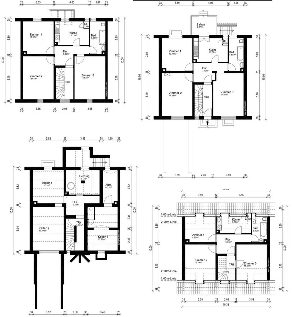
Mit 3 Vollgeschossen, 12 Zimmern, drei Bädern (je eines pro Etage) sowie einem voll unterkellerten Bereich mit Garage bietet die Immobilie zahlreiche Nutzungsmöglichkeiten. Der Balkon, der Garten und der Vorgarten mit altem Nussbaum schaffen eine angenehme Wohnatmosphäre und Raum für Erholung, Spielen oder Gärtnern.

Das Haus ist leerstehend und ab sofort verfügbar. Teile der Immobilie sind modernisierungsbedürftig und bieten neuen Eigentümern die Möglichkeit, das Haus nach eigenen Vorstellungen zu gestalten und langfristig aufzuwerten.

Eckdaten & Ausstattung

Einfamilienhaus, Baujahr 1938
Grundstücksfläche: 358 m²
Wohnfläche: 210,83 m² (nach WoFlV)
Gebäudenutzfläche: 271 m²
12 Zimmer
3 Bäder (je Etage ein Bad)
3 Vollgeschosse
Voll unterkellert
Garage mit direkter Einfahrt im Keller
Gasheizung (Erdgas, ein Zähler für das gesamte Haus)
Solarthermie vorhanden
Doppelverglaste Fenster (Rollläden im ersten Stock vorhanden)
Balkon (im 1 OG)
Garten & Vorgarten
Kein Denkmalschutz
Energieeffizienzklasse F (198,71 kWh/m²·a)

Besichtigung & Kontakt
Weitere Fotos, Videos sowie virtuelle oder persönliche Besichtigungen sind nach Absprache jederzeit möglich.
Der Verkauf erfolgt im Namen einer Erbengemeinschaft.
Bei ernsthaftem Interesse wird ein Finanzierungsnachweis erbeten. Der Käufer beauftragt den Notar für die Erstellung und Abwicklung des Kaufvertrags.

Dateien


Ausstattungsmerkmale

Bad3
Bad (Ausstattung)Dusche
BodenFliesen, Teppich, Parkett, Kunststoff
Balkone1
Terrassen1
GartenJa
KellerJa
Garage/Stellplätze1
Balkon, Terrasse, Garten, Keller, Duschbad, Kamin, Parkett, Teppichboden, Fliesen

Energie

F
Energieeffizienzklasse F · 199 kWh/(m²*a)
EnergieausweistypBedarfsausweis
EnergieeffizienzklasseF
Endenergiebedarf199
Heizungsart Zentralheizung
Energieträger/Befeuerung Gas

Karte wird geladen...
90431 Nürnberg – Bayern

Lage & Infrastruktur

Die Immobilie befindet sich in der Leiblstraße, 90431 Nürnberg. Die U-Bahn-Haltestelle Eberhardshof ist in ca. 5 Gehminuten erreichbar und bietet eine schnelle Verbindung in die Nürnberger Innenstadt. Einkaufsmöglichkeiten, Schulen, Kindergärten, Ärzte und Freizeitangebote befinden sich in der näheren Umgebung.
Infrastruktur (im Umkreis von 5 km):
Apotheke, Lebensmittel-Discount, Allgemeinmediziner, Kindergarten, Grundschule, Hauptschule, Realschule, Gymnasium, Gesamtschule, Öffentliche Verkehrsmittel

Sonstige Informationen

Heizungsart: Zentralheizung
Energieträger: Gas


Makleranfragen nicht erwünscht. Nach § 7 UWG sind unaufgeforderte Kontaktaufnahmen durch Makler ohne ausdrückliche Einwilligung des Empfängers verboten!

ohne-makler (OM) ist weder Anbieter noch Vermittler der Immobilie. OM betreibt eine Plattform für Immobilieneigentümer, die unter anderem die gleichzeitige Veröffentlichung einzelner Inserate auf mehreren Immobilienportalen ermöglicht. Die Inhalte dieser Inserate werden ausschließlich von Dritten verantwortet. Für die Richtigkeit, Vollständigkeit oder Rechtmäßigkeit der Angaben übernimmt OM keine Haftung. Hinweise auf mögliche Rechtsverstöße können jederzeit gemeldet werden und werden nach Prüfung umgehend bearbeitet.
Ansprechpartner/in: Privat von Christian
OM PropTech GmbH
Humboldtstraße 25a, 21509 Glinde

Weitere Angebote in Nürnberg