Provisionsfrei* Wir haben mehrere Reihenhäuser in der Waldsiedlung Hakenfelde, modernisiert, einziehen und sich wohl fühlen

13587 Berlin, Berlin
Frei ab: sofort
360.000 € Kaufpreis
Wohnfläche
110 m²
Zimmer
3,5
Einbauküche
Terrasse
Keller

Kaufpreis

Kaufpreis 360.000 €
Maklerprovision

Wohnfläche, Grundstück & Bausubstanz

Wohnfläche110 m²
Grundstücksfläche100 m²
Zimmer3,5
Etagen3
Baujahr1926
Verfügbar ab sofort
ZustandModernisiert

Beschreibung der Immobilie

Nie mehr Miete / wohnen im eigenem Haus.
Sie haben die Möglichkeit sich aus einer Vielzahl von modernisierten Häusern sich Ihr Traumhaus auszuwählen.

Ausstattungsmerkmale

KücheEinbauküche
Bad2
Bad (Ausstattung)Dusche, Wanne, Fenster
BodenFliesen, Laminat
Terrassen1
KellerJa
Nach Modernisierung und Renovierung, steht das Haus zum Einzug bereit. Eine gemütliche Terrasse und ein eigener Garten bieten einen zusätzlichen hohen Erholungs- und Wohnwert.
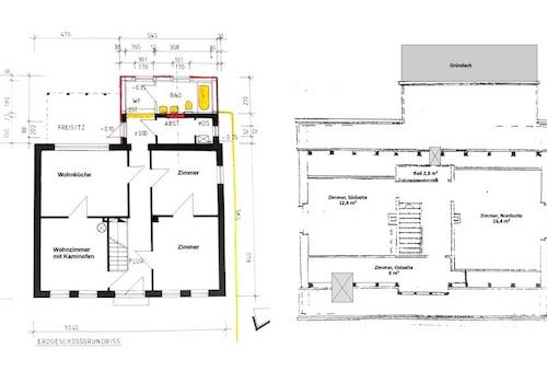
Im Erdgeschoss bieten die größeren Häuser eine Wohnfläche von ca. 40 qm (inclusive Wintergarten). Im offenen Eingangsbereich schließt sich der Küchenraum an. Das helle Wohnzimmer mit ggf. einem Kamin und Zugang zum Wintergarten bitten einen offenen Blick durch die Panoramafenster in den Garten. Das Obergeschoss, welches über eine schöne alte Holztreppe erreicht werden kann, verfügt über ein Zimmer, ein Durchgangszimmer und ein vollflächig gefliestes Duschbad. Über das kleine Durchgangszimmer gelangt man über eine weitere Treppe in das helle Dachgeschoss. Hier bietet sich eine ideale Rückzugsmöglichkeit für ein Schlafzimmer, der weitere Raum kann als Ankleidezimmer / Arbeitszimmer / oder Gästezimmer genutzt werden.
Ein weiteres größeres Wannen- Bad befindet sich im Keller. In dem angrenzenden Kellerraum kann mit wenig Aufwand ein und Wellnessbereich gestaltet werden.
Das Objekt wurde aufwendigst modernisiert und renoviert.
Zu den Leistungen gehören u.a. Neuverfliesung von Küche und Bad, neue Sanitärstränge, Einbau neuer Sanitärobjekte, die Böden und Wände in den Bädern sind geschmackvoll gefliest, Wohn- und Schlafzimmerböden mit Laminat ausgekleidet und im Erdgeschoss gefliest. Decken und Wände weiss gestrichen. Neue Elektrik und ggf. Lan Kabel im Haus.
3 Zimmer, Küche, zwei Bäder, 1Kellerraum und ein eigener Garten.
Ideal für 2-3 Personen.

Energie

Heizungsart Zentralheizung
Energieträger/Befeuerung Gas

Karte wird geladen...
13587 Berlin – Berlin

Lage & Infrastruktur

Die einzelnen Objekte liegen in einer sehr beliebten, ruhigen und von sehr viel Grün umgebenen Lage in der Waldsiedlung Hakenfelde. Zum Spandauer Stadtwald sind es lediglich 5 Gehminuten, zu den Spandauer Gewässern wie Aalemannufer und Havel nur ca. 15 Gehminuten, insofern kann man von einem hohen Freizeitwert sprechen. Gute Verkehrsanschlüsse zur Spandauer Altstadt, sowie sämtliche Einkaufsmöglichkeiten, Schulen und Kindergärten sind in unmittelbarer Nähe vorhanden.

Sonstige Informationen

Sie haben die Wahl zwischen verschiedenen Häusern zu unterschiedlichen Verkaufspreisen. Der Verkaufspreis ist Objektabhängig. Das kleinste und preiswerteste Eigenheim kann für 360.000,- € erworben werden. Das Spitzenobjekt liegt im Preis bei 520.000,- €
Ohne Maklercoutage / ohne Makler!
Ansprechpartner/in: von Privat
immo-for-less Privat vom Eigentümer
Bierweg 19, 99310 Arnstadt

Weitere Angebote in Berlin