Provisionsfrei: Fertig gestaltet! Designer-3Z-Wohnung Charlottenburg Ku'damm-Nähe

Gervinusstraße 1b 10629 Berlin, Berlin
Frei ab: sofort
795.000 € Kaufpreis
Wohnfläche
87 m²
Zimmer
3
Etage
3
Einbauküche
Balkon
Terrasse
Fahrstuhl
Keller
Barrierefrei

Kaufpreis

Kaufpreis 795.000 €
Hausgeld365 €
Maklerprovisionkeine Provision, courtagefrei

Wohnfläche, Grundstück & Bausubstanz

Wohnfläche87 m²
Zimmer3
Etagen5
Stockwerk3
Baujahr2016
Verfügbar ab sofort
ZustandNeuwertig

Beschreibung der Immobilie

360°-Rundgang: https://www.ohne-makler.net/panorama/443980/

**Fertig gestaltet. Sofort leben.**

Diese Wohnung wurde nicht nur gebaut — sie wurde durchdacht. Jedes Detail, von der FENIX-Designerküche bis zum Naturstein im Bad, ist das Ergebnis eines professionellen Gestaltungskonzepts aus dem Jahr 2016. Hier müssen Sie nichts mehr planen, nichts renovieren, nichts einrichten. Sie öffnen die Tür und leben.

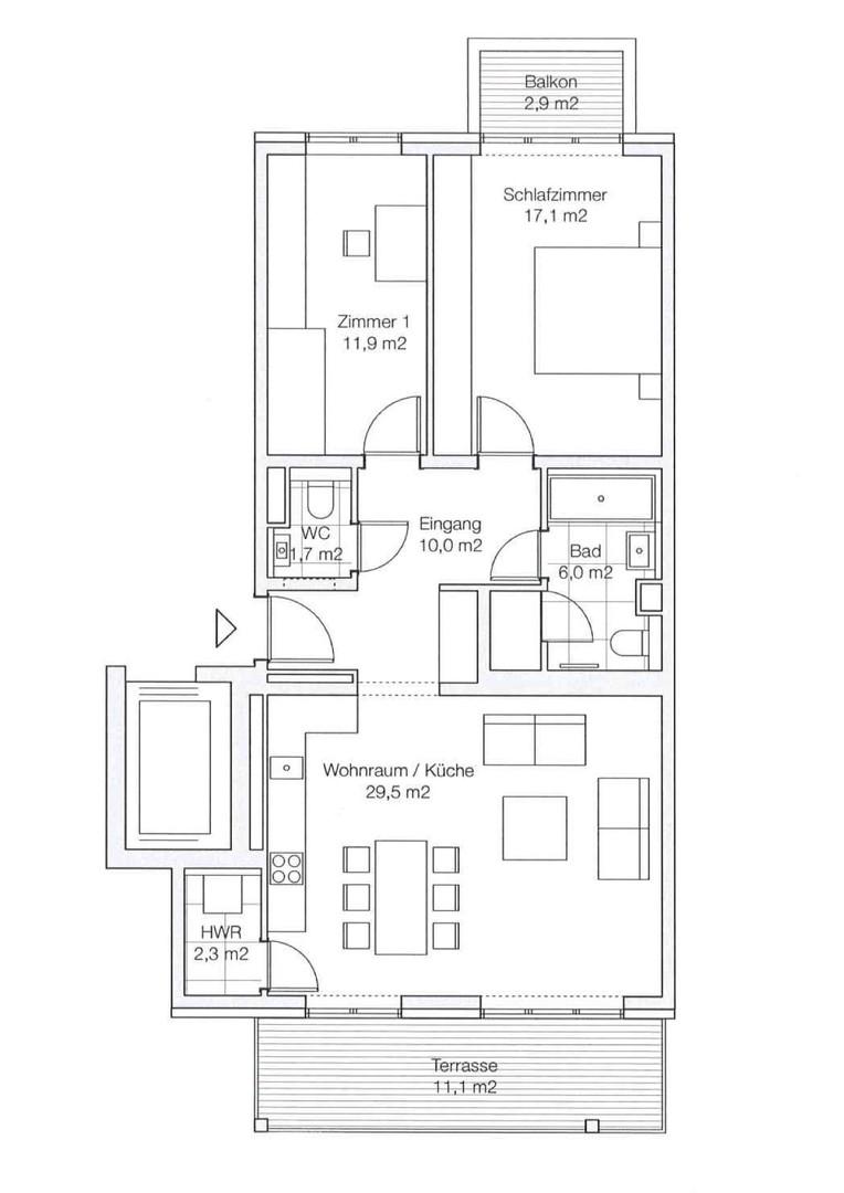
Raumaufteilung:
• Wohnküche (29,5 m²): Offener Grundriss mit raumhohen Südfenstern, FENIX-Designerküche in mattem Champagner, integrierte Siemens- und Bosch-Geräte, Eichenparkett mit Fußbodenheizung
• Schlafzimmer (17,1 m²): Maßgefertigte Einbauschränke, Verdunkelungsvorhänge, eigener Balkon
• Arbeitszimmer (11,9 m²): Home-Office, Bibliothek oder Gästezimmer — flexibel nutzbar
• Hauptbad: Freistehende Wanne, Walk-in-Dusche, Naturstein
• Separates Gäste-WC mit eigenem Waschtisch
• Süd-Terrasse (11,1 m²): Ganztags Sonne über den Dächern von Charlottenburg

Ausstattung:
• Eichenparkett und Fußbodenheizung durchgehend
• Energieklasse A (55 kWh/m²a), Fernwärme
• Ethernet-Verkabelung in jedem Raum
• Aufzug, barrierefrei, Keller
• Neubau 2016, neuwertig erhalten

Lage — Charlottenburg, 10629:
Nahe Kantstraße und Savignyplatz, fünf Gehminuten vom Ku'damm. U7 Wilmersdorfer Straße in 2 Min., S-Bahn Charlottenburg in 3 Min.

Provisionsfrei — Direktverkauf ohne Makler.

Weitere Informationen: gervinusstrasse.rubyre.de

Ausstattungsmerkmale

KücheEinbauküche
Bad1
Bad (Ausstattung)Dusche, Wanne
BodenFliesen, Parkett
Balkone1
Terrassen1
Fahrstuhl
BarrierefreiJa
KellerJa
Balkon, Terrasse, Keller, Fahrstuhl, Vollbad, Duschbad, Einbauküche, Gäste-WC, Barrierefrei, Parkett, Fliesen

Bemerkungen:
Komplette Designer-Einrichtung (2016), professionell gestaltet und neuwertig erhalten. FENIX-Designerküche in mattem Champagner mit integrierten Siemens- und Bosch-Geräten. Eichenparkett und Fußbodenheizung durchgehend. Hauptbad mit freistehender Badewanne, Walk-in-Dusche und Naturstein. Maßgefertigte Einbauschränke im Schlafzimmer. Hauswirtschaftsraum mit Waschmaschine und Trockner. Ethernet-Verkabelung (LAN) in jedem Raum. Süd-Terrasse 11,1 m² + Balkon 2,9 m². Aufzug, Keller, barrierefrei.

Energie

A
Energieeffizienzklasse A · 55 kWh/(m²*a)
EnergieausweistypBedarfsausweis
EnergieeffizienzklasseA
Endenergiebedarf55
Heizungsart Fußbodenheizung
Energieträger/Befeuerung Fernwärme

Karte wird geladen...
Gervinusstraße 1b
10629 Berlin – Berlin

Lage & Infrastruktur

Berlin-Charlottenburg, auch City West genannt, gehört seit über einem Jahrhundert zu den gefragtesten Wohnlagen Berlins. Kultur, Gastronomie, Architektur und eine Gelassenheit, die man anderswo vergeblich sucht.

Die Gervinusstraße liegt nahe Savignyplatz und Kantstraße, fünf Gehminuten vom Kurfürstendamm — im Herzen des Kiezes 10629.

Verkehrsanbindung:
• U-Bahn Wilmersdorfer Straße (U7): 2 Min. zu Fuß
• S-Bahn Charlottenburg: 3 Min.
• S-Bahn Westkreuz (Ringbahn): 5 Min.
• Messe Berlin: 8 Min.
• Hauptbahnhof: 15 Min.
• Flughafen BER: 40 Min.

In der Nachbarschaft: Deutsche Oper, Schloss Charlottenburg, KaDeWe, Lietzensee-Park, Technische Universität Berlin, Sophie-Charlotte-Gymnasium.
Infrastruktur (im Umkreis von 5 km):
Apotheke, Lebensmittel-Discount, Allgemeinmediziner, Kindergarten, Grundschule, Gymnasium, Öffentliche Verkehrsmittel

Sonstige Informationen

Heizungsart: Fußbodenheizung
Energieträger: Fernwärme


Makleranfragen nicht erwünscht. Nach § 7 UWG sind unaufgeforderte Kontaktaufnahmen durch Makler ohne ausdrückliche Einwilligung des Empfängers verboten!

ohne-makler (OM) ist weder Anbieter noch Vermittler der Immobilie. OM betreibt eine Plattform für Immobilieneigentümer, die unter anderem die gleichzeitige Veröffentlichung einzelner Inserate auf mehreren Immobilienportalen ermöglicht. Die Inhalte dieser Inserate werden ausschließlich von Dritten verantwortet. Für die Richtigkeit, Vollständigkeit oder Rechtmäßigkeit der Angaben übernimmt OM keine Haftung. Hinweise auf mögliche Rechtsverstöße können jederzeit gemeldet werden und werden nach Prüfung umgehend bearbeitet.
Ansprechpartner/in: Privat vom Eigentümer
OM PropTech GmbH
Humboldtstraße 25a, 21509 Glinde

Weitere Angebote in Berlin