Klimafreundliche 3-Zimmer-Neubauwohnung (63m²) in Kehl-Marlen – naturnah & modern wohnen – Erstbezug

Vogesenstr. 30 77694 Kehl-Marlen, Baden-Württemberg
Frei ab: 01.06.2026
990 € Kaltmiete
15,71 € Preis/m² ca.
Wohnfläche
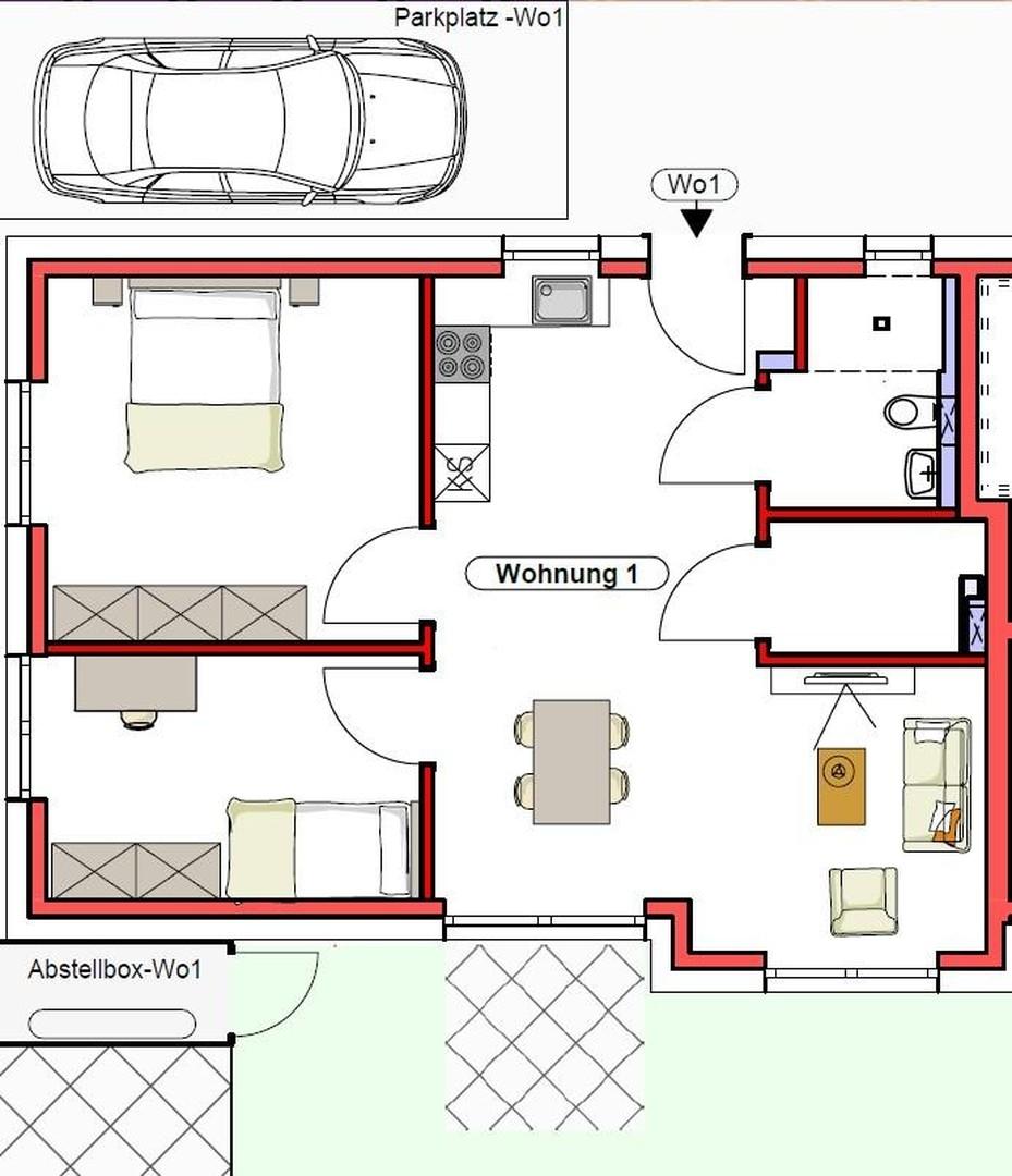
63 m²
Zimmer
3
Etage
0
Einbauküche
Balkon
Terrasse

Mietpreis & Nebenkosten

Kaltmiete (netto)990 €
Nebenkosten 155 €
Heizkosten enthaltenJa
Kaution 2.000 €
Stellplatz Freiplatz Miete50 €

Wohnfläche, Grundstück & Bausubstanz

Wohnfläche63 m²
Zimmer3
Stockwerk0
Baujahr2026
Verfügbar ab 01.06.2026
ZustandErstbezug

Beschreibung der Immobilie

Diese hochwertige 3-Zimmer-Neubauwohnung in Kehl-Marlen befindet sich in einem modernen Mehrfamilienhaus mit sieben Wohneinheiten und überzeugt durch eine durchdachte Raumaufteilung, helle Wohnräume und eine nachhaltige Bauweise.

Marlen liegt in der Rheinebene, nicht weit vom Schwarzwald und der französischen Grenze entfernt. Die Städte Kehl, Straßburg und Offenburg sind bequem in wenigen Minuten erreichbar.

Das Wohngebäude wurde gemäß dem KfW-40-QNG-Standard errichtet. Dieser Standard steht für besonders niedrigen Energieverbrauch, ressourcenschonendes/nachhaltiges Bauen und langfristig kostengünstige Nebenkosten. Ideal geeignet für Singles, Paare oder kleine Familien, die Wert auf Komfort, Umweltbewusstsein und Lebensqualität legen.

Besonderheiten:
• Neubau 3-Zimmer-Wohnung
• Ganzheitlich nachhaltige Bauweise und sehr niedriger Energiebedarf (KfW-40-QNG-Standard)
• 63m² Erdgeschosswohnung mit eigenem Hauseingang und kleinem Außenbereich (ca. 6m²)
• Außen-Stellplatz für PKW und Fahrrad, sowie zusätzliche Abstellbox
• Hausmeisterservice

Ausstattungsmerkmale

KücheEinbauküche
Bad (Ausstattung)Dusche
BodenFliesen, Kunststoff
Balkone0
Terrassen1
Terrasse, Duschbad, Einbauküche, Fliesen

Bemerkungen:
Ausstattung:
• Moderne Einbauküche (zzgl. 65€/Monat)
• Separater Abstellraum
• Tageslichtbad mit Dusche
• Fußbodenheizung
• Kontrollierte Wohnraumlüftung mit Wärmerückgewinnung
• Hochwertige Fliesen- und Vinylböden und Feinputz an den Wänden
• Glasfaseranschluss

Energie

A+
Energieeffizienzklasse A+ · 7 kWh/(m²*a)
EnergieausweistypBedarfsausweis
EnergieeffizienzklasseA+
Endenergiebedarf7
Heizungsart Fußbodenheizung
Energieträger/Befeuerung Luft-Wärme-Pumpe

Karte wird geladen...
Vogesenstr. 30
77694 Kehl-Marlen – Baden-Württemberg

Lage & Infrastruktur

Infrastruktur:
Marlen bietet alles, was Sie für den täglichen Bedarf benötigen: Supermärkte, Ärzte, Apotheken, Schulen und Kitas sind bequem erreichbar. Die Autobahn A5 und der Flughafen Straßburg sind nur wenige Minuten entfernt und verbindet Sie schnell mit den nahegelegenen Städten und Wirtschaftszentren.

Freizeit und Natur:
Die Wohnung liegt unmittelbar am Feldrand. Kleine Seen sowie der Altrhein befinden sich nur wenige Gehminuten (2-5 Minuten) entfernt und laden zu Spaziergängen und Erholung ein. Zahlreiche Wander- und Radwege durch die Rheinebene sowie die naturnahe Umgebung machen diese Lage besonders attraktiv für Naturliebhaber und Sportbegeisterte.

Diese Lage bietet die perfekte Kombination aus ruhigem Wohnen in der Natur und der Nähe zu urbaner Infrastruktur und Freizeitangeboten - ideal für alle, die das Beste aus beiden Welten schätzen.

Sonstige Informationen

Heizungsart: Fußbodenheizung
Energieträger: Luft-/Wasserwärme

Sonstiges:
• Nichtraucherwohnung
• Zustimmungspflicht für Haustiere
• Besichtigung nach Vereinbarung möglich
• Bezug möglich nach Fertigstellung ab voraussichtlich Juni/Juli 2026

Kontakt:
Bei Interesse freuen wir uns über Ihre E-Mail-Anfrage mit kurzer persönlicher Vorstellung.

Bitte beachten Sie, dass Besichtigungen ohne zuvor ausgefüllte Selbstauskunft nicht möglich sind!

Makleranfragen nicht erwünscht. Nach § 7 UWG sind unaufgeforderte Kontaktaufnahmen durch Makler ohne ausdrückliche Einwilligung des Empfängers verboten!

ohne-makler (OM) ist weder Anbieter noch Vermittler der Immobilie. OM betreibt eine Plattform für Immobilieneigentümer, die unter anderem die gleichzeitige Veröffentlichung einzelner Inserate auf mehreren Immobilienportalen ermöglicht. Die Inhalte dieser Inserate werden ausschließlich von Dritten verantwortet. Für die Richtigkeit, Vollständigkeit oder Rechtmäßigkeit der Angaben übernimmt OM keine Haftung. Hinweise auf mögliche Rechtsverstöße können jederzeit gemeldet werden und werden nach Prüfung umgehend bearbeitet.
Ansprechpartner/in: Privat von Haas Immobilien
OM PropTech GmbH
Humboldtstraße 25a, 21509 Glinde

Weitere Angebote in Kehl