Exklusive Neubauwohnung in Altona-Altstadt

Bluecherstrasse 5 22767 Hamburg, Hamburg
Frei ab: sofort
1.310.000 € Kaufpreis
Wohnfläche
128 m²
Zimmer
4
Etage
3
Einbauküche
Balkon
Terrasse
Fahrstuhl
Keller
Barrierefrei
Stellplatz

Kaufpreis

Kaufpreis 1.310.000 €
Hausgeld470 €
Maklerprovisionkeine Provision, courtagefrei
Stellplatz Garage Kaufpreis45.000 €
Stellplatz Tiefgarage Kaufpreis45.000 €

Wohnfläche, Grundstück & Bausubstanz

Wohnfläche128 m²
Zimmer4
Etagen5
Stockwerk3
Baujahr2023
Verfügbar ab sofort
ZustandNeuwertig

Beschreibung der Immobilie

Exklusive Neubauwohnung mit Weitblick!
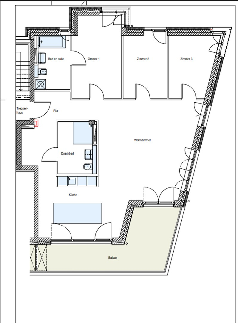
Luxuriöse Vier Zimmer-Neubau-Eckwohnung mit großzügiger Balkon und Fenster von drei Seiten (Ost-Süd-West)

In einem der exklusivsten Wohnensembles Hamburgs, präsentiert sich diese außergewöhnlich schöne Vier-Zimmer Neubauwohnung in einem Mehrfamilienhaus aus dem Baujahr 2023. Die hervorragende Lage mit direktem Weitblick und sehr zentrale Lage in Altona-Altstadt verleiht dieser Immobilie Seltenheitswert und höchste Wohnqualität.

Die Wohnung verfügt über eine Gesamtfläche von ca. 138 m² (Innnenfläche 117qm und Balkon 21qm) und besticht durch eine offene, lichtdurchflutete Raumgestaltung. Großzügige bodentiefe Fensterfronten schaffen ein elegantes Ambiente und verbinden den Wohnraum harmonisch mit der rund 21 m² großen Balkon, von der aus sich ein beeindruckender Panoramablick - ein idealer Ort für entspannte Stunden und repräsentatives Wohnen.

Der hochwertig ausgestattete Wohnbereich ist mit edlem Echtholzparkett und einer Fußbodenheizung versehen. Die offene hochwertige Küche mit exklusiven Bosch/Siemens-Einbaugeräten fügt sich stilvoll in das Wohnkonzept ein und erfüllt höchste Ansprüche an Design und Funktionalität.
Die Wohnung verfügt über ein luxuriöses Vollbad en suite sowie ein zusätzliches Gäste-Bad mit Dusche. Eine Videosprechanlage sorgt für ein hohes Maß an Sicherheit. Der gepflegte Zustand der Wohnung unterstreicht den exklusiven Charakter dieser Immobilie.

Zur Wohnung gehört ein Tiefgaragenstellplatz, mit Elektroanschluss, der komfortables und zukunftsorientiertes Parken ermöglichen. Die Beheizung sowie die Warmwasserversorgung erfolgen über eine moderne Fernwärmezentrale. Die Immobilie weist eine Energieeffizienzklasse B auf, der Endenergiebedarf beträgt 50 kWh/(m²·a), der Energieträger ist Fernwärme.

Diese exklusive Neubauwohnung vereint luxuriöses Wohnen, erstklassige Ausstattung und eine der begehrtesten Wasserlagen Hamburgs - ein ideales Zuhause für höchste Ansprüche.


Eckpunkte:
- Wunderschöne Küche mit Kochinsel und hochwertige Geräte
- Sehr grosser Wohn-/Ess Bereich
- 3 Zimmer, 2 Bäder inkl. 1 Bad en-Suite
- Grosser Aufzug, grosser Keller
- Barrierfrei, Rollstuhlfahrer geeignet
- Eingebaute Garderobe mit viel Stauplatz
- Grosse Fenster, mit 3 Fach-Verglasung
- Grosser Eckbalkon (21qm) mit Süd-West Ausrichtung
- Stellplatz in der Tiefgarage mit E-Anschluss

Ausstattungsmerkmale

KücheEinbauküche
Bad2
Bad (Ausstattung)Dusche, Wanne
BodenFliesen, Parkett
Balkone1
Terrassen0
Fahrstuhl
BarrierefreiJa
KellerJa
Garage/Stellplätze1
Balkon, Keller, Fahrstuhl, Vollbad, Duschbad, Einbauküche, Barrierefrei, Parkett, Fliesen

Bemerkungen:
Die Wohnung ist im neuwertigen Zustand (die Wände wurden nie gebohrt).

Energie

B
Energieeffizienzklasse B · 50 kWh/(m²*a)
EnergieausweistypVerbrauch
EnergieeffizienzklasseB
Energieverbrauchkennwert50 kWh/(m²*a)
Heizungsart Fußbodenheizung
Energieträger/Befeuerung Fernwärme

Karte wird geladen...
Bluecherstrasse 5
22767 Hamburg – Hamburg

Lage & Infrastruktur

Super Zentrale Lage in Altona-Altstadt!
Alles zu Fuss erreichbar:
- Bushaltestelle vor der Tür
- S-Bahn Königstrasse: 5min
- Grosse Elbstrasse mit zahlreichen Einkaufsmöglichkeiten: 5min
- Altona Bahnhof: 10min
- Schulkampus Struenseestrasse: 1min
- Fitness Studio: 1min
Infrastruktur (im Umkreis von 5 km):
Apotheke, Lebensmittel-Discount, Allgemeinmediziner, Kindergarten, Grundschule, Hauptschule, Realschule, Gymnasium, Gesamtschule, Öffentliche Verkehrsmittel

Sonstige Informationen

Heizungsart: Fußbodenheizung
Energieträger: Fernwärme


Makleranfragen nicht erwünscht. Nach § 7 UWG sind unaufgeforderte Kontaktaufnahmen durch Makler ohne ausdrückliche Einwilligung des Empfängers verboten!

ohne-makler (OM) ist weder Anbieter noch Vermittler der Immobilie. OM betreibt eine Plattform für Immobilieneigentümer, die unter anderem die gleichzeitige Veröffentlichung einzelner Inserate auf mehreren Immobilienportalen ermöglicht. Die Inhalte dieser Inserate werden ausschließlich von Dritten verantwortet. Für die Richtigkeit, Vollständigkeit oder Rechtmäßigkeit der Angaben übernimmt OM keine Haftung. Hinweise auf mögliche Rechtsverstöße können jederzeit gemeldet werden und werden nach Prüfung umgehend bearbeitet.
Ansprechpartner/in: Privat von Alexia Jacob
OM PropTech GmbH
Humboldtstraße 25a, 21509 Glinde

Weitere Angebote in Hamburg