Preisreduziert: Modernes Landhaus - bezugsfertig - inkl. Einbauküche, inkl. Grundstück

Ponnsdorfer Weg 4 A 03249 03249 Münchhausen, Brandenburg
Frei ab: nach Absprache
379.900 € Kaufpreis
Wohnfläche
151 m²
Zimmer
5
Einbauküche
Garten
Stellplatz

Kaufpreis

Kaufpreis 379.900 €
Maklerprovisionkeine Provision, courtagefrei

Wohnfläche, Grundstück & Bausubstanz

Wohnfläche151 m²
Grundstücksfläche1.000 m²
Zimmer5
Baujahr2023
Verfügbar ab nach Absprache
ZustandErstbezug

Beschreibung der Immobilie

MODERNES EINFAMILIENHAUS MIT STIL UND KOMFORT – NEUBAU AUF GROSSZÜGIGEM GRUNDSTÜCK IN MÜNCHHAUSEN BEI FINSTERWALDE

Provisionsfrei - direkt vom Eigentümer!

Willkommen in Ihrem neuen Zuhause! Dieses moderne, massiv gebaute Einfamilienhaus vom renommierten Anbieter Heinz von Heiden (Typ Alto 630) vereint zeitgemäße Architektur, energieeffiziente Haustechnik und ein großzügiges Raumkonzept – ideal für Familien, die Wert auf Qualität und Wohnkomfort legen.

OBJEKTDATEN





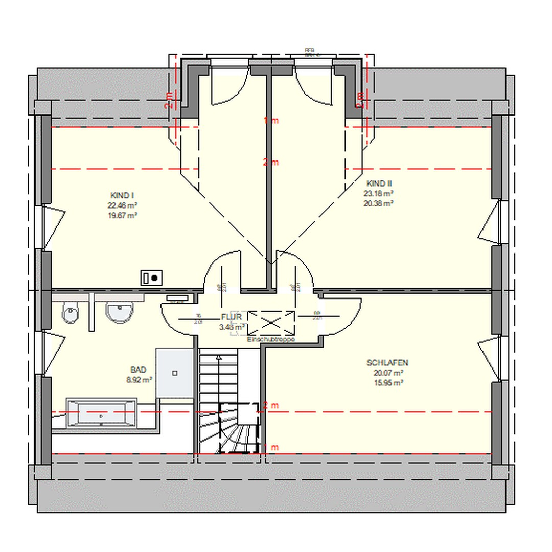
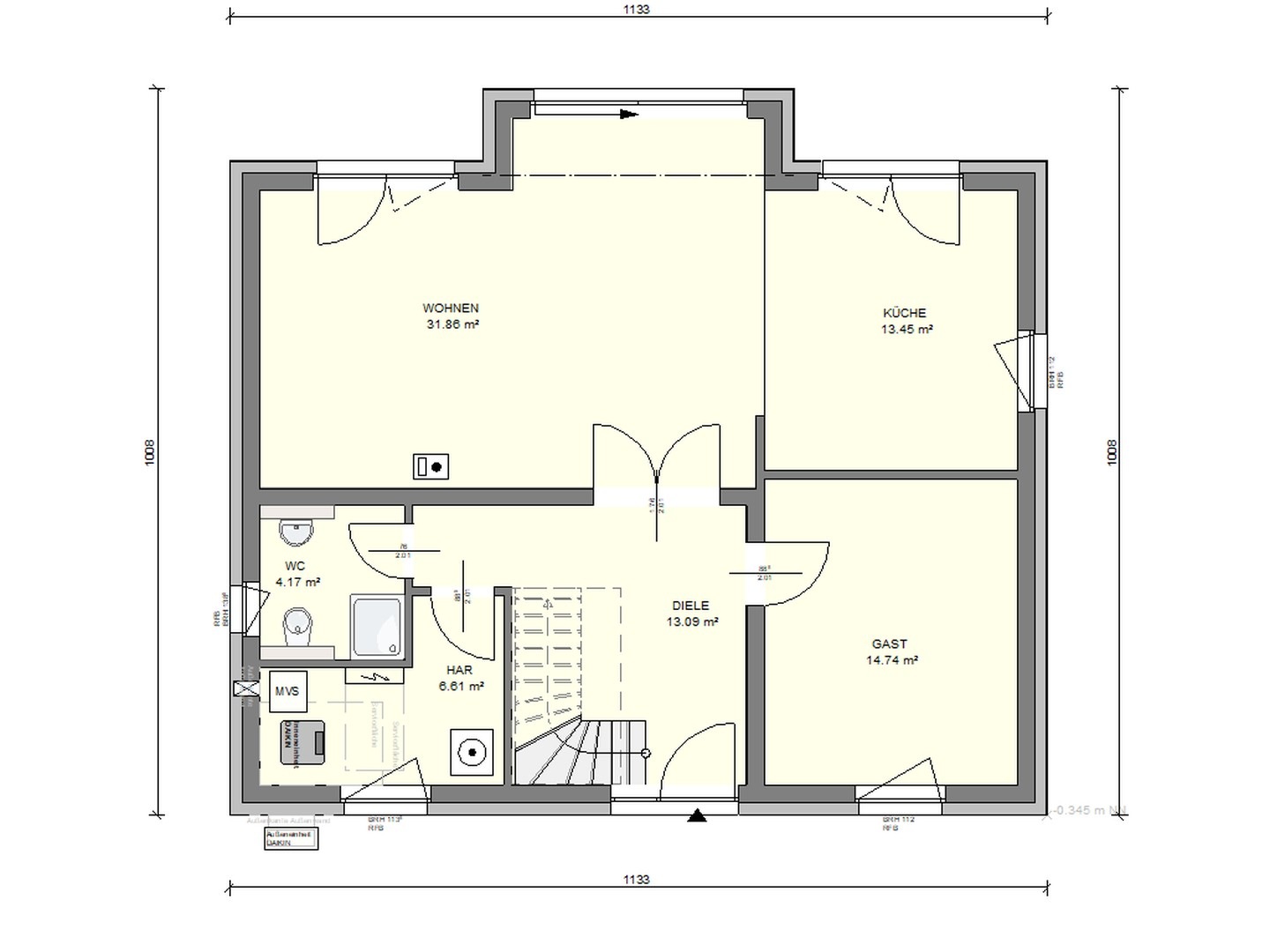
Wohnfläche: ca. 151 m² + ca. 40 m² Abstellfläche im Spitzboden



Grundstücksgröße: ca. 1.000 m²



Zimmer: 5



Bäder: 2



Garage: Breitraumgarage mit Sektionaltor und Seiteneingangstür



Baujahr: 2025 (Neubau / Erstbezug)



Einbauküche: Die moderne Einbauküche ist im Kaufpreis enthalten und fügt sich harmonisch in den offenen Wohn-Essbereich ein.

--------------------------------------------------------------------------------

RAUMAUFTEILUNG & AUSSTATTUNG

Bereits beim Betreten des Hauses beeindruckt das helle, offene Wohnkonzept: Der großzügige Wohn- und Essbereich mit offener Küche bildet das Herzstück des Hauses. Große Fensterfronten sorgen für lichtdurchflutete Räume und ein angenehmes Wohngefühl. Der elegante Terrassengiebel schafft zusätzliche Weite – sowohl im Erdgeschoss als auch im Dachgeschoss.

Im Erdgeschoss befinden sich außerdem ein modernes Duschbad, ein Hausanschlussraum sowie ein vielseitig nutzbares Gäste- oder Arbeitszimmer. Großformatige Fliesen verleihen den Räumen eine edle, pflegeleichte Optik.

Über eine massive Buchenholztreppe (grau gebeizt) mit Edelstahl-Holz-Geländer gelangen Sie ins Dachgeschoss. Hier erwarten Sie drei großzügige Schlafzimmer und ein stilvolles Badezimmer mit bodengleicher, verfliester Dusche (90x120 cm), Badewanne, wandhängendem WC und hochwertigem Waschtisch.

Der gedämmte Spitzboden (ca. 40 m², mit Dachflächenfenster und Stromanschluss) bietet zusätzlichen Stauraum oder Ausbaureserve.

--------------------------------------------------------------------------------

TECHNIK & AUSSTATTUNG IM DETAIL





Effiziente Luft-Wasser-Wärmepumpe mit Fußbodenheizung in beiden Etagen



Raumluftunabhängiger Schornstein – Kaminanschluss vorbereitet



Elektrische Aluminium-Rollläden, einzeln per App steuerbar



Netzwerksteckdosen in allen Wohn- und Schlafräumen



Zweifarbige Außenfassade (weiß/grau)



Fenster, Terrassentüren und Haustür außen anthrazit / innen weiß



Hochwertiger Tondachziegel (Braas Rubin 9V, royal grau, glasiert)

Der Innenausbau im Dachgeschoss (Bodenbelag, Wandgestaltung) sowie die Gestaltung der Außenanlagen können ganz nach Ihren individuellen Wünschen erfolgen – ideal, um Ihrem neuen Zuhause die persönliche Note zu verleihen.

Option Generationenobjekt: Auf Wunsch kann zusätzlich der benachbarte Bungalow (109 m²) mit erworben werden. Beide Häuser gemeinsam bilden ein attraktives Generationenobjekt.

--------------------------------------------------------------------------------

GARAGE & AUSSENBEREICH

Die massive Breitraumgarage (7,00 m x 3,45 m x 2,54 m) mit farbigem Sektionaltor und Seiteneingangstür fügt sich harmonisch in das Gesamtkonzept ein und bietet Platz für Auto, Gartengeräte und vieles mehr.

--------------------------------------------------------------------------------

Ausstattungsmerkmale

KücheEinbauküche
Bad2
Bad (Ausstattung)Dusche, Wanne
BodenFliesen, Kunststoff
GartenJa
Garage/Stellplätze1
Garten, Vollbad, Duschbad, Einbauküche, Gäste-WC, Fliesen

Bemerkungen:
FAZIT

Ein modernes, energieeffizientes Zuhause mit großzügigem Raumangebot, hochwertiger Ausstattung und viel Gestaltungsspielraum – ideal für Familien, die Wert auf Qualität, Komfort und Individualität legen.

--------------------------------------------------------------------------------

Energie

A+
Energieeffizienzklasse A+ · 19 kWh/(m²*a)
EnergieausweistypBedarfsausweis
EnergieeffizienzklasseA+
Endenergiebedarf19
Heizungsart Fußbodenheizung
Energieträger/Befeuerung Luft-Wärme-Pumpe

Karte wird geladen...
Ponnsdorfer Weg 4 A
03249 03249 Münchhausen – Brandenburg

Lage & Infrastruktur

LAGE

Das Haus befindet sich in 03249 Münchhausen, einem Ortsteil der Stadt Sonnewalde im Landkreis Elbe-Elster (südliches Brandenburg). Das Stadtzentrum Finsterwalde erreichen Sie in wenigen Minuten – hier finden Sie alle Geschäfte des täglichen Bedarfs, Ärzte, Apotheken, Schulen, Kindertagesstätten und das Elbe-Elster-Klinikum.

Die Buslinie 595 verbindet Münchhausen mit dem Bahnhof Finsterwalde und dem Busbahnhof in Luckau – ideal auch für Pendler.

--------------------------------------------------------------------------------
Infrastruktur (im Umkreis von 5 km):
Apotheke, Lebensmittel-Discount, Allgemeinmediziner, Kindergarten, Grundschule, Hauptschule, Realschule, Gymnasium, Gesamtschule, Öffentliche Verkehrsmittel

Sonstige Informationen

Heizungsart: Fußbodenheizung
Energieträger: Luft-/Wasserwärme


Makleranfragen nicht erwünscht. Nach § 7 UWG sind unaufgeforderte Kontaktaufnahmen durch Makler ohne ausdrückliche Einwilligung des Empfängers verboten!

ohne-makler (OM) ist weder Anbieter noch Vermittler der Immobilie. OM betreibt eine Plattform für Immobilieneigentümer, die unter anderem die gleichzeitige Veröffentlichung einzelner Inserate auf mehreren Immobilienportalen ermöglicht. Die Inhalte dieser Inserate werden ausschließlich von Dritten verantwortet. Für die Richtigkeit, Vollständigkeit oder Rechtmäßigkeit der Angaben übernimmt OM keine Haftung. Hinweise auf mögliche Rechtsverstöße können jederzeit gemeldet werden und werden nach Prüfung umgehend bearbeitet.
Ansprechpartner/in: Privat vom Eigentümer
OM PropTech GmbH
Humboldtstraße 25a, 21509 Glinde

Weitere Angebote in Sonnewalde