Doppelhaushälfte zu Verkaufen

73432 Aalen Unterkochen, Baden-Württemberg
Frei ab: nach Absprache
430.000 € Kaufpreis
Wohnfläche
110 m²
Zimmer
5
Einbauküche
Balkon
Terrasse
Garten
Keller
Stellplatz

Kaufpreis

Kaufpreis 430.000 €
Maklerprovisionkeine Provision, courtagefrei

Wohnfläche, Grundstück & Bausubstanz

Wohnfläche110 m²
Grundstücksfläche519 m²
Zimmer5
Etagen2
Baujahr1958
Verfügbar ab nach Absprache
ZustandTeil Vollrenoviert

Beschreibung der Immobilie

Charmante Doppelhaushälfte mit großem Grundstück, Garage & viel Potential in ruhiger Lage von Aalen

Willkommen in Ihrem neuen Zuhause! Diese gepflegte Doppelhaushälfte vereint soliden Wohnkomfort, eine durchdachte Raumaufteilung und ein großzügiges Grundstück - perfekt für Familien, Paare oder alle, die sich den Traum vom eigenen Haus erfüllen möchten.

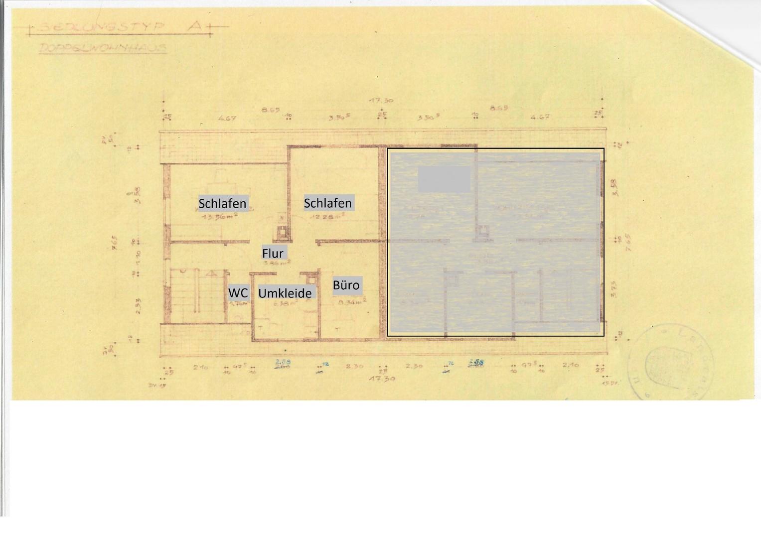
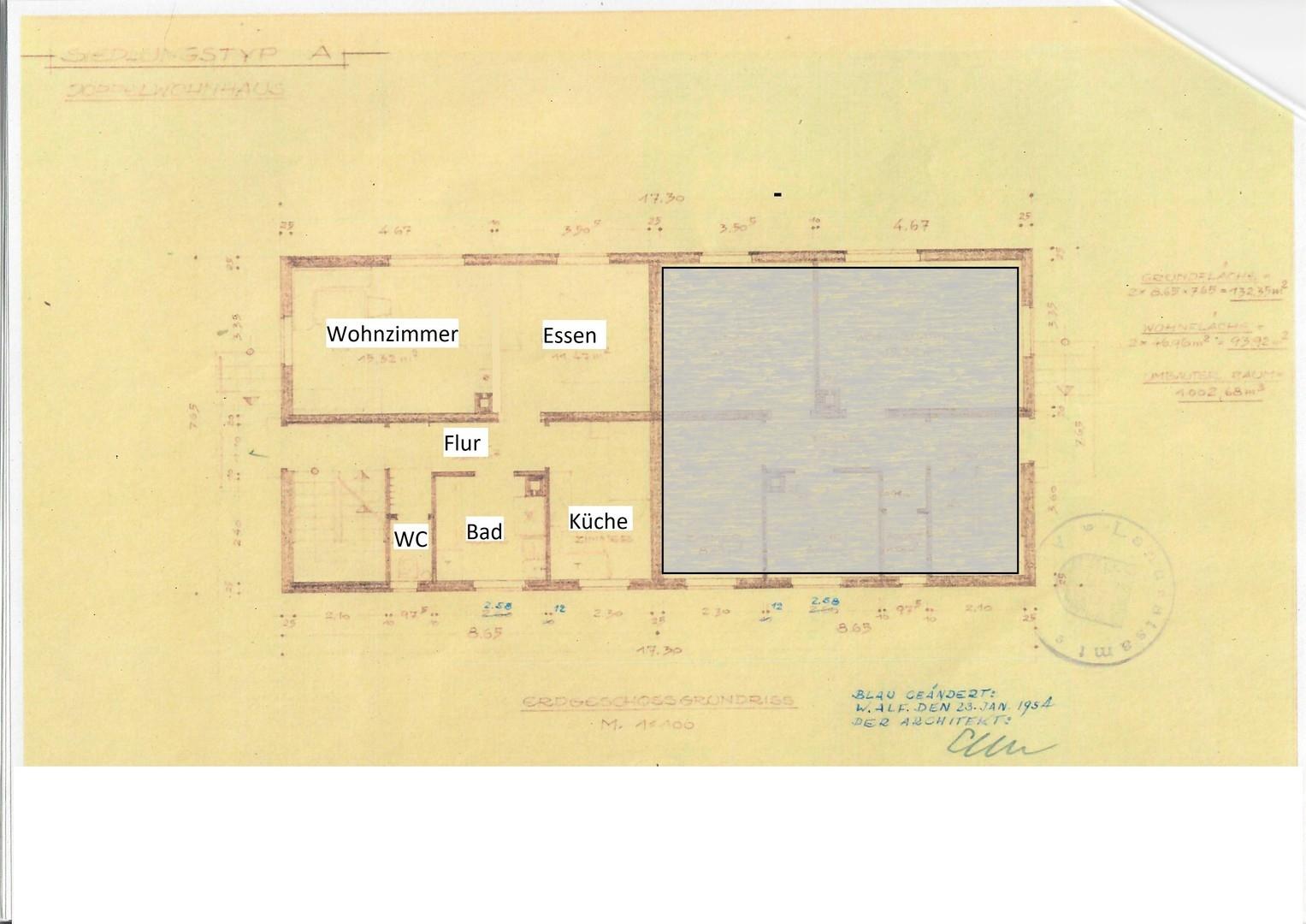
Das Haus wurde 1958 in massiver Bauweise errichtet und befindet sich in einem guten Zustand. Auf ca. 110 m2 Wohnfläche verteilen sich 5 gut geschnittene Zimmer über zwei Etagen, die vielfältige Nutzungsmöglichkeiten bieten - ob als Familienheim, Homeoffice oder Gästezimmer.

Besonders hervorzuheben ist das großzügige Grundstück mit ca. 519 m2, das viel Platz für Gartenliebhaber, Kinder oder entspannte Stunden im Freien bietet. Hier können sie Ihre individuellen Wohn- und Gartenträume verwirklichen.
Der voll unterkellerte Bereich (100 % Unterkellerung) sorgt für zusätzlichen Stauraum und Nutzfläche. Das ausgebaute Dachgeschoss erweitert den Wohnraum und unterstreicht die optimale Nutzung des Hauses.

Für Ihre Fahrzeuge stehen Ihnen eine Garage sowie drei zusätzliche Stellplätze zur Verfügung - ein echter Pluspunkt im Alltag.

Ausstattungsmerkmale

KücheEinbauküche
Bad1
Bad (Ausstattung)Wanne
BodenFliesen, Laminat, Kunststoff
Balkone0
Terrassen1
GartenJa
KellerJa
Garage/Stellplätze1
Terrasse, Garten, Keller, Vollbad, Sauna, Einbauküche, Gäste-WC, Kamin, Laminat, Fliesen

Bemerkungen:
Die Sanitärräume wurden zuletzt im Jahr 2023 modernisiert. Im voll unterkellerten Bereich steht eine Sauna mit integrierter Dusche zur Verfügung und bietet zusätzlichen Wohn- und Wellnesskomfort. das Haus ist mit dreifachverglasten Kunststofffenstern ausgestattet; zudem wurde die Elektroinstallation zeitgemäß und nach aktuellem Stand erneuert. Der Garten ist mit zwei Gartenhäuser ausgestattet, die viel Stauraum bieten. Ebenfalls ist ein Gewächshaus vorhanden.

Energie

G
Energieeffizienzklasse G · 247 kWh/(m²*a)
EnergieausweistypBedarfsausweis
EnergieeffizienzklasseG
Endenergiebedarf247
Heizungsart Zentralheizung
Energieträger/Befeuerung Öl

Karte wird geladen...
73432 Aalen Unterkochen – Baden-Württemberg

Lage & Infrastruktur

Die Lage überzeugt durch ein ruhiges und gewachsenes Wohnumfeld guter Anbindung an die Aalener Innenstadt sowie Einkaufsmöglichkeiten, Schulen und öffentliche Verkehrsmittel in der Nähe.
Infrastruktur (im Umkreis von 5 km):
Apotheke, Lebensmittel-Discount, Allgemeinmediziner, Kindergarten, Grundschule, Hauptschule, Realschule, Gesamtschule, Öffentliche Verkehrsmittel

Sonstige Informationen

Heizungsart: Zentralheizung
Energieträger: Öl


Makleranfragen nicht erwünscht. Nach § 7 UWG sind unaufgeforderte Kontaktaufnahmen durch Makler ohne ausdrückliche Einwilligung des Empfängers verboten!

ohne-makler (OM) ist weder Anbieter noch Vermittler der Immobilie. OM betreibt eine Plattform für Immobilieneigentümer, die unter anderem die gleichzeitige Veröffentlichung einzelner Inserate auf mehreren Immobilienportalen ermöglicht. Die Inhalte dieser Inserate werden ausschließlich von Dritten verantwortet. Für die Richtigkeit, Vollständigkeit oder Rechtmäßigkeit der Angaben übernimmt OM keine Haftung. Hinweise auf mögliche Rechtsverstöße können jederzeit gemeldet werden und werden nach Prüfung umgehend bearbeitet.
Ansprechpartner/in: Privat von Julia Benhardt
OM PropTech GmbH
Humboldtstraße 25a, 21509 Glinde

Weitere Angebote in Aalen