STREIF Klinkeraktion - Stadtvilla für gehobene Ansprüche!

48720 Rosendahl
409.550 € Kaufpreis
Wohnfläche
125,27 m²
Zimmer
4

Kaufpreis

Kaufpreis 409.550 €

Wohnfläche, Grundstück & Bausubstanz

Wohnfläche125,27 m²
Grundstücksfläche404 m²
Zimmer4
Etagen1
Verfügbar ab Keine Angabe

Beschreibung der Immobilie

Exklusive Stadtvilla mit flexiblen Raumkonzepten - modernes Wohnen auf zwei Ebenen
Willkommen in einer Stadtvilla, die modernen Lifestyle, architektonische Eleganz und individuelle Planungsfreiheit perfekt vereint!
Die City L von STREIF begeistert auf ca. 125 m² Netto-Raumfläche mit einer klaren, zeitlosen Gestaltung und flexiblen Wohnmöglichkeiten.
Ein Highlight dieser exklusiven Stadtvilla ist die Wahl zwischen drei unterschiedlichen Treppenvarianten:
Ob gradläufig, viertelgewendelt oder doppelt gewendelt - jede Treppenform schafft ein einzigartiges Raumgefühl und eröffnet individuelle Wohnkonzepte, perfekt zugeschnitten auf Ihre Bedürfnisse.
Im Erdgeschoss bieten sich auf Wunsch zusätzliche Optionen:
Ein Gästezimmer lässt sich problemlos integrieren, ebenso ein praktischer Abstellraum direkt an der Küche - ideal für zusätzlichen Stauraum und kurze Wege.
Der offen gestaltete Wohn-/Ess- und Küchenbereich wird durch zahlreiche bodentiefe Fenster lichtdurchflutet und schafft eine harmonische Verbindung zwischen Innen- und Außenbereich.
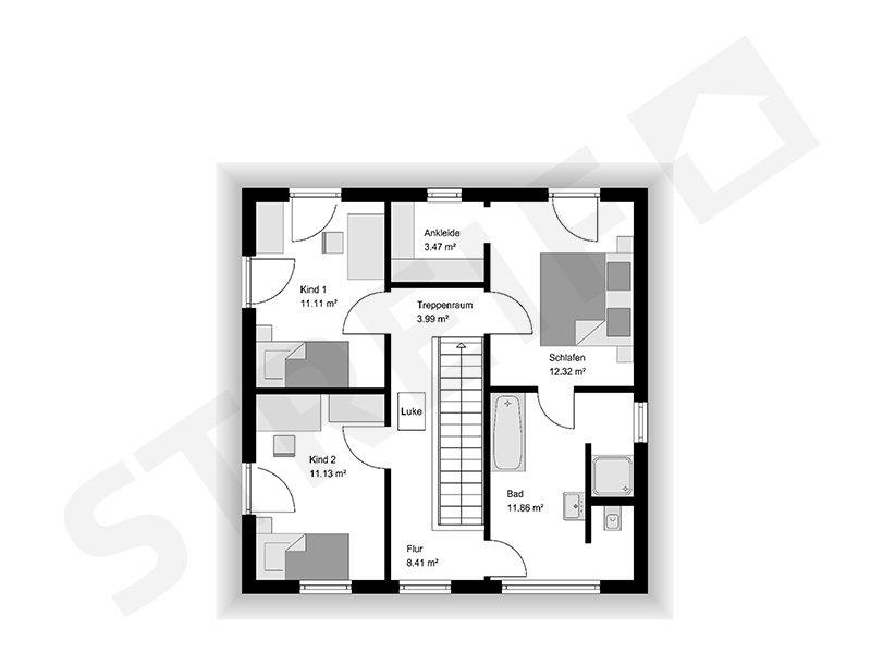
Im Obergeschoss sorgt die klare Raumaufteilung für optimal nutzbare Flächen.
Ein Ankleidebereich am Elternschlafzimmer kann auf Wunsch ebenfalls realisiert werden - für noch mehr Wohnkomfort.
Zwei Vollgeschosse ohne Dachschrägen garantieren eine optimale Raumausnutzung und ermöglichen vielseitige Nutzungsmöglichkeiten für jede Lebensphase.

Ihre Vorteile auf einen Blick:
-Ca. 125 m² moderne Netto-Raumfläche
-Drei Treppenvarianten zur Wahl für individuelle Raumkonzepte
-Option auf Gästezimmer oder Abstellraum im Erdgeschoss
-Offener Wohn-/Ess-/Küchenbereich mit vielen bodentiefen Fenstern
-Möglichkeit für Ankleidebereich im Obergeschoss
-Zwei Vollgeschosse ohne Dachschrägen
-Exklusive Architektur mit klarer Linienführung
-Energieeffiziente Haustechnik für nachhaltiges Wohnen
Erleben Sie modernes Stadtleben auf höchstem Niveau - mit Ihrer exklusiven STREIF City L.

Ausstattungsmerkmale

Bad1
Das Streif City Haus wird im Standard KFW 40 PLUS ausgeführt. KfW Effizienshaus inkl. Haustechnik aus dem STREIF-Programm in der Ausbaustufe FF+ inklusive einer gedämmten Fundamentplatte.

■ Rohbau (geschlossene Gebäudehülle) mit Fenstern, Haustür, Dacheindeckung
■ Außenfassade inkl. Außenputz, vor Ort komplett fertiggestellt
■ Komplette Blechner-/Spenglerarbeiten
■ lnnen-/Außenwände wärme- und schallgedämmt und mit Gipsfaserplatten geschlossen
■ Geschosstreppe (außer Bungalow)
■ Decken wärme- und schallgedämmt und mit Gipskarton Bauplatten geschlossen
■ Elektroinstallation, einschließlich erforderlichem Zählerschrank und Inbetriebnahme
■ Heizungsanlage inkl. Inbetriebnahme
■ Innenfensterbänke Kunststeinbänke (Gussmarmorbänke) inkl. Einbau
■ Estrich
■ Sanitärräume mit Wand- und Bodenfliesen
■ Sanitärräume mit Sanitärobjekten
■ 6,23 kWp Photovoltaikanlage und 7,7 kWh Speicher

Die Innentüren sowie Wand-, Decken- und Bodenbeläge der übrigen Räume sind Eigenleistungen des Bauherren.

STREIF Frischluft-Wärmepumpen-Technologie - inklusive
- Heizen mit frischer Außenluft
- Kein Gasanschluss, kein Öl- oder Pelletlagerraum
- Keine Heizkörper
- Wärmetauscher mit bis zu 85% Wärmerückgewinnung

Die dargestellten Bilder können Sonderausstattungen beinhalten, die nicht im Preis enthalten sind!

zzgl. Ortüblicher Baunebenkosten

Selbstverständlich können wir Ihr Haus auch schlüsselfertig / bezugsfertig errichten.
■ Bodenbeläge, Sockelleisten verlegt
■ Maler- und Tapezierarbeiten
■ Innentüren inkl. Einbau

Karte wird geladen...
48720 Rosendahl

Lage & Infrastruktur

Unsere Grundstücke befinden sich in ausgewählten, attraktiven Lagen und erfüllen höchste Ansprüche an Lebensqualität und Wertbeständigkeit.

Aus Diskretions- und Datenschutzgründen bitten wir um Verständnis, dass Grundstücksdaten ausschließlich im Rahmen eines persönlichen Beratungstermins und ausschließlich für unsere Kunden weitergegeben werden.

Sonstige Informationen

Sie wünschen Bauplanung und Begleitung aus einer Hand? Dann sind wir Ihr Baupartner! Wir stehen Ihnen von Anfang an zur Seite und führen Sie auf dem Weg in Ihr neues perfektes Zuhause!

Mit STREIF haben Sie einen Baupartner mit Bau-Know-how, der seit 1929 auf fast 100 Jahre und 100.000 realisierte Wohnträume zurückblicken kann.

Jedes Haus von STREIF wird individuell als Energiesparhaus geplant und gebaut. Eine nachhaltige, ökologische und wohngesunde Bauweise, eine zertifizierte Ausführungsqualität und eine kurze Bauzeit, dafür stehen wir.

Im Anschluss der gemeinsamen Bedarfsermittlung erstellen wir Ihnen Ihren individuellen Planungsvorschlag mit einer detaillierten & realistisch ermittelten Aufstellung der Gesamt-Investition.

Wir freuen uns auf Ihren Anruf / Nachricht:
Ansprechpartner/in: Herr Andreas Rogge
STREIF Haus GmbH
Josef-Streif-Straße 1, 54595 Weinsheim

Weitere Angebote in Rosendahl