👨‍👩‍👧‍👦 Gemeinsam leben - Zweifamilienhäuser von STREIF neu gedacht.

59872 Meschede
709.100 € Kaufpreis
Wohnfläche
190 m²
Zimmer
6

Kaufpreis

Kaufpreis 709.100 €

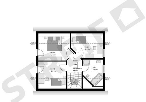
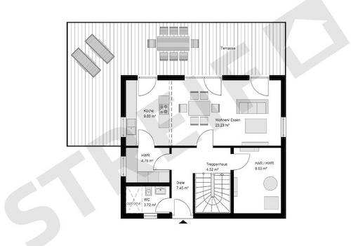
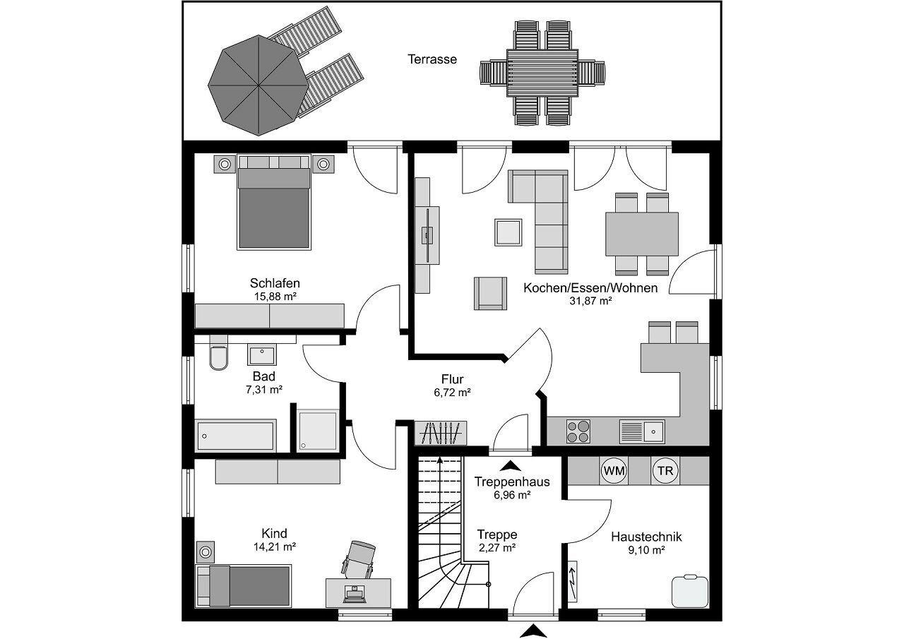
Wohnfläche, Grundstück & Bausubstanz

Wohnfläche190 m²
Grundstücksfläche647 m²
Zimmer6
Etagen2
Verfügbar ab Keine Angabe

Beschreibung der Immobilie

Der Hausentwurf zum Zweifamilienhaus CITY 190 HOME&GENERATION bietet aufgrund der großen Fensterelemente und Terrassentüren, die im Wohnbereich übereck angelegt sind, ein lichterfülltes Wohnambiente in beiden Wohnungen. Die Architektur ist die Interpretation einer modernen Stadtvilla. Durch mögliche Anbauteile, wie Übereckerker, Erker oder eine Haustürüberdachung, kann der Hausentwurf individualisiert werden.

Ausstattungsmerkmale

Bad2
Das Streif City Haus wird im Standard KFW 40 PLUS ausgeführt. KfW Effizienshaus inkl. Haustechnik aus dem STREIF-Programm in der Ausbaustufe FF+ inklusive einer gedämmten Fundamentplatte.

■ Rohbau (geschlossene Gebäudehülle) mit Fenstern, Haustür, Dacheindeckung
■ Außenfassade inkl. Außenputz, vor Ort komplett fertiggestellt
■ Komplette Blechner-/Spenglerarbeiten
■ lnnen-/Außenwände wärme- und schallgedämmt und mit Gipsfaserplatten geschlossen
■ Geschosstreppe (außer Bungalow)
■ Decken wärme- und schallgedämmt und mit Gipskarton Bauplatten geschlossen
■ Elektroinstallation, einschließlich erforderlichem Zählerschrank und Inbetriebnahme
■ Heizungsanlage inkl. Inbetriebnahme
■ Innenfensterbänke Kunststeinbänke (Gussmarmorbänke) inkl. Einbau
■ Estrich
■ Sanitärräume mit Wand- und Bodenfliesen
■ Sanitärräume mit Sanitärobjekten
■ 6,23 kWp Photovoltaikanlage und 7,7 kWh Speicher

Die Innentüren sowie Wand-, Decken- und Bodenbeläge der übrigen Räume sind Eigenleistungen des Bauherren.

STREIF Frischluft-Wärmepumpen-Technologie - inklusive
- Heizen mit frischer Außenluft
- Kein Gasanschluss, kein Öl- oder Pelletlagerraum
- Keine Heizkörper
- Wärmetauscher mit bis zu 85% Wärmerückgewinnung

Die dargestellten Bilder können Sonderausstattungen beinhalten, die nicht im Preis enthalten sind!

zzgl. Ortüblicher Baunebenkosten

Selbstverständlich können wir Ihr Haus auch schlüsselfertig / bezugsfertig errichten.
■ Bodenbeläge, Sockelleisten verlegt
■ Maler- und Tapezierarbeiten
■ Innentüren inkl. Einbau

Karte wird geladen...
59872 Meschede

Lage & Infrastruktur

Unsere Grundstücke befinden sich in ausgewählten, attraktiven Lagen und erfüllen höchste Ansprüche an Lebensqualität und Wertbeständigkeit.

Aus Diskretions- und Datenschutzgründen bitten wir um Verständnis, dass Grundstücksdaten ausschließlich im Rahmen eines persönlichen Beratungstermins und ausschließlich für unsere Kunden weitergegeben werden.

Sonstige Informationen

Sie wünschen Bauplanung und Begleitung aus einer Hand? Dann sind wir Ihr Baupartner! Wir stehen Ihnen von Anfang an zur Seite und führen Sie auf dem Weg in Ihr neues perfektes Zuhause!

Mit STREIF haben Sie einen Baupartner mit Bau-Know-how, der seit 1929 auf fast 100 Jahre und 100.000 realisierte Wohnträume zurückblicken kann.

Jedes Haus von STREIF wird individuell als Energiesparhaus geplant und gebaut. Eine nachhaltige, ökologische und wohngesunde Bauweise, eine zertifizierte Ausführungsqualität und eine kurze Bauzeit, dafür stehen wir.

Im Anschluss der gemeinsamen Bedarfsermittlung erstellen wir Ihnen Ihren individuellen Planungsvorschlag mit einer detaillierten & realistisch ermittelten Aufstellung der Gesamt-Investition.

Wir freuen uns auf Ihren Anruf / Nachricht:
Ansprechpartner/in: Herr Andreas Rogge
STREIF Haus GmbH
Josef-Streif-Straße 1, 54595 Weinsheim

Weitere Angebote in Meschede